€ 599.000
  • Più di 5 locali
  • 200 mq
  • 2 bagni

Appartamento in Vendita a Roma

* E. U. R. – VIA CANZONE DEL PIAVE

AMPIO QUADRILOCALE – BOX AUTO TRIPLO – GIARDINO PRIVATO

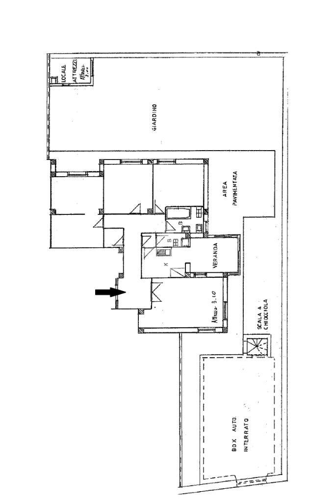
Nel quartiere E. U. R., precisamente in Via Canzone del Piave, proponiamo in vendita esclusiva un appartamento sito al primo piano con box auto di 52mq utili interni e giardino privato di circa 300mq al quale hanno accesso tutti i locali della casa.

La soluzione, che si trova all’interno di un’elegante palazzina di soli cinque piani, è così composta: ampio ingresso, salone, cucina abitabile, tre camere da letto matrimoniali, veranda regolarmente condonata, doppi servizi di cui uno finestrato. Gli infissi sono stati ristrutturati e si presentano in legno sia all'interno che all'esterno e dispongono di doppio vetro taglio termico di ultima generazione. Internamente l’appartamento ha una superficie utile netta di 130mq.

Completano la proprietà una cantina asciutta e comoda di 9mq, un box auto triplo di 52mq dotato di passo carrabile e collegato internamente con il giardino della casa e una piccola capannina per gli attrezzi di 7mq, totalmente in muratura e regolarmente condonata, sita ad un angolo interno del giardino.Degni di nota sono anche i due appartamenti condominiali che, essendo regolarmente locati, offrono una rendita tale da poter azzerare totalmente i costi condominiali dell’appartamento.
Riscaldamento autonomo.

L’appartamento è molto silenzioso e riservato ciò è garantito dal piano che lo eleva rispetto alla strada e dai tre affacci, due interni ed il terzo comunque rientrato rispetto a Via Canzone del Piave.

L’appartamento è particolarmente luminoso durante tutto l’arco della giornata godendo di una triplice esposizione (SUD – EST -OVEST) per la maggior parte a SUD.

La collocazione della palazzina rende l'accesso alla casa molto sicuro sia il giorno che la notte e le grate di sicurezza garantiscono la protezione dell’appartamento.

La posizione strategica dell'immobile, la vicinanza alla fermata metro, al centro commerciale e a tutti i principali servizi lo rendono estremamente confortevole per un uso residenziale.

LEGGI TUTTO

CONDIVIDI SUI SOCIAL

DATI PRINCIPALI

Riferimento
631450
Contratto
Vendita
Tipologia
Appartamento
Superficie
200 mq
Locali
5
Camere da letto
4
Bagni
2
Piano
Piano terra
Totale piani
5
Box/Posto auto
Singolo

CARATTERISTICHE

Ascensore

COSTI

Prezzo
€ 599.000,00

EFFICIENZA ENERGETICA

Stato
Da ristrutturare
Anno costruzione
1970
Riscaldamento
Autonomo
Climatizzazione
Si
Classe energetica
G
IPE
175,00 kWh/m²a

A+

A

B

C

D

E

F

175,00 kWh/m²a | Classe energetica G

G

MAPPA

ANNUNCI SIMILI

VENDITA 20
€ 530.000
Appartamento in Vendita a Roma (Roma)
  • Più di 5 locali
  • 155 mq
  • 3 bagni
VENDITA 20
€ 870.000
Appartamento in Vendita a Roma, Zona Eur
  • Più di 5 locali
  • 268 mq
  • 3 bagni
VENDITA 19
€ 479.000
Appartamento in Vendita a Roma (Roma)
  • Più di 5 locali
  • 145 mq
  • 2 bagni
VENDITA 20
€ 545.000
Appartamento in Vendita a Roma (Roma)
  • Più di 5 locali
  • 190 mq
  • 3 bagni
VENDITA 20
€ 648.000
Appartamento in Vendita a Roma (Roma)
  • Più di 5 locali
  • 240 mq
  • 3 bagni
VENDITA 20
€ 490.000
Appartamento in Vendita a Roma (Roma)
  • Più di 5 locali
  • 164 mq
  • 2 bagni
VENDITA 20
€ 570.000
Appartamento in Vendita a Roma (Roma)
  • Più di 5 locali
  • 150 mq
  • 2 bagni
VENDITA 20
€ 520.000
Appartamento in Vendita a Roma (Roma)
  • Più di 5 locali
  • 189 mq
  • 2 bagni
VENDITA 20
€ 265.000
Appartamento in Vendita a Roma (Roma)
  • Più di 5 locali
  • 137 mq
  • 2 bagni
VENDITA 20
€ 219.000
Appartamento in Vendita a Roma (Roma)
  • Più di 5 locali
  • 142 mq
  • 2 bagni