€ 299.000
  • Trilocale
  • 70 mq
  • 1 bagno

Appartamento in Vendita a Roma

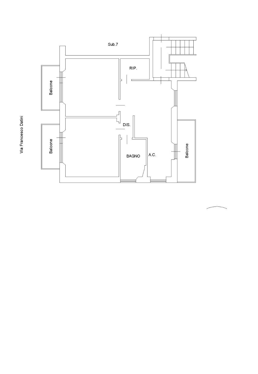
Proponiamo in vendita un appartamento situato in Via Francesco Datini, a pochi passi da Piazza Alberto Scotti e da tutti i servizi che la zona offre.
L'immobile è posto al primo piano (catastalmente secondo) di una palazzina in tinta.
L'appartamento è composto da:
soggiorno con angolo cottura, due camere matrimoniali, bagno, ripostiglio e tre balconi.
Ogni ambiente ha accesso diretto a uno dei balconi: quello della cucina si affaccia sull’interno, mentre i due delle camere si affacciano su Via Francesco Datini, una strada centrale ma tranquilla e poco trafficata.
L'appartamento si presenta in ottime condizioni interne e gode di una doppia esposizione che garantisce luminosità e ventilazione naturale.

We are pleased to offer for sale an apartment located on Via Francesco Datini, just a few steps from Piazza Alberto Scotti and all the amenities the area has to offer.
The property is situated on the first floor (second floor according to the land registry) of a well-maintained building with a painted facade.
The apartment consists of a spacious living room with an open-plan kitchen, two double bedrooms, a bathroom, a storage room, and three balconies.
Each room has direct access to one of the balconies: the kitchen balcony faces the inner courtyard, while the two bedroom balconies overlook Via Francesco Datini — a central yet quiet and low-traffic street.
The apartment is in excellent internal condition and enjoys dual exposure to the north and south, ensuring natural light and ventilation throughout the day.

LEGGI TUTTO

CONDIVIDI SUI SOCIAL

DATI PRINCIPALI

Riferimento
630175
Contratto
Vendita
Tipologia
Appartamento
Superficie
70 mq
Locali
3
Camere da letto
2
Cucina
Angolo cottura
Bagni
1
Piano
2 °
Totale piani
4

CARATTERISTICHE

Ascensore

COSTI

Prezzo
€ 299.000,00

EFFICIENZA ENERGETICA

Stato
Ristrutturato
Riscaldamento
Centralizzato
Classe energetica
G
IPE
175,00 kWh/m²a

A+

A

B

C

D

E

F

175,00 kWh/m²a | Classe energetica G

G

MAPPA

ANNUNCI SIMILI

VENDITA 20
€ 325.000
Appartamento in Vendita a Roma (Roma)
  • Quadrilocale
  • 105 mq
  • 1 bagno
VENDITA 20
€ 660.000
Appartamento in Vendita a Roma (Roma)
  • Quadrilocale
  • 170 mq
  • 3 bagni
VENDITA 20
€ 630.000
Appartamento in Vendita a Roma (Roma)
  • Più di 5 locali
  • 181 mq
  • 2 bagni
VENDITA 20
€ 449.000
Appartamento in Vendita a Roma (Roma)
  • Quadrilocale
  • 145 mq
  • 2 bagni
VENDITA 18
€ 375.000
Appartamento in Vendita a Roma (Roma)
  • Trilocale
  • 69 mq
  • 1 bagno
VENDITA 20
€ 630.000
Appartamento in Vendita a Roma (Roma)
  • Più di 5 locali
  • 155 mq
  • 3 bagni
VENDITA 15
€ 365.000
Appartamento in Vendita a Roma (Roma)
  • Trilocale
  • 113 mq
  • 1 bagno
VENDITA 20
€ 535.000
Appartamento in Vendita a Roma (Roma)
  • Quadrilocale
  • 140 mq
  • 3 bagni
VENDITA 20
€ 285.000
Appartamento in Vendita a Roma (Roma)
  • Trilocale
  • 89 mq
  • 1 bagno