• Trilocale
  • 80 mq
  • 1 bagno

Appartamento in Vendita a Guidonia Montecelio

Siamo lieti di presentarvi una splendida nuova costruzione situata nel cuore di Setteville Nord, in uno dei punti più richiesti e noti della zona.
Si tratta di uno stabile finemente realizzato, costruito con materiali di pregio e di grande qualità. La proprietà, distribuita su tre piani oltre i box fuori terra, e per un totale di dodici unità abitative, presenta appartamenti di vario taglio e tipologia.
Al piano terra troviamo appartamenti trilocali e quadrilocali, realizzati su di un unico livello e tutti rigorosamente con giardino e terrazzo.
Il piano superiore ospita invece solamente appartamenti taglio quattro locali disegnati su due livelli.
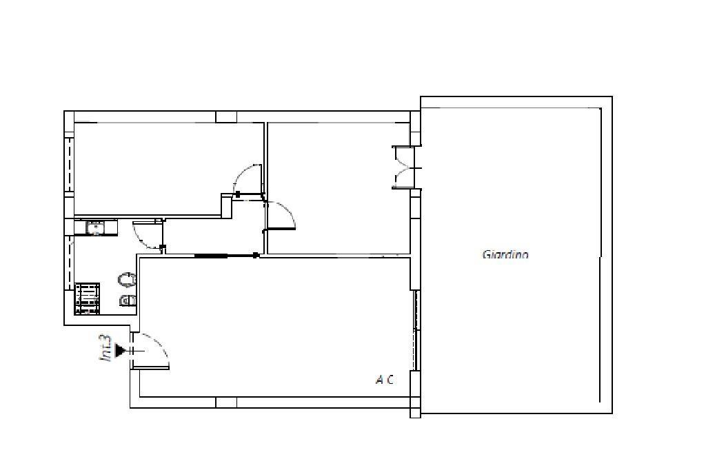
La soluzione trilocale, presenta una metratura interna di circa 80 mq ed è composta da soggiorno con angolo cottura, dove è possibile, grazie alla presenza di un'ampia porta finestra, accedere direttamente all'esterno, dove ad accoglierci troviamo una pertinenza verde e pavimentata. In questo modo, non solo potrete godere e beneficiare di momenti trascorsi all'aria aperta nel giardino di Casa, ma avrete in ogni momento della giornata luce diretta e luminosità costante. L'appartamento presenta poi, una comoda camera matrimoniale con porta finestra, creata per garantire luce all'intero ambiente ed un'altra camera ad ultimare la zona notte. Naturalmente l'appartamento dispone di un pratico bagno anch'esso finestrato, che assicura comfort e funzionalità all'intera abitazione.
E' inoltre possibile acquistare un comodo box auto dove, grazie alla presenza di un ascensore, è possibile accedere direttamente all'interno dello stabile in tutta facilità.
Non possono mancare tutti i comfrot che ogni appartamento di questo genere può avere, come riscaldamento a pavimento radiante, pannelli fotovoltaici da 1 kw, pannello solare 1kw, predisposizione per aria condizionata in ogni camera, video citofono, un punto per allaccio della lavatrice di cui uno all'interno ed uno esterno, predisposizione per l'antifurto, infissi di ultima generazione. La facciata dell'immobile verrà rivestita in alcuni punti con il Decodecking, e alcuni parapetti saranno decorati con in vetro fumé.
La società costruttrice offre, in aggiunta, la possibilità di personalizzare rivestimenti, pavimenti e tanto altro per incontrare al meglio gusti personali ed esigenze di tutta la Famiglia.
Consegna è prevista per l'estate 2026.
Contattaci per fissare il tuo appuntamento.
Per noi Casa non è un luogo, ma uno stato d'animo.

LEGGI TUTTO

CONDIVIDI SUI SOCIAL

DATI PRINCIPALI

Riferimento
628935
Contratto
Vendita
Tipologia
Appartamento
Superficie
80 mq
Locali
3
Camere da letto
2
Cucina
Angolo cottura
Bagni
1
Piano
Piano terra
Totale piani
3

CARATTERISTICHE

Ascensore

COSTI

Prezzo
€ 229.000,00

EFFICIENZA ENERGETICA

Stato
Nuovo/In costruzione
Anno costruzione
2025
Riscaldamento
Autonomo
Climatizzazione
Predisposizione
Classe energetica
A2
IPE
100,00 kWh/m²a

A4

A3

100,00 kWh/m²a | Classe energetica A2

A2

A1

B

C

D

E

F

G

MAPPA

ANNUNCI SIMILI

VENDITA 20
€ 275.000
Appartamento in Vendita a Guidonia Montecelio (Roma)
  • Quadrilocale
  • 130 mq
  • 2 bagni
VENDITA 20
€ 205.000
Appartamento in Vendita a Guidonia Montecelio (Roma)
  • Trilocale
  • 120 mq
  • 2 bagni
VENDITA 20
€ 135.000
Appartamento in Vendita a Guidonia Montecelio (Roma)
  • Trilocale
  • 120 mq
  • 2 bagni