APPARTAMENTO DI RECENTE COSTRUZIONE VENDITA

Via Lago Maggiore - Guidonia Montecelio (Roma)
€ 209.000
  • Trilocale
  • 100 mq
  • 2 bagni

Appartamento in Vendita a Guidonia Montecelio

Si propone in vendita un appartamento ubicato nella zona di Marco Simone e più precisamente in Via Lago Maggiore, in un contesto tranquillo e riservato.

L’immobile è posto al secondo piano di una palazzina di recente costruzione realizzata nel 2022 e servita da un pratico ascensore.

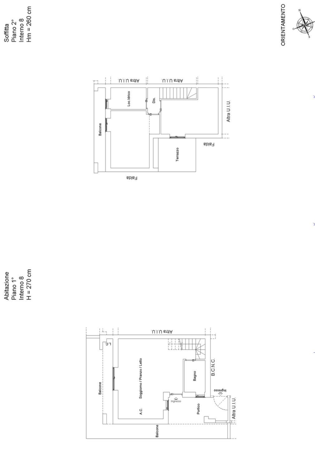
La proprietà offre una superficie interna di circa 80 mq, si sviluppa su due livelli ed è caratterizzata da ambienti moderni, luminosi e ben distribuiti, così disposti:

L’ingresso conduce ad un'accogliente zona living dal design moderno e minimale, impreziosita da una pratica cucina a vista. Da qui si accede al primo spazio esterno di pertinenza: un balcone perimetrale con affaccio libero esposto ad ovest, il quale dona ariosità e luce agli ambienti. A servizio del piano troviamo un bagno finestrato con box doccia.

Proseguendo al piano superiore si accede alla zona notte, composta da: una camera da letto matrimoniale con balcone, una cameretta con accesso ad un terrazzino, un secondo bagno ed un disimpegno a dividere gli ambienti in modo funzionale.

L’appartamento è dotato di impianto fotovoltaico da 1,5 kW ad uso esclusivo, pannello solare termico, riscaldamento tramite fancoil, videocitofono e telecamera con sensori. Le elevate prestazioni in termini di efficienza energetica rendono inoltre l’immobile idoneo all’accesso ad un Mutuo Green.

Completa la proprietà un comodo posto auto di pertinenza di circa 12 mq.

L’immobile rappresenta una soluzione ottima per chi cerca un appartamento moderno, funzionale e pronto da abitare!

PREZZO RICHIESTO: 209.000 EURO

LEGGI TUTTO

CONDIVIDI SUI SOCIAL

DATI PRINCIPALI

Riferimento
631572
Contratto
Vendita
Tipologia
Appartamento
Superficie
100 mq
Locali
3
Camere da letto
2
Cucina
A vista
Bagni
2
Piano
2 °
Totale piani
3
Box/Posto auto
Singolo

CARATTERISTICHE

Ascensore

COSTI

Prezzo
€ 209.000,00
Spese condominiali
€ 50,00 / mese

EFFICIENZA ENERGETICA

Stato
Ristrutturato
Anno costruzione
2022
Riscaldamento
Autonomo
Climatizzazione
Si
Classe energetica
A3
IPE
351,00 kWh/m²a

A4

351,00 kWh/m²a | Classe energetica A3

A3

A2

A1

B

C

D

E

F

G

MAPPA

ANNUNCI SIMILI

VENDITA 20
€ 205.000
Appartamento in Vendita a Guidonia Montecelio (Roma)
  • Trilocale
  • 120 mq
  • 2 bagni
VENDITA 20
€ 135.000
Appartamento in Vendita a Guidonia Montecelio (Roma)
  • Trilocale
  • 120 mq
  • 2 bagni