TRILOCALE RISTRUTTURATO VENDITA

Via Anastasio Secondo - Roma (Roma)
€ 589.000
  • Trilocale
  • 111 mq
  • 2 bagni

Appartamento in Vendita a Roma

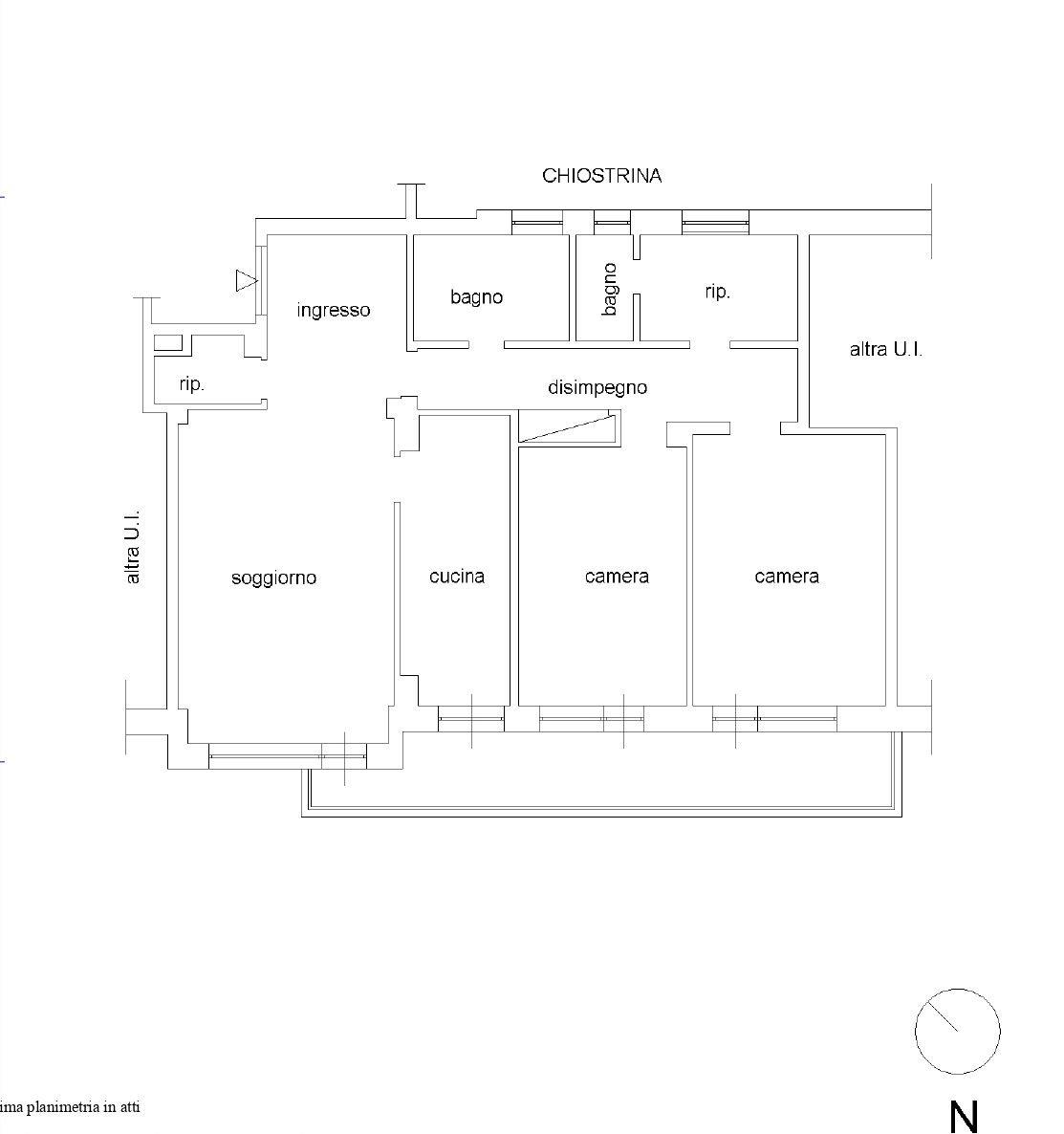
AD.ZE PIAZZALE DEGLI EROI - MUSEI VATICANI - METRO 'A' CIPRO - VIA ANASTASIO SECONDO - Proponiamo la vendita di un appartamento posto al 5° piano completamente ristrutturato composto da : ingresso, soggiorno, due camere, cucina abitabile, doppi servizi, ripostiglio, lavanderia, balcone di 13 mq c.a. Tutti gli ambienti sono climatizzati, parquet in rovere sbiancato. Ubicato in zona ricca di servizi (negozi, banche, scuole), metro A 'Cipro' a pochi passi, vicinissimo ai Musei Vaticani e Piazza San Pietro. Ottimo anche come investimento ad uso turistico ricettivo.
Per maggiori informazioni contattare il numero 06.69.37.37.59 - whatsapp 3440749124 . Siamo certificati per le valutazioni immobiliari online. Cosa aspetti, chiedi anche tu la valutazione GRATUITA del tuo immobile, copia il link qui di seguito https://www.agentpricing.com/g.filice A.R.I. srl - Agenzia Romana Immobiliare - è una società di intermediazione nata con l' obiettivo di essere il punto di riferimento del cliente per risolvere ogni problema di natura immobiliare nella città di Roma e provincia. Grazie alla consolidata sinergia tra professionisti del settore, ARI srl offre al cliente La soluzione per tutte le esigenze: extra visibilità pubblicitaria, convenzioni con studi notarili e studi d' architettura. ARI, I PROFESSIONISTI CHE CERCAVI.

LEGGI TUTTO

CONDIVIDI SUI SOCIAL

DATI PRINCIPALI

Riferimento
629214
Contratto
Vendita
Tipologia
Appartamento
Superficie
111 mq
Locali
3
Camere da letto
2
Cucina
Abitabile
Bagni
2
Piano
5 °
Totale piani
7
Box/Posto auto
Singolo

CARATTERISTICHE

Ascensore

COSTI

Prezzo
€ 589.000,00
Spese condominiali
€ 87,00 / mese

EFFICIENZA ENERGETICA

Stato
Ristrutturato
Anno costruzione
1969
Riscaldamento
Centralizzato
Climatizzazione
Si
Classe energetica
E
IPE
81,52 kWh/m²a

A+

A

B

C

D

81,52 kWh/m²a | Classe energetica E

E

F

G

MAPPA

ANNUNCI SIMILI

VENDITA 20
€ 460.000
Appartamento in Vendita a Roma (Roma)
  • Trilocale
  • 130 mq
  • 1 bagno
VENDITA 2
€ 482.000
Appartamento in Vendita a Roma (Roma)
  • Quadrilocale
  • 125 mq
  • 1 bagno
VENDITA
€ 310.000
Appartamento in Vendita a Roma (Roma)
  • Trilocale
  • 85 mq
  • 1 bagno
VENDITA 20
€ 499.000
Appartamento in Vendita a Roma (Roma)
  • Più di 5 locali
  • 120 mq
  • 2 bagni
VENDITA 20
€ 660.000
Appartamento in Vendita a Roma (Roma)
  • Più di 5 locali
  • 145 mq
  • 3 bagni
VENDITA 20
€ 530.000
Appartamento in Vendita a Roma (Roma)
  • Quadrilocale
  • 120 mq
  • 2 bagni
VENDITA 20
€ 575.000
Appartamento in Vendita a Roma (Roma)
  • Quadrilocale
  • 130 mq
  • 2 bagni
VENDITA 20
€ 519.000
Appartamento in Vendita a Roma (Roma)
  • Quadrilocale
  • 120 mq
  • 2 bagni