Trilocale con terrazzo – Complesso Le Vele VENDITA

Piazza Generale Carlo Alberto dalla Chiesa 41/E - Fiumicino (Roma)
€ 309.000
  • Trilocale
  • 94 mq
  • 2 bagni

Appartamento in Vendita a Fiumicino

Trilocale elegante con terrazzo e vista sul verde – Parco Le Vele, Fiumicino
APPARTAMENTO AFFITTATO FINO A LUGLIO 2027
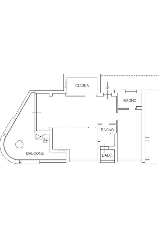
Cerchi un appartamento raffinato in una delle zone più esclusive di Fiumicino, a due passi dal mare e dal Lungo Porto? Questo trilocale di 95 mq, situato nel prestigioso Parco Le Vele, unisce comfort, sicurezza e luminosità in ogni ambiente.
Caratteristiche principali:
Posizione: Secondo piano con ascensore in stabile del 2009, immerso nel verde.
Soggiorno: Ampio e luminoso, con grande portafinestra scorrevole e accesso a un terrazzo di 25 mq affacciato sul parco interno.
Cucina: Cucinotto con cucina Chic completa di lavastoviglie e frigorifero inclusi nella vendita.
Camere:
Camera matrimoniale con bagno en suite finestrato e vasca.
Seconda camera con bagno privato dotato di doccia idromassaggio e balconcino.
Completano la proprietà una splendida palestra all’interno del parco, fermata bus per l’aeroporto di Fiumicino e altre destinazioni, tutti i negozi nelle vicinanze, supermercato e lavanderia all’americana.
L’appartamento è rifinito con parquet in tutti gli ambienti, tapparelle elettriche nelle camere, aria condizionata in tutta la casa, riscaldamento autonomo, porta blindata e impianto d’allarme.

LEGGI TUTTO

CONDIVIDI SUI SOCIAL

DATI PRINCIPALI

Riferimento
642322
Contratto
Vendita
Tipologia
Appartamento
Superficie
94 mq
Locali
3
Camere da letto
2
Cucina
Cucinotto
Bagni
2
Piano
2 °
Totale piani
4

CARATTERISTICHE

Ascensore

COSTI

Prezzo
€ 309.000,00
Spese condominiali
€ 87,00 / mese

EFFICIENZA ENERGETICA

Stato
Ristrutturato
Anno costruzione
2005
Riscaldamento
Autonomo
Climatizzazione
Si
Classe energetica
G
IPE
175,00 kWh/m²a

A+

A

B

C

D

E

F

175,00 kWh/m²a | Classe energetica G

G

MAPPA

ANNUNCI SIMILI

VENDITA 20
€ 375.000
Appartamento in Vendita a Fiumicino (Roma)
  • Quadrilocale
  • 90 mq
  • 2 bagni
VENDITA 20
€ 299.000
Appartamento in Vendita a Fiumicino (Roma)
  • Quadrilocale
  • 171 mq
  • 1 bagno
VENDITA 19
€ 195.000
Appartamento in Vendita a Fiumicino (Roma)
  • Trilocale
  • 65 mq
  • 2 bagni