Fiumicino: Appartamento 188mq con attività ricettiva VENDITA

Via della Torre Clementina - Fiumicino (Roma)
€ 740.000
  • Più di 5 locali
  • 188 mq
  • 4 bagni

Appartamento in Vendita a Fiumicino

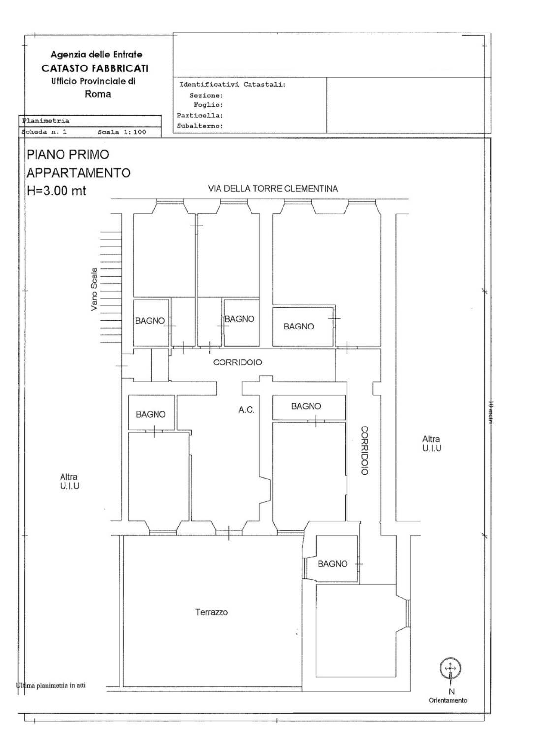
Nel cuore pulsante di Fiumicino, nella storica ed esclusiva cornice di Via Torre Clementina, proponiamo in vendita un immobile unico nel suo genere di 188 mq situato all'interno del celebre Borgo Valadier.

L'appartamento, sviluppato interamente su un unico livello, si presenta in condizioni impeccabili ed è attualmente sede di una struttura ricettiva di ottimo livello. La disposizione interna è ottimizzata per il massimo comfort:
- Accogliente Reception all'ingresso;
- 6 Camere Matrimoniali dal design moderno, ognuna servita da bagno privato en-suite;
- Zona colazione luminosa;
- Terrazzo.

L'immobile viene venduto comprensivo dell'attività ricettiva già avviata, che vanta buone recensioni sui principali portali di settore. Un'occasione imperdibile per chi desidera un asset immobiliare di pregio con un business "chiavi in mano" già posizionato sul mercato.

Scegliere questa proprietà significa acquisire un pezzo di storia nel cuore pulsante di Fiumicino. Situato nell'iconico Borgo Valadier, l'immobile è immerso nell'atmosfera ottocentesca disegnata dal celebre architetto Giuseppe Valadier, tra caratteristiche facciate color pastello e il fascino intramontabile dell'affaccio sul canale. Via Torre Clementina rappresenta oggi l'area pedonale d'élite della città: un salotto a cielo aperto rinomato per i suoi prestigiosi ristoranti. La posizione è strategicamente imbattibile, trovandosi a soli 10 minuti dall'Aeroporto Internazionale Leonardo da Vinci e a breve distanza dalla Nuova Fiera di Roma; un connubio perfetto che garantisce uno stile di vita dinamico e una redditività costante 365 giorni l'anno, intercettando un flusso inesauribile di turismo internazionale e clientela business.

Prezzo €740.000,00

Per avere ulteriori informazioni, contatta l'agenzia RE/MAX Aurea ai seguenti numeri: +39 06.21115542
Rif. 38081013-43

Perché affidarsi a RE/MAX Aurea?
Agenti esperti ti supporteranno dall'inizio alla fine e, addirittura, dopo il processo di vendita.
Ogni giorno i consulenti RE/MAX soddisfano in modo veloce e trasparente le esigenze di ricerca, affitto e vendita di appartamenti, case, immobili residenziali e commerciali in Italia e all’estero. Qualsiasi sia il tuo prossimo passo fallo con RE/MAX Aurea!

Le presenti informazioni non costituiscono elemento contrattuale, per approfondimenti invitiamo la clientela a contattarci per effettuare un sopralluogo all'interno della proprietà e consultare tutta la documentazione presente presso la nostra agenzia.

LEGGI TUTTO

CONDIVIDI SUI SOCIAL

DATI PRINCIPALI

Riferimento
635595
Contratto
Vendita
Tipologia
Appartamento
Superficie
188 mq
Locali
Più di 5
Camere da letto
Più di 5
Cucina
Angolo cottura
Bagni
4
Piano
1 °
Totale piani
2

CARATTERISTICHE

Ascensore

COSTI

Prezzo
€ 740.000,00
Spese condominiali
€ 60,00 / mese

EFFICIENZA ENERGETICA

Stato
Nuovo/In costruzione
Anno costruzione
1800
Riscaldamento
Autonomo
Climatizzazione
Si
Classe energetica
E
IPE
351,00 kWh/m²a

A+

A

B

C

D

351,00 kWh/m²a | Classe energetica E

E

F

G

MAPPA

ANNUNCI SIMILI

VENDITA 20
€ 195.000
Appartamento in Vendita a Fiumicino (Roma)
  • Più di 5 locali
  • 160 mq
  • 3 bagni
VENDITA 20
€ 205.000
Appartamento in Vendita a Fiumicino (Roma)
  • Più di 5 locali
  • 160 mq
  • 3 bagni
VENDITA 17
€ 430.000
Appartamento in Vendita a Fiumicino (Roma)
  • Più di 5 locali
  • 150 mq
  • 2 bagni
VENDITA 20
€ 350.000
Appartamento in Vendita a Fiumicino (Roma)
  • Più di 5 locali
  • 300 mq
  • 3 bagni
VENDITA 20
€ 359.000
Appartamento in Vendita a Fiumicino (Roma)
  • Più di 5 locali
  • 375 mq
  • 3 bagni