Trilocale con terrazzo Aurelia VENDITA

Via Riva Ligure - Roma (Roma)
€ 299.000
  • Trilocale
  • 89 mq
  • 2 bagni

Appartamento in Vendita a Roma

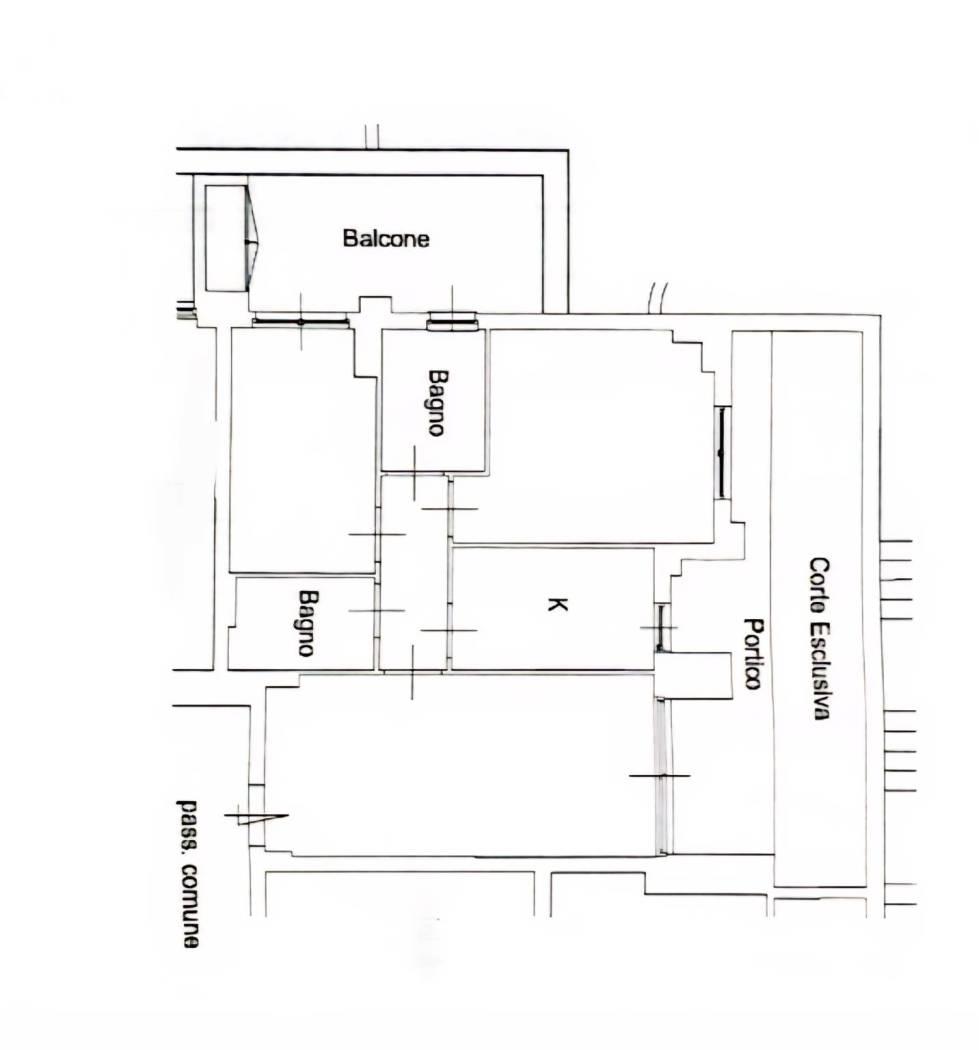
Aurelia, adiacente Panorana, costruzione del 2018, appartamento piano terra rialzato, affaccio primo, ottime finiture, pavimenti in parquet, infissi in legno con vetro camera, riscaldamento centralizzato, aria condizionata, videocitofono, porta blindata, inferriate, antenna satellitare, isolamento termo acustico, pannelli fotovoltaici. La composizione è salone a vista, 2 camere, cucina semi abitabile, 2 bagni, 2 terrazzi abitabili per un totale di mq. 40 ca.
La palazzina si trova serito in una zona di nuova edificazione tra via Aurelia e via dedgli Aldobrandeschi, zona ben servita a due passi dalla stzione Aurelia.
L'immobile ha come pertinenza un ampio posto auto coperto.
Il prezzo richiesto è di euro 299.000.
Per ulteriori informazioni potete contattarci ai seguenti numeri telefonici 06/632011 - 334/3361684 oppure visitate il nostro sito www.studiosanpietro.com

LEGGI TUTTO

CONDIVIDI SUI SOCIAL

DATI PRINCIPALI

Riferimento
635666
Contratto
Vendita
Tipologia
Appartamento
Superficie
89 mq
Locali
3
Camere da letto
2
Cucina
Abitabile
Bagni
2
Piano
Piano rialzato
Totale piani
6
Box/Posto auto
Singolo

CARATTERISTICHE

Ascensore

COSTI

Prezzo
€ 299.000,00
Spese condominiali
€ 90,00 / mese

EFFICIENZA ENERGETICA

Stato
Ristrutturato
Anno costruzione
2018
Riscaldamento
Centralizzato
Climatizzazione
Si
Classe energetica
A
IPE
175,00 kWh/m²a

A+

175,00 kWh/m²a | Classe energetica A

A

B

C

D

E

F

G

MAPPA

ANNUNCI SIMILI

VENDITA 20
€ 360.000
Appartamento in Vendita a Roma (Roma)
  • Più di 5 locali
  • 84 mq
  • 2 bagni
VENDITA 20
€ 469.000
Appartamento in Vendita a Roma (Roma)
  • Trilocale
  • 95 mq
  • 2 bagni
VENDITA 20
€ 370.000
Appartamento in Vendita a Roma (Roma)
  • Trilocale
  • 76 mq
  • 2 bagni
VENDITA 20
€ 370.000
Appartamento in Vendita a Roma (Roma)
  • Trilocale
  • 76 mq
  • 2 bagni
VENDITA 16
€ 449.000
Appartamento in Vendita a Roma (Roma)
  • Quadrilocale
  • 180 mq
  • 2 bagni
VENDITA 13
€ 454.500
Appartamento in Vendita a Roma (Roma)
  • Trilocale
  • 92 mq
  • 2 bagni