AURELIA – VIA DEGLI ALDOBRANDESCHI VENDITA

Via degli Aldobrandeschi - Roma (Roma)
€ 337.000
  • Trilocale
  • 88 mq
  • 2 bagni

Appartamento in Vendita a Roma

TRILOCALE PANORAMICO – ULTIMO PIANO
Box auto | Cantina | Soffitta
In una delle zone più apprezzate dell’area Aurelia, e precisamente in Via degli Aldobrandeschi, Gruppo Valutare.Casa S.r.l. propone in vendita un luminoso trilocale panoramico, posto al quinto ed ultimo piano di una elegante palazzina in cortina.
L’appartamento ha una superficie catastale di 88 mq (81 mq escluse le aree scoperte) ed è completato da cantina, soffitta e comodo box auto di 20 mq, una vera comodità nella zona.



POSSIBILITA’ DILAZIONE DEI PAGAMENTI IN 24 MESI
Con consegna immediata


DESCRIZIONE DELL’IMMOBILE
Inserito in un comprensorio signorile edificato alla fine degli anni ’80, immerso nel verde e particolarmente curato, l’immobile si distingue per tranquillità, privacy e ampia panoramicità.
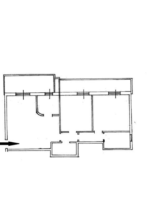
L’appartamento si compone di:
• ampio soggiorno
• due grandi camere da letto
• cucina abitabile
• doppi servizi (uno finestrato e uno cieco)
• due terrazzette vivibili, una nella zona giorno e una nella zona notte
La favorevole esposizione a sud garantisce luce naturale per tutto l’arco della giornata; l’affaccio aperto sulla vallata e la notevole distanza dagli altri edifici assicurano una vista gradevole e un’eccellente riservatezza.
L’immobile si presenta in buono stato manutentivo.


POSIZIONE E COLLEGAMENTI
La posizione rappresenta un perfetto equilibrio tra quietezza residenziale e collegamenti rapidi:
• facile accesso a Via Aurelia
• rapido collegamento con San Pietro e il Grande Raccordo Anulare
• a circa 1 km la Stazione FS Aurelia (FL5), con collegamenti diretti verso il centro di Roma e le principali località balneari del litorale laziale


DOTAZIONI
• Riscaldamento autonomo
• Spese condominiali: € 82 circa/mese
• Box auto privato
• Cantina e soffitta di proprietà


DATI CATASTALI
Appartamento + Cantina
• Categoria: A/2
• Vani: 5,5
• Superficie catastale: 88 mq
• Rendita catastale: € 1.193,02
Soffitta
• Categoria: C/2
• Superficie: 8 mq
• Rendita catastale: € 31,61
Box auto
• Categoria: C/6
• Superficie: 20 mq
• Rendita catastale: € 167,33
Imposte di registro
• Prima casa: € 3.215,43
• Seconda casa: € 15.784,83


INFO E CONTATTI
06 89872280
info@valutare.casa
www.valutare.casa

LEGGI TUTTO

CONDIVIDI SUI SOCIAL

DATI PRINCIPALI

Riferimento
625808
Contratto
Vendita
Tipologia
Appartamento
Superficie
88 mq
Locali
3
Camere da letto
2
Cucina
Abitabile
Bagni
2
Piano
5 °
Totale piani
5
Box/Posto auto
Singolo

CARATTERISTICHE

Ascensore

COSTI

Prezzo
€ 337.000,00
Spese condominiali
€ 82,00 / mese

EFFICIENZA ENERGETICA

Stato
Abitabile
Riscaldamento
Autonomo
Classe energetica
E
IPE
175,00 kWh/m²a

A+

A

B

C

D

175,00 kWh/m²a | Classe energetica E

E

F

G

MAPPA

ANNUNCI SIMILI

VENDITA 13
€ 248.000
Appartamento in Vendita a Roma (Roma)
  • Trilocale
  • 75 mq
  • 2 bagni
VENDITA 17
€ 185.000
Appartamento in Vendita a Roma (Roma)
  • Trilocale
  • 70 mq
  • 1 bagno
VENDITA 14
€ 195.000
Appartamento in Vendita a Roma (Roma)
  • Trilocale
  • 75 mq
  • 1 bagno
VENDITA 13
€ 454.500
Appartamento in Vendita a Roma (Roma)
  • Trilocale
  • 92 mq
  • 2 bagni
VENDITA 14
€ 505.500
Appartamento in Vendita a Roma (Roma)
  • Quadrilocale
  • 109 mq
  • 2 bagni
VENDITA 20
€ 390.000
Appartamento in Vendita a Roma (Roma)
  • Quadrilocale
  • 117 mq
  • 2 bagni