Trilocale con affaccio aperto VENDITA

Via Pietro Baragiola - Roma, Frazione Tor Vergata
€ 259.000
  • Trilocale
  • 89 mq
  • 2 bagni

Appartamento in Vendita a Roma

TOR VERGATA NUOVA, Via Pietro Baragiola.

In un contesto residenziale tranquillo e immerso nel verde, l'Agenzia immobiliare SOLO CASA propone la vendita un delizioso trilocale situato in una palazzina signorile di recente costruzione di soli tre piani dotata di ascensore.

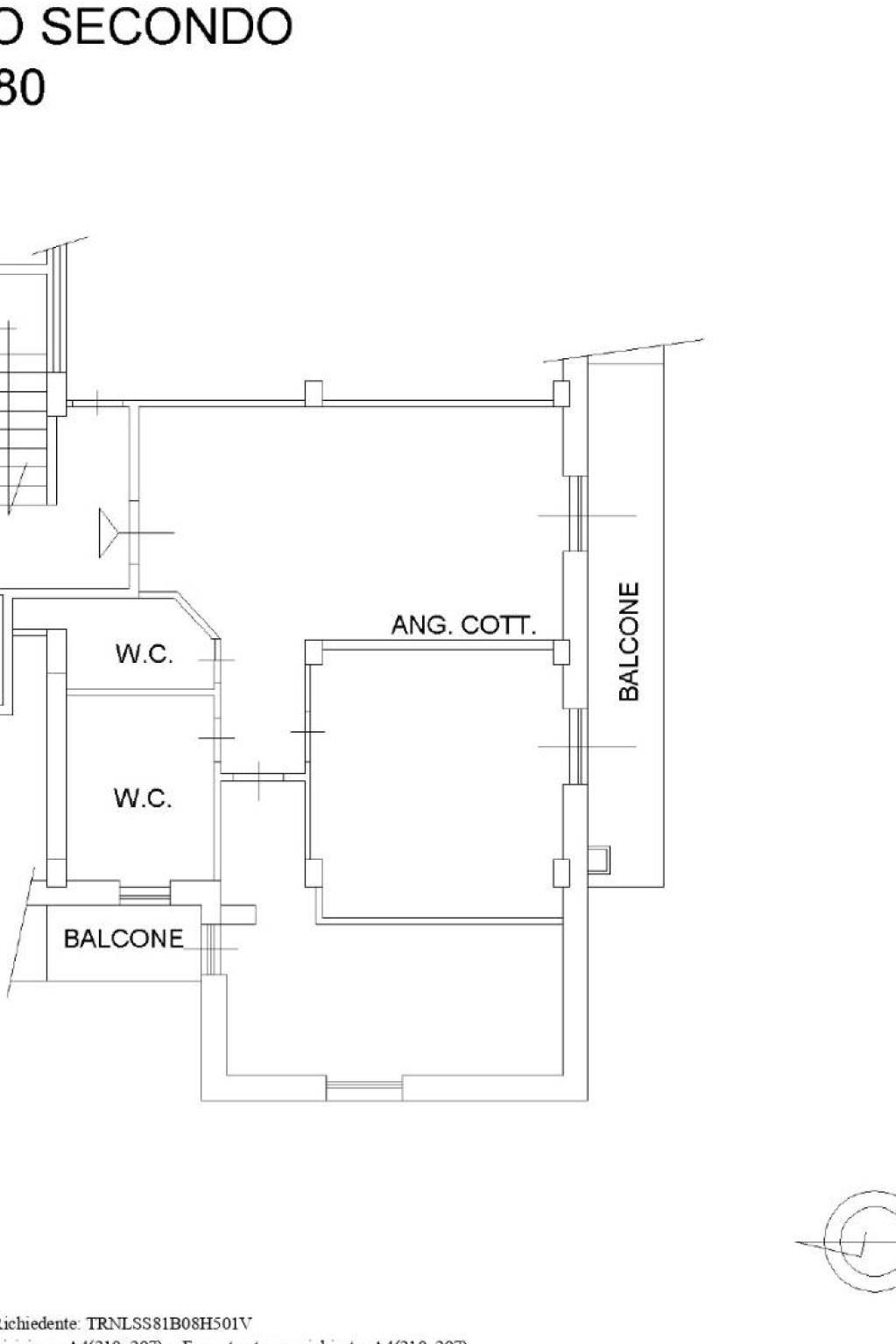
L’appartamento, posto al secondo piano, vanta un’esposizione ottimale a Sud-Ovest che garantisce luminosità naturale per l'intera giornata e un affaccio libero e silenzioso con una splendida vista panoramica verso i Castelli Romani.

Internamente si compone di salone a vista con angolo cottura, con accesso diretto al balcone principale ideale per momenti di relax e cene all'aperto, disimpegno, due camere da letto, doppi servizi e secondo balcone.

Posto auto assegnato.

Ottimo come investimento data la vicinanza all'Università e al Policlinico di Tor Vergata (serviti anche dalle linee bus di zona) che rende questa proprietà un'opportunità unica sia per abitazione principale che per investimento locativo ad alta redditività.
Inoltre, la vicinanza alla Metro C rappresenta un valore aggiunto fondamentale per chi lavora o studia a Roma; Via Pietro Baragiola si trova infatti a circa 1 km (12-15 minuti a piedi) dalle fermate Torrenova e Torre Angela.

Classe Energetica: G EPI EP gl 175,00 kWh/m
Rif.T329 € 259.000

Siamo disposizione per fornirVi maggiori informazioni e per fissare un sopralluogo sull'immobile in oggetto, se è possibile con un minimo di preavviso, al nostro numero telefonico 06.96.03.56.48 - 334.6386780 oppure al nostro indirizzo email monteverde@solocasaimmobiliare.it. Siamo reperibili dal lunedì al venerdì dalle ore 9.00 alle ore 13.00 e dalle 15.30 alle 19.30, mentre il sabato dalle ore 9.00 alle ore 13.00.
Per ulteriori foto e dettagli visitate il nostro sito internet www.solocasaimmobiliare.it.

LEGGI TUTTO

CONDIVIDI SUI SOCIAL

DATI PRINCIPALI

Riferimento
631976
Contratto
Vendita
Tipologia
Appartamento
Superficie
89 mq
Locali
3
Camere da letto
2
Cucina
Angolo cottura
Bagni
2
Piano
2 °
Totale piani
3
Box/Posto auto
Singolo

CARATTERISTICHE

Ascensore

COSTI

Prezzo
€ 259.000,00
Spese condominiali
€ 60,00 / mese

EFFICIENZA ENERGETICA

Stato
Ristrutturato
Anno costruzione
2011
Riscaldamento
Autonomo
Climatizzazione
Si
Classe energetica
G
IPE
351,00 kWh/m²a

A+

A

B

C

D

E

F

351,00 kWh/m²a | Classe energetica G

G

MAPPA

ANNUNCI SIMILI

VENDITA 20
€ 325.000
Appartamento in Vendita a Roma, Frazione Tor Vergata
  • Quadrilocale
  • 110 mq
  • 2 bagni
VENDITA 20
€ 309.000
Appartamento in Vendita a Roma, Frazione Giardinetti
  • Quadrilocale
  • 125 mq
  • 2 bagni
VENDITA 20
€ 199.000
Appartamento in Vendita a Roma, Frazione Tor Vergata
  • Quadrilocale
  • 80 mq
  • 1 bagno
VENDITA 13
€ 89.000
Appartamento in Vendita a Roma, Frazione Tor Vergata
  • Trilocale
  • 65 mq
  • 1 bagno