CARCARICOLA QUADRILOCALE CON TERRAZZO PANORAMICO VENDITA

Via Francesco Tensi - Roma, Frazione Giardinetti
€ 239.000
  • Quadrilocale
  • 110 mq
  • 2 bagni

Appartamento in Vendita a Roma

CARCARICOLA QUADRILOCALE BILIVELLO CON TERRAZZO PANORAMICO E POSTO AUTO
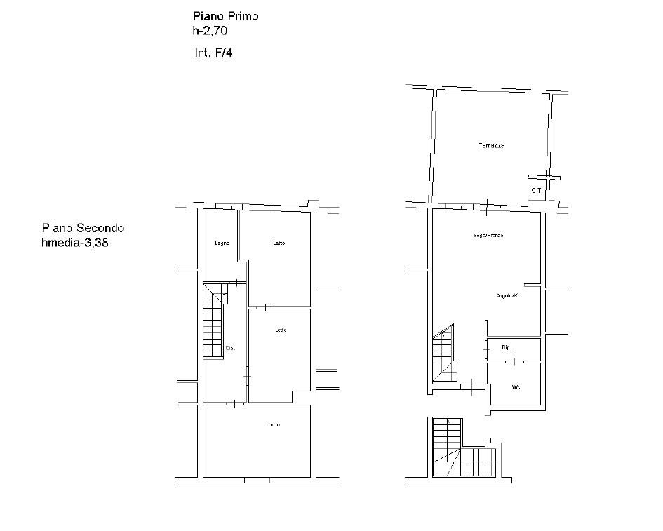
In via di Carcaricola all'interno di un residence privato, a pochi minuti dal Grande Raccordo Anulare, dall'università di Tor Vergata e dal centro commerciale La Romanina, la Roma Case RE propone in vendita un ampio e luminoso appartamento posto ai piani primo e secondo di circa 100 mq, perfetto per famiglie numerosi o uso investimento come affitto per studenti. Composizione interna: • Ingresso su ampio salone con angolo cottura • 3 comode camere da letto, ideali per famiglia numerosa o studio • 2 bagni • Splendido terrazzo panoramico vivibile, ideale per pranzi all’aperto o momenti di relax • Posto auto di proprietà all’interno del residence L’immobile si presente in ottimo stato, in un contesto tranquillo riservato e ben curato, gode di ottima esposizione e luce naturale tutto il giorno, la distribuzione su due livelli inoltre divide la zona giorno dalla zona notte massimizzando la vivibilità dell’appartamento. € 239.000 TRATTABILI Contattaci per maggiori informazioni e per organizzare una visita. Per maggiori informazioni contattare il n . 0620765578 – 3519586976 . I dati si intendono corretti ma non garantiti. La presente non costituisce, in nessun caso, documento contrattuale

LEGGI TUTTO

CONDIVIDI SUI SOCIAL

DATI PRINCIPALI

Riferimento
633083
Contratto
Vendita
Tipologia
Appartamento
Superficie
110 mq
Locali
4
Camere da letto
3
Cucina
Angolo cottura
Bagni
2
Piano
1 °
Totale piani
2
Box/Posto auto
Singolo

CARATTERISTICHE

Ascensore

COSTI

Prezzo
€ 239.000,00
Spese condominiali
€ 50,00 / mese

EFFICIENZA ENERGETICA

Stato
Ristrutturato
Anno costruzione
2008
Riscaldamento
Autonomo
Classe energetica
G
IPE
175,00 kWh/m²a

A+

A

B

C

D

E

F

175,00 kWh/m²a | Classe energetica G

G

MAPPA

ANNUNCI SIMILI

VENDITA 20
€ 309.000
Appartamento in Vendita a Roma, Frazione Giardinetti
  • Quadrilocale
  • 125 mq
  • 2 bagni
VENDITA 20
€ 325.000
Appartamento in Vendita a Roma, Frazione Tor Vergata
  • Quadrilocale
  • 110 mq
  • 2 bagni
VENDITA 20
€ 345.000
Appartamento in Vendita a Roma, Zona Romanina
  • Quadrilocale
  • 116 mq
  • 2 bagni
VENDITA 20
€ 269.000
Appartamento in Vendita a Roma, Zona Romanina
  • Più di 5 locali
  • 102 mq
  • 2 bagni
VENDITA 20
€ 199.000
Appartamento in Vendita a Roma, Frazione Tor Vergata
  • Quadrilocale
  • 80 mq
  • 1 bagno