Tor De' Cenci VENDITA

Via Aldo Banzi 23 - Roma (Roma)
€ 330.000
  • Quadrilocale
  • 138 mq
  • 2 bagni

Appartamento in Vendita a Roma

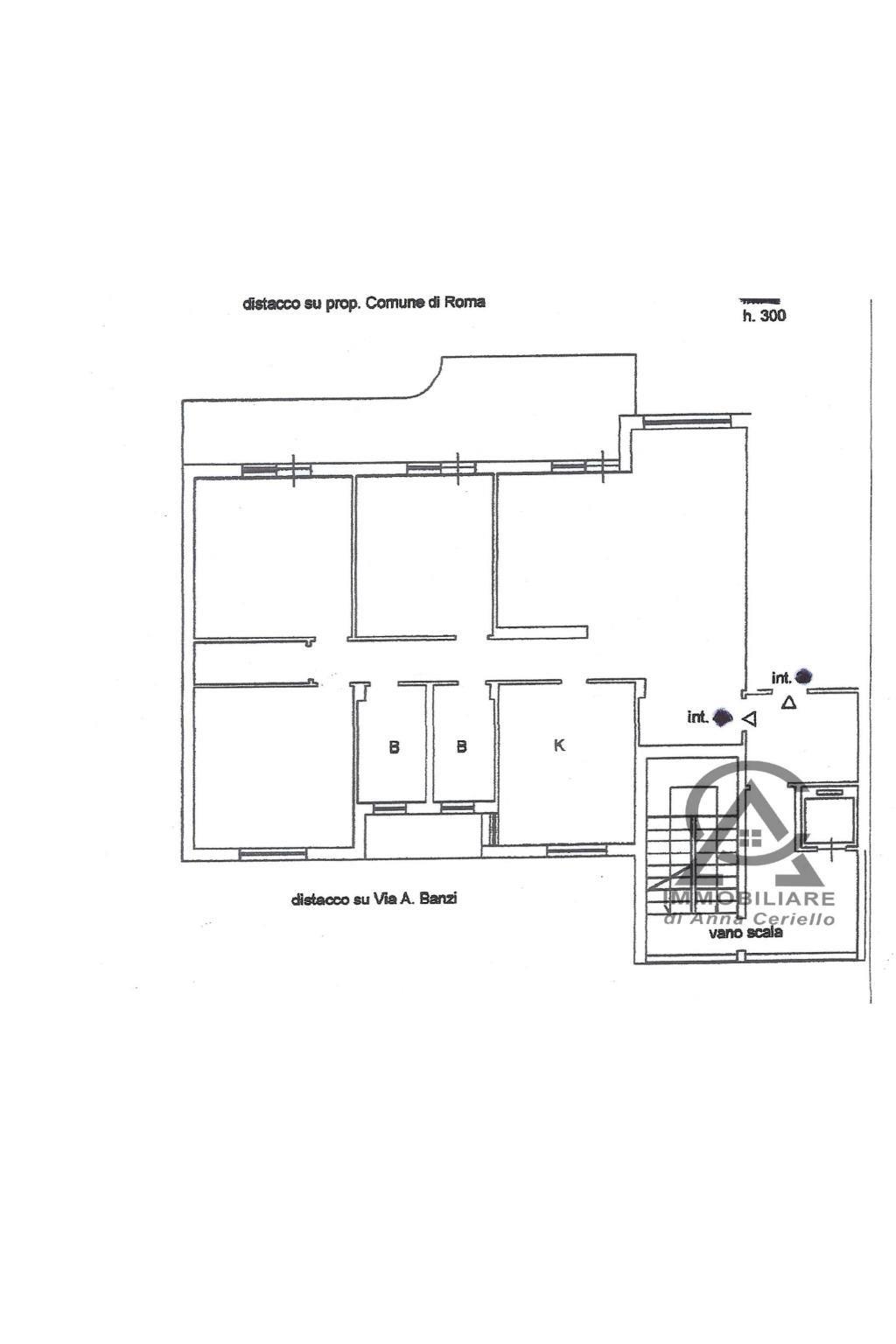
In via Aldo Banzi proponiamo appartamento in vendita in palazzo in semicortina immerso nel verde e circondato da tanti Giardini pubblici, Appartamento posto al 2° piano di mq. 135ca interni composto da Ampio ingresso living su doppio salone con accesso su terrazzo, ampia cucina abitabile, corridoio di accesso alle 3 camere da letto matrimoniali, e ai doppi servizi entrambi con finestra, ripostiglio, balcone, terrazzo. completano la proprietà una cantina di mq.7ca posta al piano terra e un ampio posto auto al piano seminterrato di facile manovra con accesso da un cancello elettrico. l'immobile è in buono stato di manutenzione, la porta è blindata, pavimenti in ceramica originali, finestre in legno con doppio vetro, zanzariere e cancelletti, porte in legno, impianto di allarme.

il quartiere si trova nell'area sud della città, a ridosso ed esternamente al Grande Raccordo Anulare, fra la via Cristoforo Colombo a ovest e la via Pontina a est. a parte residenziale ma con tante attività commerciali oltre a tanti tanti servizi adiacenti quali scuole, uffici pubblici e privati, parchi per bambini, chiese, supermercati, mercato rionale, e tanti negozidi vario genere...etc

Ben servita da mezzi pubblici che collegano la zona con i quarieri limitrofi.

Le presenti informazioni e le planimetrie allegate sono puramente indicative e non costituiscono elementi contrattuali. Ogni errore ed inesattezza è facilmente opinabile da una consultazione documentale a vostra disposizione nel nostro ufficio dal nostro personale. Per qualsiasi informazione e/o comunicazione, valutazione, vendita potete contattarci tramite telefono, whatsapp ai seguenti numeri: 3338135502/ 3478822495/ 0684387142 o scriverci alla seguente Mail: aceriimmobiliare@gmail.com

LEGGI TUTTO

CONDIVIDI SUI SOCIAL

DATI PRINCIPALI

Riferimento
628809
Contratto
Vendita
Tipologia
Appartamento
Superficie
138 mq
Locali
4
Camere da letto
3
Cucina
Abitabile
Bagni
2
Piano
2 °
Totale piani
7
Box/Posto auto
Singolo

CARATTERISTICHE

Ascensore

COSTI

Prezzo
€ 330.000,00
Spese condominiali
€ 100,00 / mese

EFFICIENZA ENERGETICA

Stato
Abitabile
Anno costruzione
1991
Riscaldamento
Autonomo
Climatizzazione
Si
Classe energetica
G
IPE
175,00 kWh/m²a

A+

A

B

C

D

E

F

175,00 kWh/m²a | Classe energetica G

G

MAPPA

ANNUNCI SIMILI

VENDITA 20
€ 149.000
Appartamento in Vendita a Roma (Roma)
  • Quadrilocale
  • 142 mq
  • 2 bagni
VENDITA 20
€ 295.000
Appartamento in Vendita a Roma (Roma)
  • Quadrilocale
  • 145 mq
  • 2 bagni
VENDITA 20
€ 289.000
Appartamento in Vendita a Roma (Roma)
  • Quadrilocale
  • 140 mq
  • 2 bagni
VENDITA 20
€ 289.000
Appartamento in Vendita a Roma (Roma)
  • Più di 5 locali
  • 140 mq
  • 2 bagni
VENDITA 20
€ 319.000
Appartamento in Vendita a Roma (Roma)
  • Più di 5 locali
  • 130 mq
  • 2 bagni
VENDITA 19
€ 339.000
Appartamento in Vendita a Roma (Roma)
  • Quadrilocale
  • 193 mq
  • 2 bagni