TOR DE CENCI - QUADRILOCALE PANORAMICO CON TERRAZZO E P.AUTO VENDITA

Via Romolo Gigliozzi - Roma (Roma)
€ 270.000
  • Quadrilocale
  • 135 mq
  • 2 bagni

Appartamento in Vendita a Roma

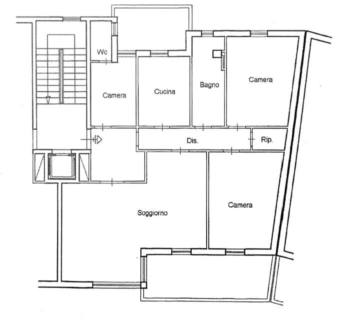
TOR DE CENCI, in via molto riservata, ed a ridosso di due parchi (Parco Fernando Pereira e Parco del Risaro), precisamente in Via ROMOLO GIGLIOZZI , proponiamo appartamento al 5° e ultimo piano di 135 mq catastali con 2 terrazzi, in stabile in cortina, oltre posto auto coperto in autorimessa di 20 mq.
L’immobile, molto panoramico con affaccio sul verde, si compone di ampio ingresso, salone doppio, cucina abitabile, due ampie camere matrimoniali, cameretta, due bagni finestrati, comodo rispostiglio e due terrazzi (il primo con accesso dalla cucina, ed il secondo con accesso dal salone e da una camera da letto). Doppia esposizione est-ovest che rende casa molto luminosa. Riscaldamento autonomo. Prezzo richiesto € 270.000. Spese condominiali € 169 mensili comprensive di acqua. Classe Energetica "F", Indice di Prestazione Energetica 109,56 KWh/m2 anno. Per informazioni o per richiedere una visita, potete contattarci ai numeri: 379 1219012 / 06 57289195

LEGGI TUTTO

CONDIVIDI SUI SOCIAL

DATI PRINCIPALI

Riferimento
627371
Contratto
Vendita
Tipologia
Appartamento
Superficie
135 mq
Locali
4
Camere da letto
3
Cucina
Abitabile
Bagni
2
Piano
5 °
Totale piani
5
Box/Posto auto
Singolo

CARATTERISTICHE

Ascensore

COSTI

Prezzo
€ 270.000,00
Spese condominiali
€ 169,00 / mese

EFFICIENZA ENERGETICA

Stato
Da ristrutturare
Anno costruzione
1980
Riscaldamento
Autonomo
Climatizzazione
Si
Classe energetica
F
IPE
109,56 kWh/m²a

A+

A

B

C

D

E

109,56 kWh/m²a | Classe energetica F

F

G

MAPPA

ANNUNCI SIMILI

VENDITA 20
€ 295.000
Appartamento in Vendita a Roma (Roma)
  • Quadrilocale
  • 145 mq
  • 2 bagni
VENDITA 20
€ 289.000
Appartamento in Vendita a Roma (Roma)
  • Quadrilocale
  • 140 mq
  • 2 bagni
VENDITA 20
€ 330.000
Appartamento in Vendita a Roma (Roma)
  • Quadrilocale
  • 138 mq
  • 2 bagni
VENDITA 20
€ 149.000
Appartamento in Vendita a Roma (Roma)
  • Quadrilocale
  • 142 mq
  • 2 bagni
VENDITA 20
€ 289.000
Appartamento in Vendita a Roma (Roma)
  • Più di 5 locali
  • 140 mq
  • 2 bagni
VENDITA 20
€ 224.000
Appartamento in Vendita a Roma, Zona Spinaceto
  • Quadrilocale
  • 100 mq
  • 3 bagni
VENDITA 20
€ 299.000
Appartamento in Vendita a Roma, Zona Spinaceto
  • Quadrilocale
  • 115 mq
  • 2 bagni