San Giovanni - Largo Brindisi VENDITA

Largo Brindisi 18 - Roma, Zona San Giovanni
€ 650.000
  • Più di 5 locali
  • 128 mq
  • 1 bagno

Appartamento in Vendita a Roma

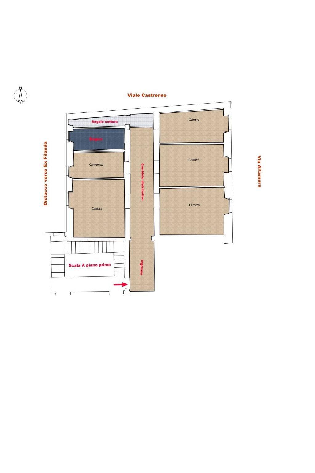
A due passi da Piazza San Giovanni, su Largo Brindisi appena ristrutturata e riqualificata da un ampliamento della zona pedonale, proponiamo la vendita di un signorile luminoso immobile posto al primo piano di un edificio d'epoca. Si accede all'interno della proprietà su un ingresso che porta attraversando una porta a vetri nell' ampia galleria/corridoio dove affacciano su entrambe i lati i 5 ambienti di diversa metratura, oltre il bagno con doccia e l'attuale cucinotto. L'appartamento, attualmente utilizzato dalla proprietà come studio professionale, è accatastato residenziale (abitazione). L'immobile si presenta in ottime condizioni di manutenzione interna. Le spese di condominio e riscaldamento stimate incidono € 187,00 mese.
L'appartamento affaccia in parte sull'ex-Filanda adiacente alle mura Aureliane e in parte su via Altamura; è stato approvato un progetto denominato "Ex Filanda" che vedrà il recupero di un area che permetterà il riutilizzo di un edificio fatiscente, restituendo alla città una struttura con vista sul futuro tra bioeconomia urbana e spazi verdi, nell’ottica di un progetto in grado di coniugare le esigenze ambientali con quelle sociali.
Le presenti informazioni e planimetrie sono meramente indicative e non costituiscono elementi contrattuali.

LEGGI TUTTO

CONDIVIDI SUI SOCIAL

DATI PRINCIPALI

Riferimento
630639
Contratto
Vendita
Tipologia
Appartamento
Superficie
128 mq
Locali
5
Camere da letto
3
Cucina
Cucinotto
Bagni
1
Piano
1 °
Totale piani
6

CARATTERISTICHE

Ascensore

COSTI

Prezzo
€ 650.000,00
Spese condominiali
€ 187,00 / mese

EFFICIENZA ENERGETICA

Stato
Abitabile
Anno costruzione
1930
Riscaldamento
Centralizzato
Climatizzazione
Si
Classe energetica
F
IPE
175,00 kWh/m²a

A+

A

B

C

D

E

175,00 kWh/m²a | Classe energetica F

F

G

MAPPA

ANNUNCI SIMILI

VENDITA 20
€ 745.000
Appartamento in Vendita a Roma, Zona San Giovanni
  • Più di 5 locali
  • 148 mq
  • 2 bagni
VENDITA 9
€ 840.000
Appartamento in Vendita a Roma, Zona Esquilino
  • Più di 5 locali
  • 181 mq
  • 2 bagni
VENDITA 13
€ 780.000
Appartamento in Vendita a Roma, Zona Re di Roma
  • Più di 5 locali
  • 115 mq
  • 4 bagni
VENDITA 20
€ 820.000
Appartamento in Vendita a Roma, Zona Re di Roma
  • Più di 5 locali
  • 173 mq
  • 3 bagni
VENDITA 20
€ 650.000
Appartamento in Vendita a Roma, Zona San Giovanni
  • Più di 5 locali
  • 145 mq
  • 2 bagni