CENTRO STORICO - APPARTAMENTO RISTRUTTURATO MOLTO LUMINOSO VENDITA

Via Matteo Maria Boiardo - Roma, Zona Esquilino
€ 750.000
  • Più di 5 locali
  • 131 mq
  • 2 bagni

Appartamento in Vendita a Roma

Via Matteo Boiardo – Elegante appartamento ristrutturato in stabile d’epoca.
A pochi passi dalla splendida Basilica di San Giovanni in Laterano, proponiamo in vendita un raffinato appartamento posto al terzo piano di un elegante palazzo d’inizio ’900 con ascensore.
L’immobile, finemente ristrutturato, si distingue per luminosità, silenziosità e affacci aperti, caratteristiche sempre più rare nel quartiere.
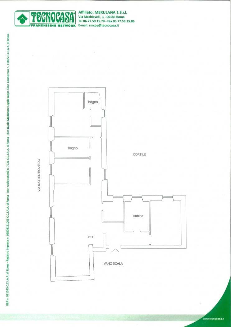
La distribuzione degli spazi è funzionale ed elegante: ingresso, ampio salone doppio con due finestre, cucina abitabile, tre camere da letto, di cui una con bagno en suite finestrato, secondo bagno anch'esso finestrato, locale lavanderia con finestra. Completano la proprietà due comodi soppalchi ad uso ripostiglio.
Le finiture valorizzano ulteriormente la proprietà: pavimentazione in parquet in tutti gli ambienti tranne nella cucina e nei bagni, riscaldamento autonomo, aria condizionata inverter in tutte le stanze e impianto di allarme.
Il piano medio-alto e la doppia esposizione, sulla via principale e sulla tranquilla corte condominiale, assicurano ambienti luminosi e riservati durante tutto l’arco della giornata.
La posizione è particolarmente strategica: a breve distanza dal Centro Storico, dalla Stazione Termini e dalle fermate metro San Giovanni (Linea A e C) Manzoni (Linea A) Colosseo (Linea B) e la nuova fermata Porta Metronia, con tutti i principali servizi, negozi e supermercati.
Per prestigio dello stabile, qualità della ristrutturazione e posizione centrale, questa proprietà rappresenta una soluzione ideale sia come abitazione principale sia come investimento di valore nel tempo.
Servizio fotografico dell’immobile in aggiornamento: le foto saranno disponibili a breve.

LEGGI TUTTO

CONDIVIDI SUI SOCIAL

DATI PRINCIPALI

Riferimento
635873
Contratto
Vendita
Tipologia
Appartamento
Superficie
131 mq
Locali
5
Camere da letto
3
Cucina
Abitabile
Bagni
2
Piano
3 °
Totale piani
5

CARATTERISTICHE

Ascensore

COSTI

Prezzo
€ 750.000,00
Spese condominiali
€ 104,00 / mese

EFFICIENZA ENERGETICA

Stato
Ristrutturato
Anno costruzione
1900
Riscaldamento
Autonomo
Climatizzazione
Si
Classe energetica
G
IPE
175,00 kWh/m²a

A+

A

B

C

D

E

F

175,00 kWh/m²a | Classe energetica G

G

MAPPA

ANNUNCI SIMILI

VENDITA 11
€ 452.250
Appartamento in Vendita a Roma, Zona Esquilino
  • Più di 5 locali
  • 140 mq
  • 1 bagno
VENDITA 20
€ 745.000
Appartamento in Vendita a Roma, Zona San Giovanni
  • Più di 5 locali
  • 148 mq
  • 2 bagni
VENDITA 9
€ 840.000
Appartamento in Vendita a Roma, Zona Esquilino
  • Più di 5 locali
  • 181 mq
  • 2 bagni
VENDITA 20
€ 950.000
Appartamento in Vendita a Roma, Zona Esquilino
  • Più di 5 locali
  • 200 mq
  • 2 bagni