Quadrilocale, Via Magnagrecia, San Giovanni, Roma VENDITA

Via Magnagrecia - Roma, Zona San Giovanni
€ 750.000
  • Quadrilocale
  • 118 mq
  • 1 bagno

Appartamento in Vendita a Roma

Un panorama che lascia senza fiato, una location iconica e spazi ampi pensati per vivere (o ospitare) Roma in tutta la sua bellezza.

POSIZIONE CENTRALE
OTTIMO INVESTIMENTO
RIFINITO

All’ottavo piano di un elegante stabile con ascensore, proponiamo un prestigioso appartamento che domina il quartiere, regalando una vista unica e spettacolare sulla Basilica di San Giovanni in Laterano.
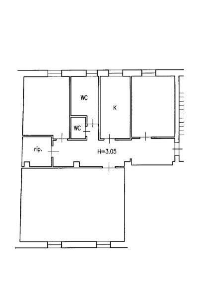
Internamente la residenza si distingue per charme e funzionalità: un ampio salone doppio ideale per momenti di rappresentanza, due camere da letto luminose, una cucina abitabile, bagno finestrato, lavanderia, ripostiglio e un raffinato disimpegno arricchito da boiserie in legno, che dona eleganza e carattere all’intera casa.
La combinazione tra posizione privilegiata, piano alto panoramico e spazi versatili rende questa proprietà perfetta sia come abitazione esclusiva per chi cerca comfort e prestigio, sia come investimento di successo nel settore ricettivo, ideale per attività di B&B o casa vacanze di charme.
Un appartamento che non è solo una casa, ma una vera esperienza di vita nel cuore di Roma.

LEGGI TUTTO

CONDIVIDI SUI SOCIAL

DATI PRINCIPALI

Riferimento
638674
Contratto
Vendita
Tipologia
Appartamento
Superficie
118 mq
Locali
4
Camere da letto
2
Cucina
Abitabile
Bagni
1
Piano
Più di 7 piani
Totale piani
9

CARATTERISTICHE

Ascensore

COSTI

Prezzo
€ 750.000,00
Spese condominiali
€ 95,00 / mese

EFFICIENZA ENERGETICA

Stato
Abitabile
Anno costruzione
1960
Riscaldamento
Centralizzato
Classe energetica
G
IPE
175,00 kWh/m²a

A+

A

B

C

D

E

F

175,00 kWh/m²a | Classe energetica G

G

MAPPA

ANNUNCI SIMILI

VENDITA 20
€ 550.000
Appartamento in Vendita a Roma, Zona San Giovanni
  • Quadrilocale
  • 133 mq
  • 1 bagno
VENDITA 20
€ 650.000
Appartamento in Vendita a Roma, Zona San Giovanni
  • Più di 5 locali
  • 128 mq
  • 1 bagno
VENDITA 20
€ 510.000
Appartamento in Vendita a Roma, Zona Re di Roma
  • Quadrilocale
  • 153 mq
  • 1 bagno