€ 145.000
  • Quadrilocale
  • 115 mq
  • 2 bagni

Appartamento in Vendita a Fonte Nuova

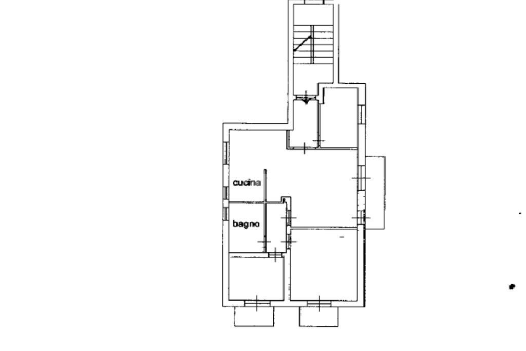
Situato su una delle vie più ricercate e residenziali del quartiere di Tor Lupara, esattamente su via Nomentana, oggi la vostra agenzia di fiducia vi propone la vendita di un ampio trilocale posto al primo piano di una palazzina in cortina.
L’appartamento, attualmente utilizzato come ufficio ma regolarmente accatastato come abitazione, è di circa 115 mq ed è così composto:
-Ingresso, cucina abitabile con tinello, soggiorno con canna fumaria e predisposto per l’installazione di un camino, disimpegno con armadi a muro, camera matrimoniale con bagno finestrato e doccia, una camera, una cameretta, un secondo bagno finestrato con vasca e tre balconi.
L’immobile è stato parzialmente ristrutturato attraverso la sostituzione degli infissi e dell’impianto elettrico.
Possibilità di acquisto a parte di una cantina.
Grazie alla metratura interna ed alle dovute modifiche, è possibile ricavare la quarta camera da letto.
Sei curioso di scoprire se è la casa che stavi cercando?
Non esitare a contattarci, chiamaci per fissare il tuo appuntamento allo 06.90.63922 oppure allo 392.9123310, siamo disponibili anche su WhatsApp, oppure inviaci una email.
Un consulente esperto della zona ti accompagnerà a visionare questa soluzione.
Ci troviamo in via Nomentana 624, Tor Lupara.

LEGGI TUTTO

CONDIVIDI SUI SOCIAL

DATI PRINCIPALI

Riferimento
634018
Contratto
Vendita
Tipologia
Appartamento
Superficie
115 mq
Locali
4
Camere da letto
3
Cucina
Abitabile
Bagni
2
Piano
1 °
Totale piani
2

CARATTERISTICHE

Ascensore

COSTI

Prezzo
€ 145.000,00
Spese condominiali
€ 17,00 / mese

EFFICIENZA ENERGETICA

Stato
Da ristrutturare
Anno costruzione
1980
Riscaldamento
Autonomo
Climatizzazione
Si
Classe energetica
G
IPE
175,00 kWh/m²a

A+

A

B

C

D

E

F

175,00 kWh/m²a | Classe energetica G

G

MAPPA

ANNUNCI SIMILI

VENDITA 20
€ 219.000
Appartamento in Vendita a Fonte Nuova (Roma)
  • Più di 5 locali
  • 120 mq
  • 1 bagno
VENDITA 20
€ 179.000
Appartamento in Vendita a Fonte Nuova (Roma)
  • Quadrilocale
  • 103 mq
  • 2 bagni
VENDITA 20
€ 205.000
Appartamento in Vendita a Fonte Nuova (Roma)
  • Quadrilocale
  • 200 mq
  • 2 bagni
VENDITA 20
€ 269.000
Appartamento in Vendita a Fonte Nuova (Roma)
  • Quadrilocale
  • 173 mq
  • 2 bagni
VENDITA 20
€ 143.000
Appartamento in Vendita a Fonte Nuova (Roma)
  • Quadrilocale
  • 120 mq
  • 1 bagno
VENDITA 20
€ 165.000
Appartamento in Vendita a Fonte Nuova (Roma)
  • Quadrilocale
  • 90 mq
  • 1 bagno
VENDITA 20
€ 225.000
Appartamento in Vendita a Fonte Nuova (Roma)
  • Quadrilocale
  • 116 mq
  • 2 bagni
VENDITA 6
€ 290.000
Appartamento in Vendita a Fonte Nuova (Roma)
  • Quadrilocale
  • 95 mq
  • 2 bagni
VENDITA 20
€ 145.000
Appartamento in Vendita a Fonte Nuova (Roma)
  • Quadrilocale
  • 120 mq
  • 1 bagno