Fonte Nuova - 5 locali - € 185.000 - T501 VENDITA

Via Giuseppe Parini, 38 - Fonte Nuova (Roma)
€ 185.000
  • Più di 5 locali
  • 160 mq
  • 2 bagni

Appartamento in Vendita a Fonte Nuova

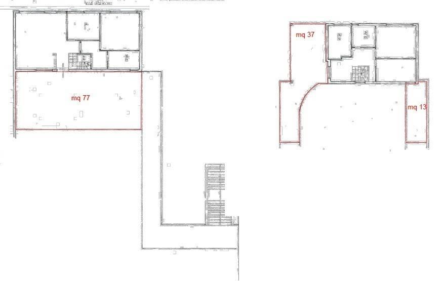
FONTE NUOVA - Tor Lupara. Centralissimo attico e superattico di 160 mq. con terrazzi per un totale di circa 130 mq. Situato al 2° e 3° piano, è composto da 1° livello da salone con camino, cucina abitabile, camera matrimoniale, bagno, ripostiglio e terrazzo. Al 2° livello da disimpegno, camera matrimoniale, 2 camerette con rispettivi affacci su terrazzi, bagno. Completa la proprietà un posto auto scoperto. Da ristrutturare. Il palazzo non è servito da ascensore. Se fino ad oggi acquistare casa ha significato vagare da un'agenzia all'altra, con la FRIMM di Fonte Nuova puoi scegliere tra migliaia di immobili in qualsiasi zona!

LEGGI TUTTO

CONDIVIDI SUI SOCIAL

DATI PRINCIPALI

Riferimento
636083
Contratto
Vendita
Tipologia
Appartamento
Superficie
160 mq
Locali
5
Camere da letto
4
Cucina
Abitabile
Bagni
2
Piano
2 °
Totale piani
3
Box/Posto auto
Singolo

CARATTERISTICHE

Ascensore

COSTI

Prezzo
€ 185.000,00
Spese condominiali
€ 50,00 / mese

EFFICIENZA ENERGETICA

Stato
Da ristrutturare
Anno costruzione
1990
Riscaldamento
Autonomo
Classe energetica
G
IPE
3,51 kWh/m²a

A+

A

B

C

D

E

F

3,51 kWh/m²a | Classe energetica G

G

MAPPA

ANNUNCI SIMILI

VENDITA 20
€ 219.000
Appartamento in Vendita a Fonte Nuova (Roma)
  • Più di 5 locali
  • 120 mq
  • 1 bagno
VENDITA 11
€ 96.825
Appartamento in Vendita a Mentana (Roma)
  • Più di 5 locali
  • 120 mq
  • 2 bagni
VENDITA 12
€ 56.475
Appartamento in Vendita a Mentana (Roma)
  • Più di 5 locali
  • 122 mq
  • 1 bagno