Appartamento in vendita a Mentana VENDITA

via Nomentana 60 - Mentana (Roma)
€ 279.000
  • Più di 5 locali
  • 167 mq
  • 2 bagni

Appartamento in Vendita a Mentana

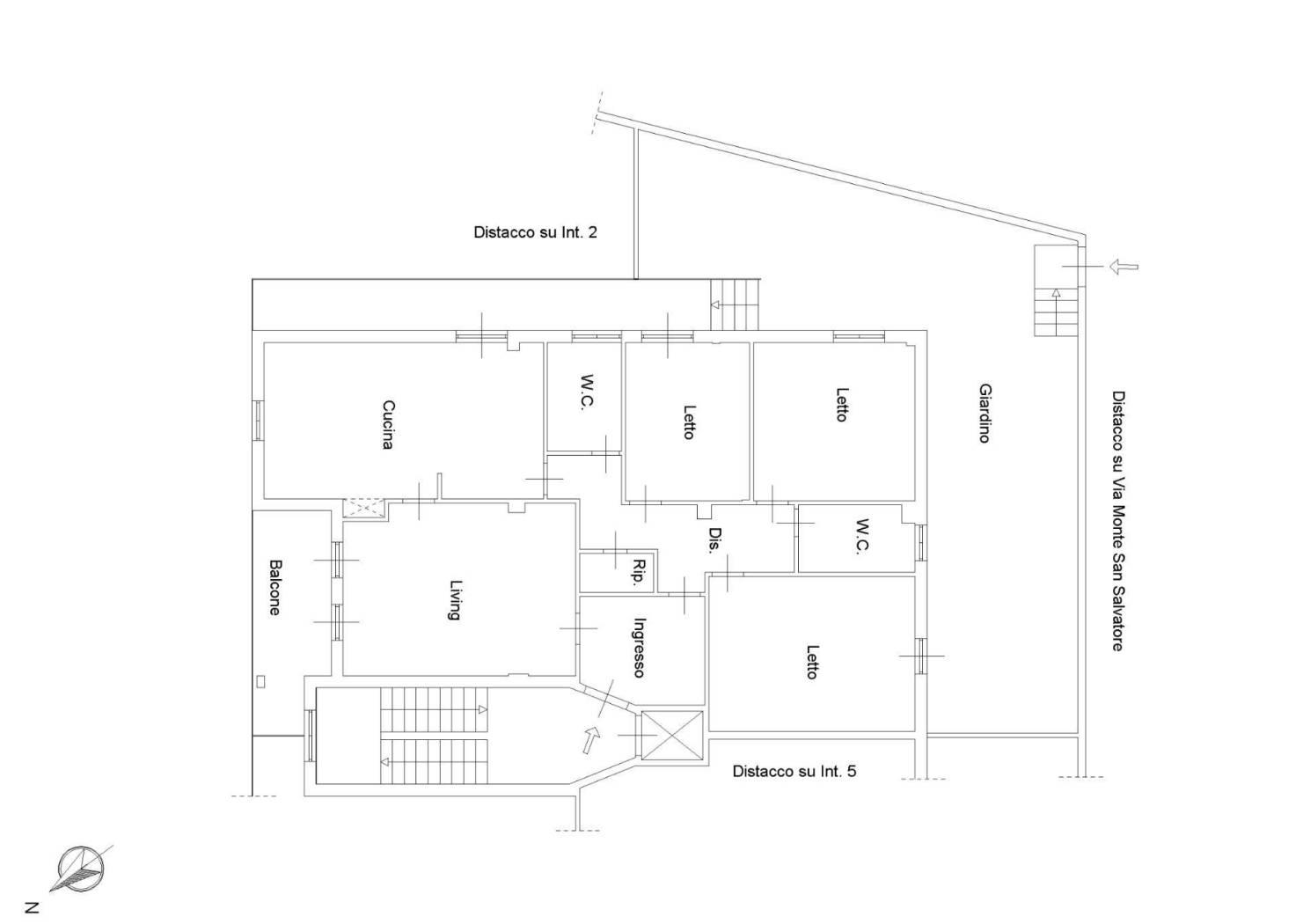
Mentana - Via Nomentana 60, proponiamo in vendita un appartamento di 167 mq su unico livello con corte esterna e due balconi.
L'immobile è composto da un comodo ingresso, un ampio salone di rappresentanza, una cucina abitabile di 30 mq con camino, un corridoio con armadio a muro, tre camere da letto matrimoniali, due bagni entrambi con finestra, un ripostiglio, due balconi, e una corte esterna pavimentata. L'ingresso principale è da via Nomentana e un secondo ingresso indipendente da via Monte San Salvatore. La residenza è stata completamente ristrutturata, dispone di impianto di climatizzazione e allarme, di grate e zanzariere su tutte le finestre. Lo stabile si trova all'interno di un comprensorio con parco privato in contesto signorile, con la possibilità di parcheggiare più di un auto nell'area condominiale chiusa da cancello. La casa è ideale per uno o più nuclei familiari in quanto si presta anche ad una divisione interna in due unità, ognuna con entrata indipendente. APE "F"

LEGGI TUTTO

CONDIVIDI SUI SOCIAL

DATI PRINCIPALI

Riferimento
640829
Contratto
Vendita
Tipologia
Appartamento
Superficie
167 mq
Locali
5
Camere da letto
3
Cucina
Abitabile
Bagni
2
Piano
Piano terra
Totale piani
4
Box/Posto auto
Singolo

CARATTERISTICHE

Ascensore

COSTI

Prezzo
€ 279.000,00
Spese condominiali
€ 95,00 / mese

EFFICIENZA ENERGETICA

Stato
Ristrutturato
Anno costruzione
1972
Riscaldamento
Autonomo
Climatizzazione
Si
Classe energetica
F
IPE
145,00 kWh/m²a

A+

A

B

C

D

E

145,00 kWh/m²a | Classe energetica F

F

G

MAPPA

ANNUNCI SIMILI

VENDITA 11
€ 96.825
Appartamento in Vendita a Mentana (Roma)
  • Più di 5 locali
  • 120 mq
  • 2 bagni
VENDITA 12
€ 56.475
Appartamento in Vendita a Mentana (Roma)
  • Più di 5 locali
  • 122 mq
  • 1 bagno
VENDITA 20
€ 179.000
Appartamento in Vendita a Fonte Nuova (Roma)
  • Più di 5 locali
  • 117 mq
  • 2 bagni