€ 225.000
  • Quadrilocale
  • 121 mq

Appartamento in Vendita a Albano Laziale

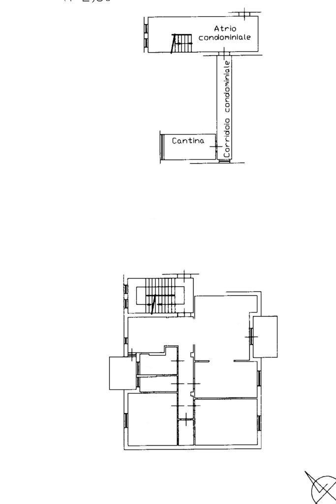
Nel cuore di Pavona, proponiamo in vendita un appartamento completamente ristrutturato nel 2021, al secondo piano di una palazzina di 3 piani. L'immobile è composto da ampio soggiorno con cucina a vista abitabile, entrambi con accesso a due balconi, tre camere matrimoniali, due bagni finestrati con doccia e una dispensa. L'appartamento è dotato di infissi nuovi, zanzariere e serrande automatizzate.
Ottima posizione, a poche passi dalla stazione di Pavona e ben servito da negozi, scuole e trasporti pubblici, in una zona centrale e ben collegata. Vantaggi esclusivi . Ampia metratura e completamente ristrutturato .Posizione centrale a Pavona, ben servita e collegata
Vieni in ufficio (caffè offerto!) e facciamo una chiacchierata gratuita per capire se questa è la casa giusta per te. Niente perdite di tempo, solo soluzioni concrete! Se ti sembra quella dei tuoi sogni, organizziamo subito il sopralluogo. Se non è quella giusta, non ti lasciamo a mani vuote: nel nostro portfolio di case ci sono altre opzioni imperdibili.Hai dubbi sui mutui? Nessun problema! Ti offriamo una consulenza gratuita e facciamo tutto noi (basta solo venire!). Partiamo sempre dal nostro ufficio, dove ti spieghiamo tutto: moduli, privacy, antiriciclaggio in modo semplice e veloce, perché vogliamo che tu trovi la tua casa senza stress.E se questa non è perfetta? Ci mettiamo il casco da esploratori e cerchiamo la casa giusta per te, porta a porta, campanello a campanello. Non ci fermiamo fino a trovarla!

LEGGI TUTTO

CONDIVIDI SUI SOCIAL

DATI PRINCIPALI

Riferimento
633666
Contratto
Vendita
Tipologia
Appartamento
Superficie
121 mq
Locali
4
Camere da letto
3
Cucina
Angolo cottura
Piano
2 °
Totale piani
3

CARATTERISTICHE

Ascensore

COSTI

Prezzo
€ 225.000,00
Spese condominiali
€ 4,00 / mese

EFFICIENZA ENERGETICA

Stato
Abitabile
Anno costruzione
1970
Riscaldamento
Autonomo
Climatizzazione
Si
Classe energetica
G
IPE
180,00 kWh/m²a

A+

A

B

C

D

E

F

180,00 kWh/m²a | Classe energetica G

G

MAPPA

ANNUNCI SIMILI

VENDITA 20
€ 179.000
Appartamento in Vendita a Albano Laziale (Roma)
  • Quadrilocale
  • 90 mq
  • 2 bagni
VENDITA 20
€ 139.000
Appartamento in Vendita a Albano Laziale (Roma)
  • Più di 5 locali
  • 110 mq
  • 1 bagno
VENDITA 20
€ 265.000
Appartamento in Vendita a Albano Laziale (Roma)
  • Quadrilocale
  • 110 mq
  • 2 bagni
VENDITA 20
€ 430.000
Appartamento in Vendita a Albano Laziale (Roma)
  • Più di 5 locali
  • 176 mq
  • 3 bagni