APPARAMENTO INGRESSO INDIPENDENTE CON GIARDINO E POSTO AUTO VENDITA

Via del Cancello 8h - Albano Laziale (Roma)
€ 199.000
  • Quadrilocale
  • 110 mq
  • 2 bagni

Appartamento in Vendita a Albano Laziale

Vi proponiamo la vendita di una appartamento con ingresso indipendente e giardino privato situato in una delle zone più ricercate di Albano!

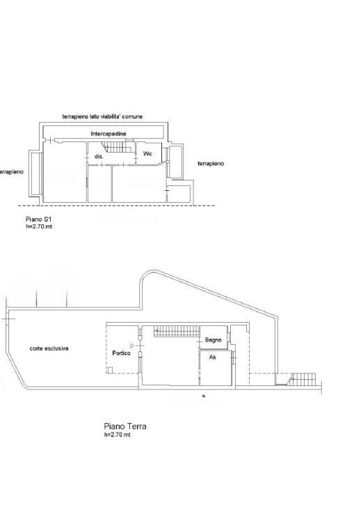
Questo splendido immobile ha il suo ingresso indipendente che si apre direttamente sul giardino privato dove poter vivere in tutte le calde stagioni dell'anno, dal giardino accediamo direttamente alla comoda e luminosa zona giorno che si divide in zona relax - pranzo e cucina a vista dalla quale possiamo passare anche alla porzione di giardino sul retro, a servizio della zona giorno troviamo il bagno finestrato con doccia

Scendendo tramite una comodissima scala in muratura possiamo accedere ad un ampio disimpegno che ci accompagna alla prima camera matrimoniale con accesso diretto ad una zona utilizzabile come cabina armadio, procedendo possiamo entrare nell'altra camera matrimoniale anch'essa dotata di ampia cabina armadio e, a conclusione di questa zona, un'altra comoda stanza utilizzabile come studio o come cameretta e il bagno finestrato con vasca

La sua tripla esposizione permette di avere il giardino di proprietà che la circonda su 3 lati, nella porzione frontale è dotato di un portico con pavimentazione, lateralmente un barbecue in muratura ci permette di cucinare direttamente all'esterno e nella porzione sul retro troviamo la collocazione per la caldaia e la lavatrice così da non avere un ingombro all'interno dell'abitazione

Posizionata all'interno di un piccolo comprensorio immerso nel verde chiuso da cancello automatico dove troviamo il posto auto di proprietà

L'abitazione si presenta in ottime condizioni e questa la rende ottimale per chi ha bisogno di abitarla fin da subito!

Per ulteriori informazioni o per fissare il tuo appuntamento contatta il n. 06/9348045. Metacasa Servizi Immobiliari opera, per i propri clienti i migliori immobili su tutta la zona dei Castelli Romani e Roma effettuando una ricerca specifica secondo i criteri favoriti del cliente stesso seguendolo nelle varie fasi di vendita, ricerca, acquisto.
La nostra agenzia mette a disposizione dei propri clienti un servizio di consulenza finanziaria per aiutarli a trovare la soluzione migliore nell' ambito bancario dei mutui. La nostra agenzia è in grado di proporre soluzioni "su misura" per ogni realtà individuale, imprenditoriale e professionale, affiancando le imprese che affrontano il "mercato globale" con un'ampia gamma di servizi, mirata a garantire lo sviluppo del loro business.
L'agenzia Metacasa Servizi Immobiliari è aperta la mattina dal lunedì al venerdì dalle 9:00 alle 13:00, il pomeriggio dalle 15:30 alle 19:00.

LEGGI TUTTO

CONDIVIDI SUI SOCIAL

DATI PRINCIPALI

Riferimento
639965
Contratto
Vendita
Tipologia
Appartamento
Superficie
110 mq
Locali
4
Camere da letto
2
Cucina
A vista
Bagni
2
Piano
Piano terra
Totale piani
2
Box/Posto auto
Singolo

CARATTERISTICHE

Ascensore

COSTI

Prezzo
€ 199.000,00
Spese condominiali
€ 70,00 / mese

EFFICIENZA ENERGETICA

Stato
Ristrutturato
Anno costruzione
2008
Riscaldamento
Autonomo
Climatizzazione
Si
Classe energetica
F
IPE
351,00 kWh/m²a

A+

A

B

C

D

E

351,00 kWh/m²a | Classe energetica F

F

G

MAPPA

ANNUNCI SIMILI

VENDITA 20
€ 265.000
Appartamento in Vendita a Albano Laziale (Roma)
  • Quadrilocale
  • 110 mq
  • 2 bagni
VENDITA 20
€ 430.000
Appartamento in Vendita a Albano Laziale (Roma)
  • Più di 5 locali
  • 176 mq
  • 3 bagni
VENDITA 18
€ 138.000
Appartamento in Vendita a Albano Laziale (Roma)
  • Quadrilocale
  • 70 mq
  • 2 bagni