Albano Laziale centro storico salone 3 camere VENDITA

Corso Giacomo Matteotti, 91 - Albano Laziale (Roma)
€ 178.000
  • Più di 5 locali
  • 110 mq
  • 1 bagno

Appartamento in Vendita a Albano Laziale

Albano laziale in pieno centro storico sul Corso principale del Paese quindi con tutti i servizi nelle immediate vicinanze. L'Immobiliare Futura propone la vendita di un luminoso appartamento posto al piano primo di un palazzo di complessivi 3 piani con un ampio androne di entrata e un cortile interno. Il palazzo risalente agli anni 50, quindi dotato di mura perimetrali maggiorate rispetto le recenti costruzioni con conseguenti vantaggi per il risparmio energetico. Il farbricato è in fase di ristrutturazione e i costi della ristrutturazione esterna sono stati completamente saldati dalla proprietà.
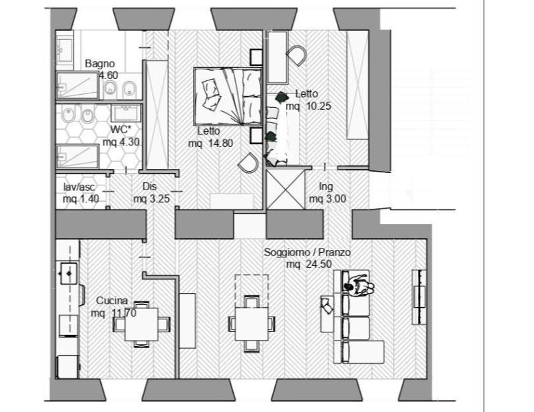
L'alloggio risulta essere stato parzialmente ristrutturato ed è composto da un ampio ingresso, corridoio, salone, due camere matrimoniali, una cameretta, grande cucina, bagno finestrato con grande antibagno/ripostiglio. La ristrutturazione interna riguarda gli infissi che sono in PVC con doppi vetri, il bagno e impianto idraulico della cucina. l'immobile non dispone di impianto di riscaldamento pur essendo dotato di gas metano. Le spese condominiali ammontano a circa €.50 al mese.
Il prezzo richiesto è di €. 178.000,00. Per ulteriori informazioni e per fissare un appuntamento potete contattarci direttamente al telefono fisso 0688791230 oppure al cell.3381926435 o potete scrivere tramite mail a immobiliarefutura19@gmail.com

LEGGI TUTTO

CONDIVIDI SUI SOCIAL

DATI PRINCIPALI

Riferimento
628395
Contratto
Vendita
Tipologia
Appartamento
Superficie
110 mq
Locali
5
Camere da letto
4
Cucina
Abitabile
Bagni
1
Piano
1 °
Totale piani
3

CARATTERISTICHE

Ascensore

COSTI

Prezzo
€ 178.000,00
Spese condominiali
€ 50,00 / mese

EFFICIENZA ENERGETICA

Stato
Abitabile
Anno costruzione
1950
Classe energetica
F
IPE
246,02 kWh/m²a

A+

A

B

C

D

E

246,02 kWh/m²a | Classe energetica F

F

G

MAPPA

ANNUNCI SIMILI

VENDITA 20
€ 229.000
Appartamento in Vendita a Albano Laziale (Roma)
  • Più di 5 locali
  • 142 mq
  • 1 bagno
VENDITA 20
€ 430.000
Appartamento in Vendita a Albano Laziale (Roma)
  • Più di 5 locali
  • 176 mq
  • 3 bagni
VENDITA 11
Trattativa Riservata
Appartamento in Vendita a Albano Laziale (Roma)
  • Più di 5 locali
  • 92 mq
  • 2 bagni
VENDITA 20
€ 139.000
Appartamento in Vendita a Albano Laziale (Roma)
  • Più di 5 locali
  • 110 mq
  • 1 bagno
VENDITA 20
€ 259.000
Appartamento in Vendita a Albano Laziale (Roma)
  • Più di 5 locali
  • 150 mq
  • 2 bagni
VENDITA 20
€ 245.000
Appartamento in Vendita a Ariccia (Roma)
  • Più di 5 locali
  • 130 mq
  • 3 bagni