Albano Laziale in Palazzo d'epoca 100mq con terrazzo VENDITA

Via Aurelio Saffi, 86 - Albano Laziale (Roma)
€ 190.000
  • Più di 5 locali
  • 110 mq
  • 2 bagni

Appartamento in Vendita a Albano Laziale

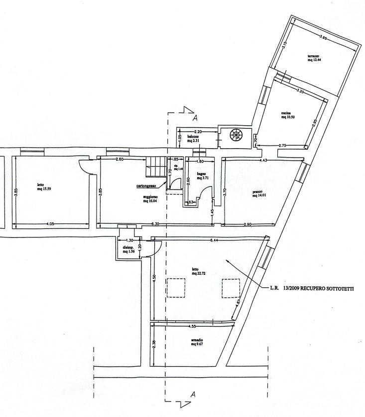
Albano Laziale Centralissimo, in Prestigioso Palazzo del 1700 in un contesto tranquillo con corte interna, Panoramicissimo vista mare . L'Immobiliare Futura propone la vendita di un attico posto al piano quarto senza ascensore.
L'appartamento è stato ristrutturato nei bagni, gli infissi, impiantistica e pavimento della cucina, nell'impianto di riscaldamento e comunque necessita di lavori interni ed è possibile dividere a proprio piacimento. Internamente è così composto: ampio ingresso/soggiorno, grande tinello, cucina abitabile dalla quale si accede al terrazzo panoramicissimo, due grandi camere di cui una con cabina armadio, una con balcone adibito a servizi, due bagni. L'impianto di riscaldamento è autonomo a metano. Lo stato d'uso dell'appartamento è discreto, necessita di lavori. Gli infissi in alluminio doppi vetri.
Il prezzo richiesto è di €. 190 000,00 Trattabili. Per ulteriori informazioni e per fissare un appuntamento potete contattarci direttamente al telefono fisso 0688791230 oppure al cell.3381926435 o potete scrivere tramite mail a immobiliarefutura19@gmail.com

LEGGI TUTTO

CONDIVIDI SUI SOCIAL

DATI PRINCIPALI

Riferimento
628394
Contratto
Vendita
Tipologia
Appartamento
Superficie
110 mq
Locali
5
Camere da letto
4
Cucina
Abitabile
Bagni
2
Piano
4 °
Totale piani
4

CARATTERISTICHE

Ascensore

COSTI

Prezzo
€ 190.000,00

EFFICIENZA ENERGETICA

Stato
Abitabile
Anno costruzione
1730
Riscaldamento
Autonomo
Classe energetica
G
IPE
175,00 kWh/m²a

A+

A

B

C

D

E

F

175,00 kWh/m²a | Classe energetica G

G

MAPPA

ANNUNCI SIMILI

VENDITA 20
€ 229.000
Appartamento in Vendita a Albano Laziale (Roma)
  • Più di 5 locali
  • 142 mq
  • 1 bagno
VENDITA 20
€ 430.000
Appartamento in Vendita a Albano Laziale (Roma)
  • Più di 5 locali
  • 176 mq
  • 3 bagni
VENDITA 11
Trattativa Riservata
Appartamento in Vendita a Albano Laziale (Roma)
  • Più di 5 locali
  • 92 mq
  • 2 bagni
VENDITA 20
€ 139.000
Appartamento in Vendita a Albano Laziale (Roma)
  • Più di 5 locali
  • 110 mq
  • 1 bagno
VENDITA 20
€ 259.000
Appartamento in Vendita a Albano Laziale (Roma)
  • Più di 5 locali
  • 150 mq
  • 2 bagni
VENDITA 20
€ 245.000
Appartamento in Vendita a Ariccia (Roma)
  • Più di 5 locali
  • 130 mq
  • 3 bagni