QUADRILOCALE IN VENDITA VIA DEL PODISMO, FARNESINA VENDITA

Via del Podismo 18 - Roma (Roma)
€ 790.000
  • Quadrilocale
  • 150 mq
  • 2 bagni

Appartamento in Vendita a Roma

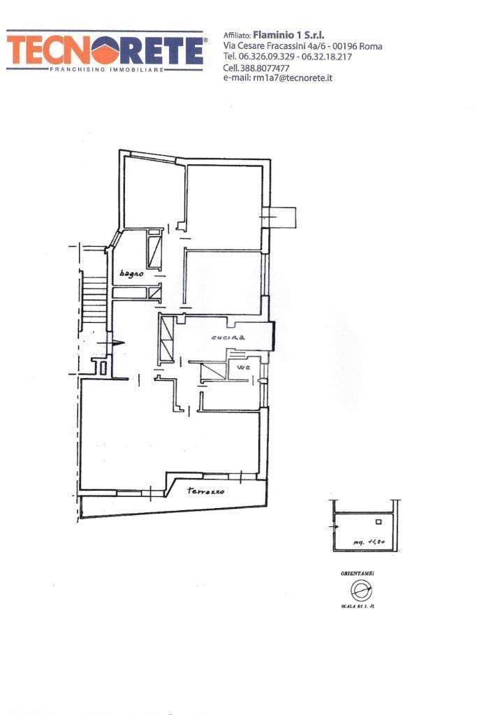
VIA DEL PODISMO - In una delle vie più apprezzate della Farnesina , caratteristica delle aree più esclusive di Roma Nord. Proponiamo in vendita un appartamento di circa 150 mq, ubicato al secondo piano di uno stabile recentemente ristrutturato, dotato di ascensore.
L’immobile è composto da un ingresso che conduce al salone e ad una sala da pranzo, vero cuore dell’immobile. La cucina è separata dagli altri ambienti, funzionale e ben organizzata.
La zona notte comprende tre camere da letto ampie, una con accesso diretto ad un secondo balcone con affaccio esterno riservato, oltre a due bagni finestrati.
Completano la proprietà un ripostiglio, due soppalchi, quattro armadi a muro, due balconi e una cantina. L’immobile si presenta in ottimo stato, con spazi ben distribuiti, ambienti luminosi.

Possibilità di acquistare box auto di 29 metri ad euro 70.000€

Perché scegliere questo immobile:

-Due balconi con affacci riservati;
-Ottima distribuzione degli spazi interni;
-Ambienti luminosi e ben organizzati.

Per info o appuntamenti : 388.80.77.477

LEGGI TUTTO

CONDIVIDI SUI SOCIAL

DATI PRINCIPALI

Riferimento
639220
Contratto
Vendita
Tipologia
Appartamento
Superficie
150 mq
Locali
4
Camere da letto
3
Cucina
Abitabile
Bagni
2
Piano
2 °
Totale piani
6

CARATTERISTICHE

Ascensore

COSTI

Prezzo
€ 790.000,00

EFFICIENZA ENERGETICA

Stato
Abitabile
Anno costruzione
1960
Riscaldamento
Centralizzato
Climatizzazione
Si
Classe energetica
G
IPE
175,00 kWh/m²a

A+

A

B

C

D

E

F

175,00 kWh/m²a | Classe energetica G

G

MAPPA

ANNUNCI SIMILI

VENDITA 20
€ 895.000
Appartamento in Vendita a Roma (Roma)
  • Più di 5 locali
  • 245 mq
  • 3 bagni
VENDITA 20
€ 699.000
Appartamento in Vendita a Roma (Roma)
  • Più di 5 locali
  • 169 mq
  • 3 bagni
VENDITA 20
€ 890.000
Appartamento in Vendita a Roma (Roma)
  • Più di 5 locali
  • 258 mq
  • 4 bagni
VENDITA 11
€ 699.000
Appartamento in Vendita a Roma (Roma)
  • Più di 5 locali
  • 169 mq
  • 3 bagni
VENDITA 2
€ 975.000
Appartamento in Vendita a Roma (Roma)
  • Più di 5 locali
  • 251 mq
  • 3 bagni
VENDITA 14
€ 1.500.000
Appartamento in Vendita a Roma (Roma)
  • Più di 5 locali
  • 251 mq
  • 3 bagni
VENDITA 20
€ 1.050.000
Appartamento in Vendita a Roma (Roma)
  • Più di 5 locali
  • 230 mq
  • 3 bagni
VENDITA 20
€ 480.000
Appartamento in Vendita a Roma (Roma)
  • Più di 5 locali
  • 160 mq
  • 3 bagni