Quadrilocale in Vendita a Bracciano VENDITA

Via Guglielmo Oberdan - Bracciano (Roma)
€ 125.000
  • Trilocale
  • 80 mq
  • 1 bagno

Appartamento in Vendita a Bracciano

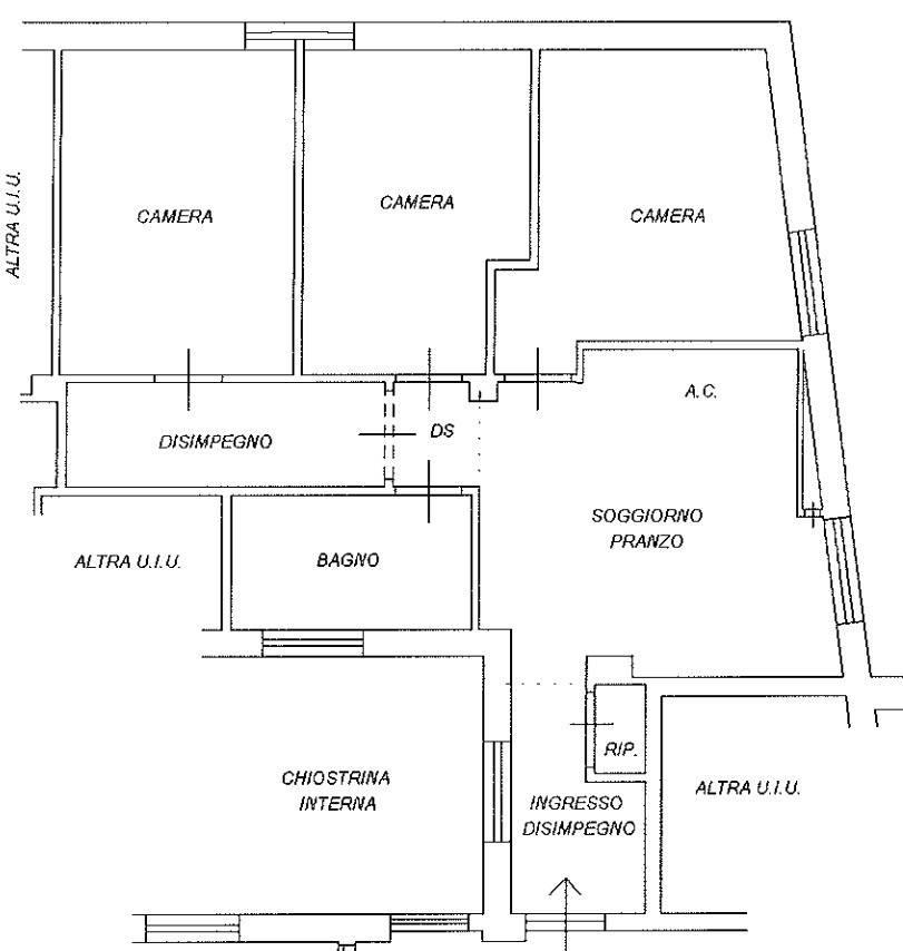
Tempocasa Bracciano propone in vendita nel cuore del centro di Bracciano, a due passi dal Castello e dai principali servizi, un' appartamento di 80 mq c.ca, situato al terzo piano di una palazzina dotata di ascensore.

Dettagli immobile:
Superficie: 80 mq c.ca
Piano: 3° con ascensore
Riscaldamento autonomo
Aria Condizionata

Distribuzione degli spazi:
L'appartamento è composto da Ingresso in disimpegno, ampia zona giorno, un bagno finestrato con vasca e tre camere da letto matrimoniali.

Posizione:
Situato in una zona centrale e ben servita, l'immobile dista solo pochi passi dal Castello di Bracciano e da tutti i principali servizi, come negozi, scuole e mezzi di trasporto. Una posizione comoda che unisce la tranquillità del centro storico alla vicinanza alle principali vie di comunicazione.

Vantaggi:
Ottima Esposizione
Ristrutturazione
Riscaldamento autonomo

Contattaci per maggiori informazioni e per prenotare una visita! Non perdere l'opportunità di vivere nel cuore di Bracciano con tutte le comodità a portata di mano.

Questa descrizione ha carattere puramente indicativo e non costituisce elemento contrattuale.

LEGGI TUTTO

CONDIVIDI SUI SOCIAL

DATI PRINCIPALI

Riferimento
636520
Contratto
Vendita
Tipologia
Appartamento
Superficie
80 mq
Locali
3
Camere da letto
3
Cucina
Angolo cottura
Bagni
1
Piano
3 °
Totale piani
4

CARATTERISTICHE

Ascensore

COSTI

Prezzo
€ 125.000,00
Spese condominiali
€ 30,00 / mese

EFFICIENZA ENERGETICA

Stato
Abitabile
Anno costruzione
1970
Climatizzazione
Si
Classe energetica
F
IPE
175,00 kWh/m²a

A+

A

B

C

D

E

175,00 kWh/m²a | Classe energetica F

F

G

MAPPA

ANNUNCI SIMILI

VENDITA 20
€ 189.000
Appartamento in Vendita a Bracciano (Roma)
  • Quadrilocale
  • 132 mq
  • 2 bagni
VENDITA 2
€ 169.000
Appartamento in Vendita a Bracciano (Roma)
  • Trilocale
  • 80 mq
  • 1 bagno
VENDITA 20
€ 195.000
Appartamento in Vendita a Bracciano (Roma)
  • Più di 5 locali
  • 150 mq
  • 2 bagni
VENDITA 20
€ 195.000
Appartamento in Vendita a Bracciano (Roma)
  • Più di 5 locali
  • 150 mq
  • 2 bagni
VENDITA 20
€ 500.000
Appartamento in Vendita a Bracciano (Roma)
  • Più di 5 locali
  • 160 mq
  • 3 bagni
VENDITA 9
€ 119.000
Appartamento in Vendita a Bracciano (Roma)
  • Trilocale
  • 80 mq
  • 2 bagni
VENDITA 20
€ 205.000
Appartamento in Vendita a Bracciano (Roma)
  • Più di 5 locali
  • 140 mq
  • 2 bagni