PRENESTINA/TOR SAPIENZA - TRILOCALE TERRAZZO E BOX AUTO VENDITA

Viale Franco Angeli - Roma (Roma)
€ 289.000
  • Trilocale
  • 100 mq
  • 2 bagni

Appartamento in Vendita a Roma

PER INFO E APPUNTAMENTI CONTATTARE IL N. 329.66.90.727 (ANCHE WHATSAPP)

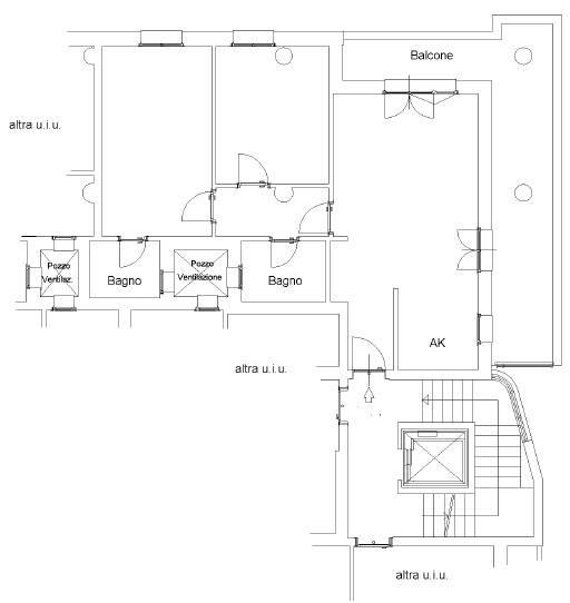
VIALE FRANCO ANGELI - In area di nuova edificazione, tra la via Prenestina-Togliatti e Tangenziale Est, all'interno di uno stabile di 5 piani servito da ascensore, proponiamo la vendita di un ampio appartamento trilocale con doppi servizi, terrazzo e box auto;
L'appartamento, di circa mq 100, si compone di soggiorno a vista con angolo cottura, corridoio, due camere da letto, doppi servizi, balcone, terrazzo e un comodo box auto di circa mq 30.
Internamente si presenta in eccellenti condizioni e dotato di:
- Porta blindata
- Infissi in doppio vetro/legno
- Porte nuove
- Climatizzato
- Parquet nei pavimenti della casa
Libero subito.
Si specifica che nella quota condominiale (€ 170 mese) è compreso il riscaldamento e raffrescamento.
Per ulteriori informazioni e/o appuntamenti T. 3296690727 (ANCHE WHATSAPP)

LEGGI TUTTO

CONDIVIDI SUI SOCIAL

DATI PRINCIPALI

Riferimento
640323
Contratto
Vendita
Tipologia
Appartamento
Superficie
100 mq
Locali
3
Camere da letto
2
Cucina
Angolo cottura
Bagni
2
Piano
1 °
Totale piani
5
Box/Posto auto
Doppio

CARATTERISTICHE

Ascensore

COSTI

Prezzo
€ 289.000,00
Spese condominiali
€ 170,00 / mese

EFFICIENZA ENERGETICA

Stato
Ristrutturato
Anno costruzione
2015
Riscaldamento
Autonomo
Climatizzazione
Si
Classe energetica
A1
IPE
351,00 kWh/m²a

A4

A3

A2

351,00 kWh/m²a | Classe energetica A1

A1

B

C

D

E

F

G

MAPPA

ANNUNCI SIMILI

VENDITA 20
€ 279.000
Appartamento in Vendita a Roma (Roma)
  • Quadrilocale
  • 110 mq
  • 2 bagni
VENDITA 20
€ 199.000
Appartamento in Vendita a Roma (Roma)
  • Quadrilocale
  • 97 mq
  • 3 bagni
VENDITA 17
€ 320.000
Appartamento in Vendita a Roma (Roma)
  • Quadrilocale
  • 135 mq
  • 2 bagni
VENDITA 20
€ 319.000
Appartamento in Vendita a Roma, Zona Centocelle
  • Quadrilocale
  • 136 mq
  • 2 bagni
VENDITA 20
€ 195.000
Appartamento in Vendita a Roma (Roma)
  • Trilocale
  • 96 mq
  • 1 bagno
VENDITA 20
€ 189.000
Appartamento in Vendita a Roma (Roma)
  • Trilocale
  • 97 mq
  • 2 bagni
VENDITA 17
€ 179.000
Appartamento in Vendita a Roma (Roma)
  • Trilocale
  • 88 mq
  • 2 bagni
VENDITA 20
€ 295.000
Appartamento in Vendita a Roma (Roma)
  • Trilocale
  • 75 mq
  • 1 bagno