Prati della Vittoria, Piazza Prati degli Strozzi VENDITA

Via Simone De Saint Bon - Roma (Roma)
€ 750.000
  • Trilocale
  • 107 mq
  • 2 bagni

Appartamento in Vendita a Roma

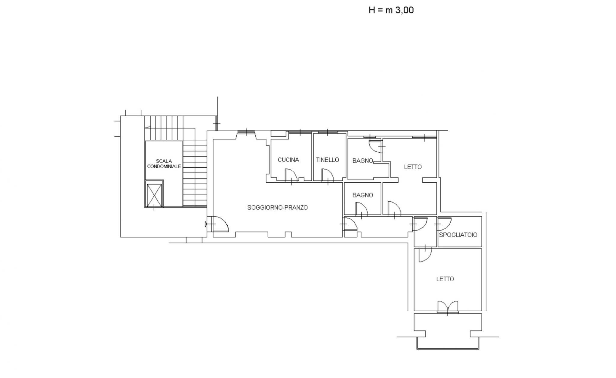
Nelle immediate vicinanze di Piazza degli Strozzi e più esattamente in Via Simone De Saint Bon, AEMME & Partners ha il piacere di proporre in esclusiva, la vendita di un elegante appartamento di mq. 105,00 posto al piano 7° ed ultimo di uno stabile d'epoca con ascensore.
La proprietà è così composta: soggiorno, cucina, due camere da letto, due servizi (di cui uno en suite), studio, cabina armadio e grazioso balcone vivibile con vista aperta verso la collina di Monte Mario. Al disopra del corridoio della zona notte, troviamo un comodissimo ed utile soppalco calpestabile.
L'immobile è stato ristrutturato totalmente nel 2011 con regolare procedura urbanistica, ed è rifinito con i seguenti materiali di pregio: pavimentazione in parquet di iroko, infissi in legno/PVC con doppio vetro camera, e persiane in alluminio. Il riscaldamento è autonomo con caldaia a gas anche per la produzione di acqua sanitaria, impianto di climatizzazione con split a pompa di calore Daikin in ogni ambiente.
Gli impianti elettrici sono del tipo sfilabile; è presente un impianto di luci di emergenza con inverter a batteria, ed un impianto di allarme.
Completa la proprietà una cantina di circa 7 mq.

RICHIESTA: € 750.000,00.
Per Info e visite: 0694806266 - info@aemmepartners.it - www.aemmepartners.it

** Le presenti informazioni e planimetrie sono meramente indicative e non costituiscono elementi contrattuali **

LEGGI TUTTO

CONDIVIDI SUI SOCIAL

DATI PRINCIPALI

Riferimento
628773
Contratto
Vendita
Tipologia
Appartamento
Superficie
107 mq
Locali
3
Camere da letto
2
Cucina
Abitabile
Bagni
2
Piano
7
Totale piani
7

CARATTERISTICHE

Ascensore

COSTI

Prezzo
€ 750.000,00
Spese condominiali
€ 100,00 / mese

EFFICIENZA ENERGETICA

Stato
Ristrutturato
Anno costruzione
1930
Riscaldamento
Autonomo
Climatizzazione
Si
Classe energetica
E
IPE
175,00 kWh/m²a

A+

A

B

C

D

175,00 kWh/m²a | Classe energetica E

E

F

G

MAPPA

ANNUNCI SIMILI

VENDITA 20
€ 415.000
Appartamento in Vendita a Roma (Roma)
  • Più di 5 locali
  • 166 mq
  • 3 bagni
VENDITA 20
€ 980.000
Appartamento in Vendita a Roma (Roma)
  • Più di 5 locali
  • 182 mq
  • 2 bagni
VENDITA 20
€ 850.000
Appartamento in Vendita a Roma (Roma)
  • Quadrilocale
  • 169 mq
  • 2 bagni
VENDITA 20
€ 600.000
Appartamento in Vendita a Roma (Roma)
  • Quadrilocale
  • 135 mq
  • 2 bagni
VENDITA 20
€ 500.000
Appartamento in Vendita a Roma (Roma)
  • Trilocale
  • 76 mq
  • 3 bagni
VENDITA 20
€ 565.000
Appartamento in Vendita a Roma (Roma)
  • Più di 5 locali
  • 97 mq
  • 2 bagni