€ 850.000
  • Più di 5 locali
  • 165 mq
  • 2 bagni

Appartamento in Vendita a Roma

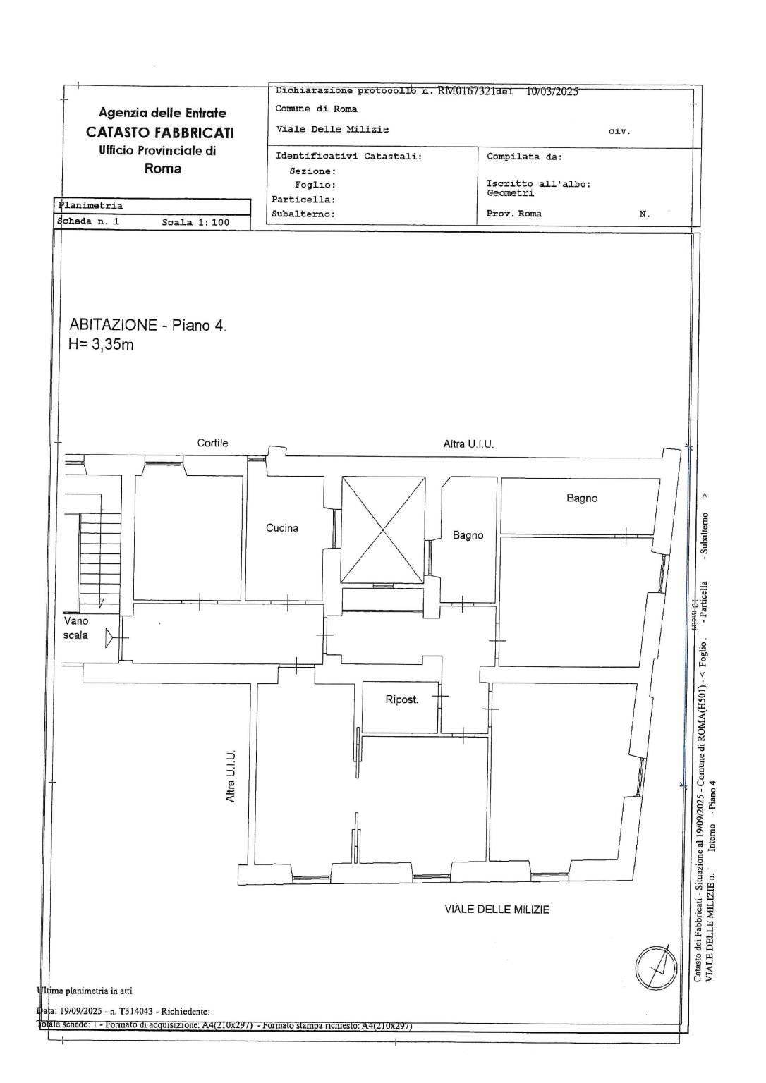
Nell'elegante e storico quartiere Prati, in Viale delle Milizie a pochi passi dalla metro linea "A" Ottaviano, proponiamo in vendita in un prestigioso palazzo d'epoca servito da ascensore, uno splendido e luminoso appartamento di 165 mq. posto al 4° piano con tripla esposizione. E' composto da ampio ingresso, soggiorno e sala pranzo comunicanti, 3 grandi camere matrimoniali di cui una in posizione angolare con doppia finestra, cucina abitabile, doppi servizi di cui uno en suite in una delle camere, ripostiglio e un vano tecnico finestrato. I soffitti sono alti 3,35 mt e l'impianto di riscaldamento è autonomo. L'immobile necessità di interventi di ristrutturazione. Interessante opportunità di acquisto, sia per uso investimento che come comoda abitazione personale.

LEGGI TUTTO

CONDIVIDI SUI SOCIAL

DATI PRINCIPALI

Riferimento
636111
Contratto
Vendita
Tipologia
Appartamento
Superficie
165 mq
Locali
5
Camere da letto
3
Cucina
Abitabile
Bagni
2
Piano
4 °
Totale piani
5

CARATTERISTICHE

Ascensore

COSTI

Prezzo
€ 850.000,00

EFFICIENZA ENERGETICA

Stato
Da ristrutturare
Anno costruzione
1900
Riscaldamento
Autonomo
Classe energetica
G
IPE
175,00 kWh/m²a

A+

A

B

C

D

E

F

175,00 kWh/m²a | Classe energetica G

G

MAPPA

ANNUNCI SIMILI

VENDITA 13
€ 619.000
Appartamento in Vendita a Roma, Zona Prati
  • Più di 5 locali
  • 142 mq
  • 1 bagno
VENDITA 20
€ 415.000
Appartamento in Vendita a Roma (Roma)
  • Più di 5 locali
  • 166 mq
  • 3 bagni
VENDITA 20
€ 565.000
Appartamento in Vendita a Roma (Roma)
  • Più di 5 locali
  • 97 mq
  • 2 bagni
VENDITA
€ 770.000
Appartamento in Vendita a Roma, Zona Prati
  • Più di 5 locali
  • 140 mq
  • 2 bagni
VENDITA 20
€ 995.000
Appartamento in Vendita a Roma (Roma)
  • Più di 5 locali
  • 220 mq
  • 3 bagni
VENDITA 20
€ 950.000
Appartamento in Vendita a Roma (Roma)
  • Più di 5 locali
  • 190 mq
  • 4 bagni
VENDITA 3
€ 799.000
Appartamento in Vendita a Roma, Zona Prati
  • Più di 5 locali
  • 180 mq
  • 2 bagni
VENDITA 20
€ 1.120.000
Appartamento in Vendita a Roma (Roma)
  • Più di 5 locali
  • 141 mq
  • 4 bagni