Portuense - 2 locali 348000 T215 VENDITA

Via Gaetano Astolfi, 16 - Roma, Zona Portuense
€ 348.000
  • Bilocale
  • 85 mq
  • 2 bagni

Appartamento in Vendita a Roma

IN TRATTATIVA:
Nel quartiere Portuense, adiacente Via di Vigna Pia, in zona riservata e silenziosa ma a pochi passi da tutti i servizi, precisamente in Via Gaetano Astolfi proponiamo la vendita di un luminoso appartamento, con affaccio panoramico, posto al 4 ed ultimo piano di una signorile palazzina in cortina, ben tenuta e dotata di ascensore.
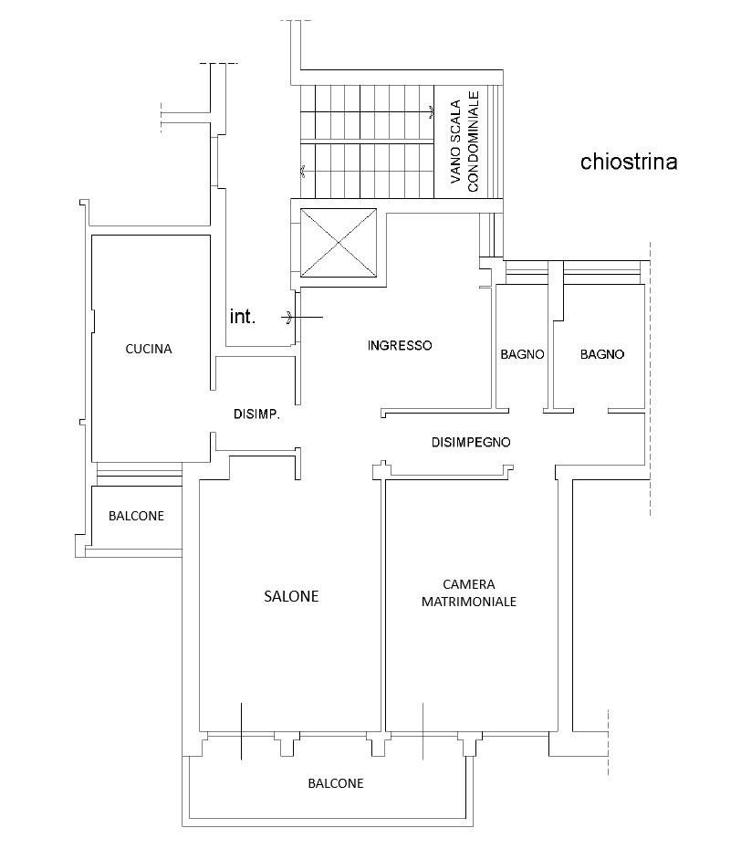
L'immobile, di circa 85 mq, è composto da un ampio ingresso provvisto di finestra, soggiorno, cucina abitabile servita da balcone, camera matrimoniale, 2 bagni entrambi finestrati, un secondo balcone di 10 Mq ca. serve sia il soggiorno che la camera da letto; ottima la luminosità data dall'esposizione sud-ovest che garantisce luce naturale per gran parte della giornata, il piano alto e gli affacci aperti assicurano privacy assoluta. Completano la proprietà una pratica cantina ed un POSTO AUTO COPERTO all'interno del garage condominiale.
L'appartamento è in stato originale seppur ben tenuto, presenta rifiniture con materiali di pregio come la pavimentazione in marmo di carrara nel salone ed ingresso, parquet massello nella camera, armadiature in legno su misura in più ambienti, porta di accesso blindata, la disposizione interna e la generosa metratura permettono di trasformare l'immobile in un moderno trilocale, adattandolo alle proprie esigenze.
Il riscaldamento è centralizzato, la camera da letto è provvista di climatizzatore inverter caldo/ freddo; le spese condominiali ammontano ad Euro 110 ca. mensili comprensive di quota acqua; possibilità di utilizzo dell'ampia terrazza condominiale (ristrutturata nel 2017) e delle diverse aree comuni a disposizione dei condomini.
L'unità immobiliare, pur situata in contesto tranquillo e riservato è ben servita da attività commerciali e servizi di pubblica utilità; ideale per chi cerca la tranquillità senza rinunciare alla comodità della città.
Facili gli spostamenti con mezzi pubblici date le molteplici linee di autobus e la vicinanza alla stazione ferroviaria di Villa Bonelli; spostamenti agevoli anche in auto grazie alle arterie stradali che collegano la zona al centro città, al GRA, all'aeroporto di Fiumicino e al litorale romano.

La richiesta è di Euro 348.000,00 Tratt. - Classe Energetica G (161 kWh/mq).

Le informazioni pubblicitarie non hanno carattere contrattuale. Le planimetrie non sono in scala e la suddivisione degli spazi è a scopo meramente illustrativo.
VALUTIAMO PERMUTE - OFFRIAMO CONSULENZE E VALUTAZIONI GRATUITE E SENZA IMPEGNO.

Studio 3D Immobiliare - Via Gabriello Chiabrera n. 60/A - Tel. 0659640052 - Fax 0662201321 Cell WA: 3895994000 - E-mail: info@studio3dimmobiliare.it - Web: www.studio3dimmobiliare.it - Orari dal Lunedì al Venerdì 09:00/13:00 15:30/19:00.

SEGUICI ANCHE SUI SOCIAL Facebook https://it-it.facebook.com/chiabrera3D - Instagram: https://instagram.com/studio3dimmobiliare?utm_medium=copy_link

LEGGI TUTTO

CONDIVIDI SUI SOCIAL

DATI PRINCIPALI

Riferimento
633613
Contratto
Vendita
Tipologia
Appartamento
Superficie
85 mq
Locali
2
Camere da letto
1
Cucina
Abitabile
Bagni
2
Piano
4 °
Totale piani
4
Box/Posto auto
Doppio

CARATTERISTICHE

Ascensore

COSTI

Prezzo
€ 348.000,00
Spese condominiali
€ 110,00 / mese

EFFICIENZA ENERGETICA

Stato
Da ristrutturare
Anno costruzione
1965
Riscaldamento
Centralizzato
Climatizzazione
Si
Classe energetica
G
IPE
161,39 kWh/m²a

A+

A

B

C

D

E

F

161,39 kWh/m²a | Classe energetica G

G

MAPPA

ANNUNCI SIMILI

VENDITA 20
€ 470.000
Appartamento in Vendita a Roma, Zona Portuense
  • Quadrilocale
  • 124 mq
  • 2 bagni
VENDITA 20
€ 579.000
Appartamento in Vendita a Roma, Zona Portuense
  • Più di 5 locali
  • 150 mq
  • 2 bagni
VENDITA 20
€ 295.000
Appartamento in Vendita a Roma, Zona Portuense
  • Quadrilocale
  • 95 mq
  • 1 bagno