APPARTAMENTO PRIMO PIANO IN PALAZZINA IN CORTINA VENDITA

Viale di Vigna Pia 32 - Roma, Zona Portuense
€ 339.000
  • Quadrilocale
  • 102 mq
  • 3 bagni

Appartamento in Vendita a Roma

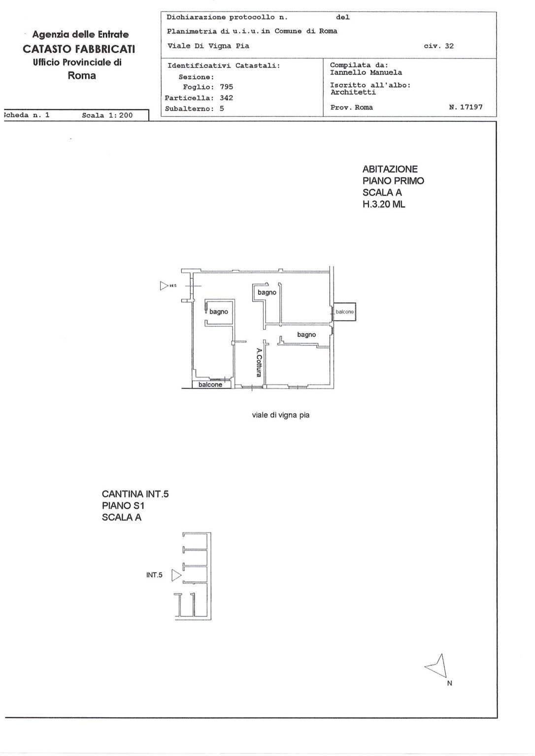
Situato in una palazzina di quattro piani dotata di ascensore. Con una superficie commerciale di 101 m² e 90 m² calpestabili, l'immobile offre un'accogliente zona pranzo con angolo cucina, tre camere spaziose e tre bagni moderni. I due balconi permettono di godere di una vista eccellente
Questo appartamento è ideale sia come residenza privata che come investimento per attività ricettive, grazie alle modifiche interne già autorizzate per accoglienza turistica B&B. La disposizione degli spazi consente un facile ripristino allo stato originale, rendendo l'immobile versatile e adattabile alle proprie esigenze. La cantina al piano semi interrato offre ulteriore spazio per lo stoccaggio.
Situato in una posizione strategica, l'appartamento è facilmente accessibile anche per persone con mobilità ridotta, garantendo comfort e praticità. L'orientamento est assicura luminosità durante tutta la giornata, mentre il riscaldamento e l'aria condizionata rendono l'ambiente accogliente in ogni stagione. Non perdere l'occasione di visitare questa proprietà che rappresenta un ottimo investimento nel mercato immobiliare!

LEGGI TUTTO

CONDIVIDI SUI SOCIAL

DATI PRINCIPALI

Riferimento
633583
Contratto
Vendita
Tipologia
Appartamento
Superficie
102 mq
Locali
4
Camere da letto
3
Cucina
Angolo cottura
Bagni
3
Piano
1 °
Totale piani
4

CARATTERISTICHE

Ascensore

COSTI

Prezzo
€ 339.000,00
Spese condominiali
€ 140,00 / mese

EFFICIENZA ENERGETICA

Stato
Abitabile
Anno costruzione
1970
Riscaldamento
Centralizzato
Climatizzazione
Si
Classe energetica
F
IPE
351,00 kWh/m²a

A+

A

B

C

D

E

351,00 kWh/m²a | Classe energetica F

F

G

MAPPA

ANNUNCI SIMILI

VENDITA 20
€ 470.000
Appartamento in Vendita a Roma, Zona Portuense
  • Quadrilocale
  • 124 mq
  • 2 bagni
VENDITA 20
€ 570.000
Appartamento in Vendita a Roma, Zona Portuense
  • Quadrilocale
  • 140 mq
  • 1 bagno
VENDITA 20
€ 579.000
Appartamento in Vendita a Roma, Zona Portuense
  • Più di 5 locali
  • 150 mq
  • 2 bagni
VENDITA 20
€ 330.000
Appartamento in Vendita a Roma, Zona Portuense
  • Più di 5 locali
  • 110 mq
  • 2 bagni
VENDITA 20
€ 379.000
Appartamento in Vendita a Roma, Zona Marconi
  • Quadrilocale
  • 121 mq
  • 1 bagno
VENDITA 20
€ 370.000
Appartamento in Vendita a Roma, Zona Portuense
  • Più di 5 locali
  • 200 mq
  • 3 bagni
VENDITA 20
€ 340.000
Appartamento in Vendita a Roma, Zona Portuense
  • Quadrilocale
  • 120 mq
  • 2 bagni