Piano Alto ad. Piazza Crati VENDITA

Via Nemorense - Roma (Roma)
€ 1.100.000
  • Più di 5 locali
  • 209 mq
  • 2 bagni

Appartamento in Vendita a Roma

Trieste - Ad.Crati
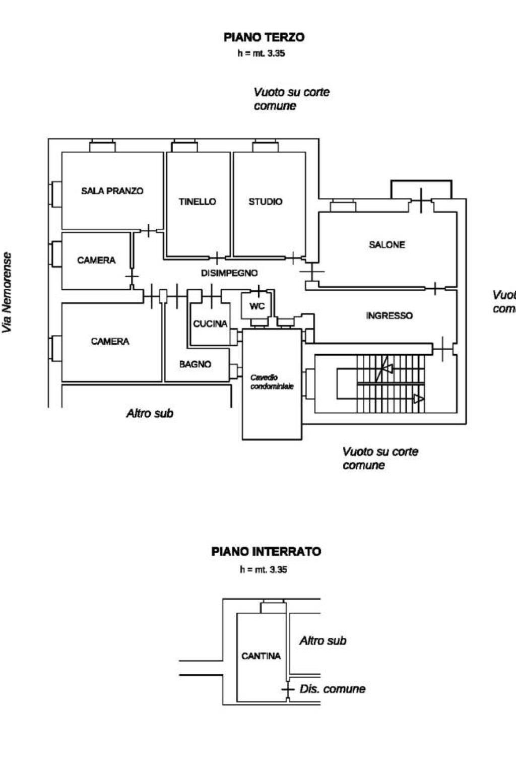
La Meta Immobiliare propone in vendita nel prestigioso quartiere Trieste, a pochi metri dal Parco Nemorense e vicino alla fermata della metro B1 Sant'Agnese/Annibaliano, un appartamento da ristrutturare posto al terzo piano con metratura di 205 mq in un elegante palazzetto anni '30, recentemente ristrutturato. Attualmente è così composto: ampio ingresso con finestra, salone doppio con balconcino, cucina, quattro camere, cameretta e doppi servizi. A completare la proprietà un'ampia cantina con finestra al piano seminterrato. Gli ampi spazi interni offrono un notevole potenziale per chi desidera personalizzare secondo i propri gusti.
La doppia esposizione ad angolo garantisce un' eccellente luminosità in ogni ambiente durante tutto l'arco della giornata.
Il condominio dispone di locali di proprietà attualmenti locati con ottime rendite, rendendo le spese condominiali pari a zero. Riscaldamento centralizzato con ripartitori di consumo.
Questa proprietà gode di una posizione centrale in una zona ricca di servizi, negozi e attrazioni culturali.

LEGGI TUTTO

CONDIVIDI SUI SOCIAL

DATI PRINCIPALI

Riferimento
630686
Contratto
Vendita
Tipologia
Appartamento
Superficie
209 mq
Locali
5
Camere da letto
3
Cucina
Cucinotto
Bagni
2
Piano
3 °
Totale piani
4

CARATTERISTICHE

Ascensore

COSTI

Prezzo
€ 1.100.000,00

EFFICIENZA ENERGETICA

Stato
Da ristrutturare
Anno costruzione
1930
Riscaldamento
Centralizzato
Classe energetica
G
IPE
175,00 kWh/m²a

A+

A

B

C

D

E

F

175,00 kWh/m²a | Classe energetica G

G

MAPPA

ANNUNCI SIMILI

VENDITA 13
€ 995.000
Appartamento in Vendita a Roma (Roma)
  • Più di 5 locali
  • 140 mq
  • 2 bagni
VENDITA 20
€ 900.000
Appartamento in Vendita a Roma (Roma)
  • Più di 5 locali
  • 180 mq
  • 2 bagni
VENDITA 20
€ 750.000
Appartamento in Vendita a Roma (Roma)
  • Più di 5 locali
  • 200 mq
  • 2 bagni
VENDITA 20
€ 1.250.000
Appartamento in Vendita a Roma (Roma)
  • Più di 5 locali
  • 190 mq
  • 3 bagni
VENDITA 12
€ 560.000
Appartamento in Vendita a Roma (Roma)
  • Più di 5 locali
  • 119 mq
  • 2 bagni
VENDITA 20
€ 1.150.000
Appartamento in Vendita a Roma (Roma)
  • Più di 5 locali
  • 140 mq
  • 3 bagni