PENTALOCALE ULTIMO PIANO CON DOPPIA ESPOSIZIONE VENDITA

Via Learco Guerra 45 - Roma (Roma)
€ 420.000
  • Più di 5 locali
  • 141 mq
  • 2 bagni

Appartamento in Vendita a Roma

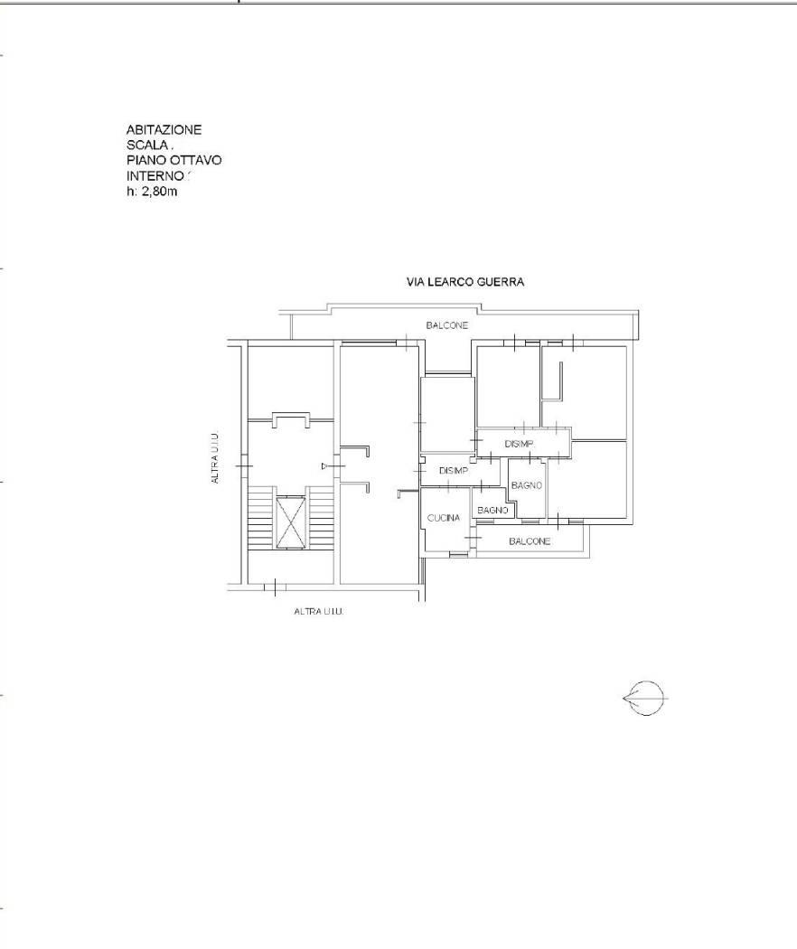
Roma 70, quartiere residenziale nella zona urbanistica di Grottaperfetta e più precisamente in via Learco Guerra proponiamo in vendita un importante appartamento di ampia metratura in posizione particolarmente favorevole per la mobilità cittadina e per la presenza di tutti i principali servizi. L’immobile, posto all’ottavo ed ultimo piano di una palazzina dotata di ascensore e giardini condominiali, è internamente suddiviso in modo funzionale in ingresso, salone doppio con uscita sul balcone terrazzato panoramico, cucina servita da balcone, disimpegno, tre grandi camere da letto, cameretta, due bagni entrambi con finestra. L’appartamento, che con doppia esposizione parallela gode di un’ottima luminosità in tutti gli ambienti della casa, si presenta in buone condizioni. Il prezzo richiesto di euro 420.000,00 comprende anche l’acquisto di una cantina e di un posto auto coperto. Ce G Ipe 117,91 kWh/m2 anno. Per maggiori informazioni e prenotazione visite contattare il numero 0649776023, un nostro consulente sarà a Vostra disposizione.

LEGGI TUTTO

CONDIVIDI SUI SOCIAL

DATI PRINCIPALI

Riferimento
640715
Contratto
Vendita
Tipologia
Appartamento
Superficie
141 mq
Locali
5
Camere da letto
3
Cucina
Cucinotto
Bagni
2
Piano
Più di 7 piani
Totale piani
8
Box/Posto auto
Singolo

CARATTERISTICHE

Ascensore

COSTI

Prezzo
€ 420.000,00
Spese condominiali
€ 100,00 / mese

EFFICIENZA ENERGETICA

Stato
Abitabile
Anno costruzione
1980
Riscaldamento
Autonomo
Climatizzazione
Si
Classe energetica
G
IPE
117,91 kWh/m²a

A+

A

B

C

D

E

F

117,91 kWh/m²a | Classe energetica G

G

MAPPA

ANNUNCI SIMILI

VENDITA 20
€ 420.000
Appartamento in Vendita a Roma (Roma)
  • Più di 5 locali
  • 148 mq
  • 2 bagni
VENDITA 11
€ 374.250
Appartamento in Vendita a Roma (Roma)
  • Più di 5 locali
  • 121 mq
  • 2 bagni
VENDITA 20
€ 880.000
Appartamento in Vendita a Roma (Roma)
  • Più di 5 locali
  • 220 mq
  • 4 bagni
VENDITA 20
€ 430.000
Appartamento in Vendita a Roma (Roma)
  • Più di 5 locali
  • 217 mq
  • 4 bagni