Appartamento ristrutturato con affaccio libero VENDITA

Via Spiro Valles 44 - Roma, Zona Fonte Meravigliosa
€ 495.000
  • Più di 5 locali
  • 152 mq
  • 2 bagni

Appartamento in Vendita a Roma

Roma - Fonte Meravigliosa
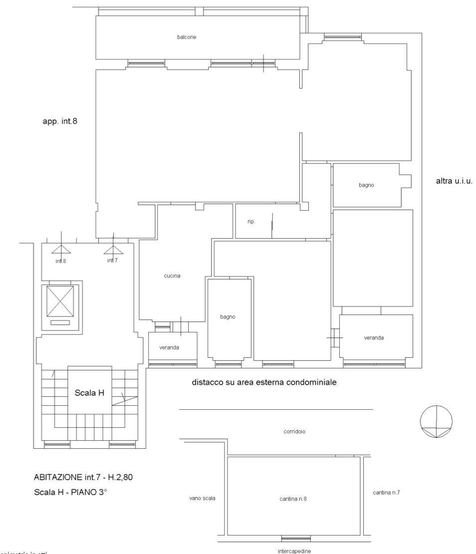
Ampio appartamento in complesso con giardini condominiali . In uno dei quartieri più riservati e verdi della Capitale, proponiamo in vendita un prestigioso appartamento di circa 130 mq situato al terzo piano di un elegante complesso residenziale dotato di giardini comuni. La proprietà si distingue per la perfetta distribuzione degli spazi e per la luminosità degli ambienti:
Ingresso con guardaroba
Salone doppio con accesso ad ampia terrazza vivibile.
Cucina abitabile con locale dispensa e annesso locale lavanderia.
Ampia camera matrimoniale al momento adibita a studio.
Disimpegno con cabina armadio.
Camera da letto con cabina armadio, angolo studio e bagno adiacente
Suite matrimoniale composta da camera padronale, cabina armadio privata e bagno en suite.
Una cantina e posto auto coperto completano la proprietà.
L’immobile si presenta in buone condizioni, parquet in tutte le stanze, infissi di ultima generazione, pronto da abitare, e offre tutti i comfort necessari per una vita familiare di qualità. Riscaldamento autonomo. Gli spazi verdi condominiali rendono questa soluzione ideale per chi cerca tranquillità senza rinunciare ai servizi, con scuole, negozi e collegamenti agevoli verso l’EUR e il centro città.
Per maggiori informazioni e visite, contattare l’agenzia o inviare una mail a: immobili@hometellingre.com

LEGGI TUTTO

CONDIVIDI SUI SOCIAL

DATI PRINCIPALI

Riferimento
626742
Contratto
Vendita
Tipologia
Appartamento
Superficie
152 mq
Locali
Più di 5
Camere da letto
2
Cucina
Abitabile
Bagni
2
Piano
3 °
Totale piani
5
Box/Posto auto
Singolo

CARATTERISTICHE

Ascensore

COSTI

Prezzo
€ 495.000,00
Spese condominiali
€ 100,00 / mese

EFFICIENZA ENERGETICA

Stato
Abitabile
Anno costruzione
1980
Riscaldamento
Autonomo
Climatizzazione
Si
Classe energetica
D
IPE
175,00 kWh/m²a

A+

A

B

C

175,00 kWh/m²a | Classe energetica D

D

E

F

G

MAPPA

ANNUNCI SIMILI

VENDITA 11
€ 374.250
Appartamento in Vendita a Roma (Roma)
  • Più di 5 locali
  • 121 mq
  • 2 bagni
VENDITA 18
€ 144.600
Appartamento in Vendita a Roma (Roma)
  • Più di 5 locali
  • 136 mq
  • 2 bagni
VENDITA 20
€ 870.000
Appartamento in Vendita a Roma (Roma)
  • Più di 5 locali
  • 195 mq
  • 4 bagni
VENDITA 20
€ 870.000
Appartamento in Vendita a Roma, Zona Eur
  • Più di 5 locali
  • 268 mq
  • 3 bagni
VENDITA 12
€ 670.000
Appartamento in Vendita a Roma (Roma)
  • Più di 5 locali
  • 215 mq
  • 3 bagni
VENDITA 20
€ 648.000
Appartamento in Vendita a Roma (Roma)
  • Più di 5 locali
  • 240 mq
  • 3 bagni
VENDITA 20
€ 1.000.000
Appartamento in Vendita a Roma (Roma)
  • Più di 5 locali
  • 220 mq
  • 2 bagni
VENDITA 20
€ 520.000
Appartamento in Vendita a Roma (Roma)
  • Più di 5 locali
  • 189 mq
  • 2 bagni