€ 109.000
  • Trilocale
  • 70 mq
  • 1 bagno

Appartamento in Vendita a Albano Laziale

L'immobile si trova in una zona centrale, vicina alla stazione ferroviaria, a servizi commerciali, scuole e altre comodità.
Situato al secondo piano senza ascensore di una piccola palazzina senza condominio.
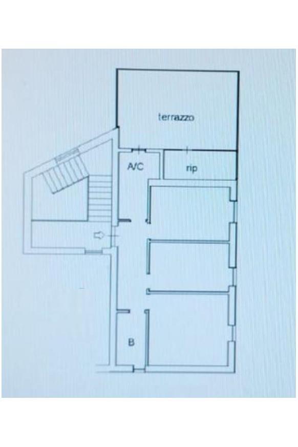
Internamente composta da:
Ingresso,
Soggiorno con camino,
Cucinotto,
2 camere,
Bagno,
Grande terrazzo di circa 30 mq con ampio ripostiglio.

L'agenzia Metroquadro nasce da un progetto di tre professionisti del settore con esperienza ventennale, iscritti regolarmente all'albo degli agenti in affari e mediazioni. La nostra esperienza al servizio del cliente ci permette di avvalorare il nostro Progetto Casa, dove potrete trovare tutte le informazioni necessarie per scoprire quali siano le opportunità che il mercato immobiliare e finanziario offre.
L'agenzia si avvale di un servizio di consulenza finanziaria gratuita attraverso società di mediazione creditizia, convenzionata con i più importanti istituti bancari italiani.
Ci troviamo a Marino, località Frattocchie, all'interno del centro commerciale "La Nave". Per raggiungerci potete percorrere la via Nettunense al km 0.600 e svoltare per via Giorgio Amendola, fino ad arrivare alla piazza Sandro Pertini, dove troverete un ampio parcheggio.
Completamente da ristrutturare.

LEGGI TUTTO

CONDIVIDI SUI SOCIAL

DATI PRINCIPALI

Riferimento
632410
Contratto
Vendita
Tipologia
Appartamento
Superficie
70 mq
Locali
3
Camere da letto
2
Cucina
Cucinotto
Bagni
1
Piano
2 °
Totale piani
2

CARATTERISTICHE

Ascensore

COSTI

Prezzo
€ 109.000,00

EFFICIENZA ENERGETICA

Stato
Da ristrutturare
Anno costruzione
1980
Riscaldamento
Autonomo
Climatizzazione
Si
Classe energetica
G
IPE
175,00 kWh/m²a

A+

A

B

C

D

E

F

175,00 kWh/m²a | Classe energetica G

G

MAPPA

ANNUNCI SIMILI

VENDITA 20
€ 225.000
Appartamento in Vendita a Albano Laziale (Roma)
  • Quadrilocale
  • 121 mq
VENDITA 20
€ 179.000
Appartamento in Vendita a Albano Laziale (Roma)
  • Quadrilocale
  • 90 mq
  • 2 bagni
VENDITA 16
€ 189.000
Appartamento in Vendita a Albano Laziale (Roma)
  • Trilocale
  • 75 mq
  • 2 bagni
VENDITA 20
€ 139.000
Appartamento in Vendita a Albano Laziale (Roma)
  • Più di 5 locali
  • 110 mq
  • 1 bagno