Parioli - splendido appartamento su due livelli in vendita VENDITA

Via Antonio Bertoloni - Roma, Zona Parioli
€ 1.250.000
  • Più di 5 locali
  • 275 mq
  • 3 bagni

Appartamento in Vendita a Roma

Parioli - In vendita a Roma, nel prestigioso Viale Bertoloni, si trova questo splendido appartamento su due livelli, libero al rogito e in buone condizioni conservative.
L'edificio dove è ubicato l'immobile è stato costruito nel 1960 e dispone di ascensore per agevolare gli spostamenti.
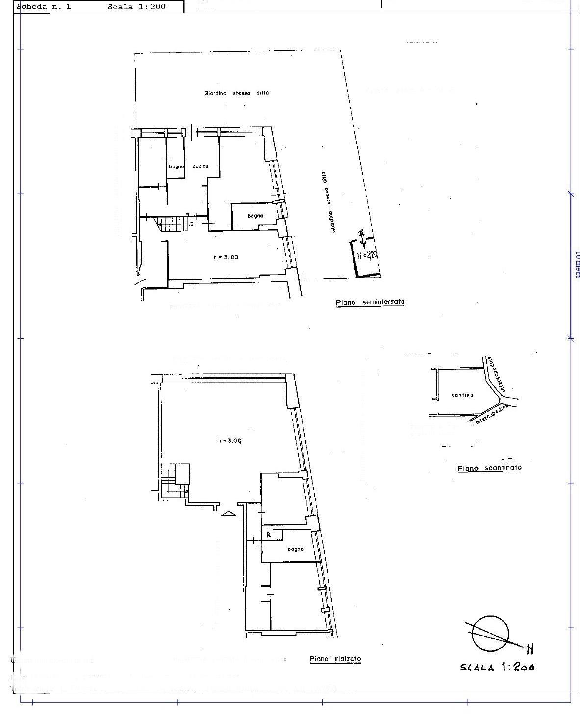
La superficie complessiva della proprietà, munita di doppio ingresso, è di 260 metri quadrati, di cui 230 calpestabili, e si sviluppa su due piani con un totale di 15 locali, tra cui 4 camere da letto e 3 bagni. Nel piano primo, si apre un grande salone triplo con pareti in boiserie pregiata, mentre un lungo corridoi, situato a destra dell'ampio ingresso, conduce il visitatore alle due camere da letto e al servizio di grandi dimensioni. Completa questo piano, un grande ripostiglio / cabina armadio.
La maggior parte degli ambienti della casa, anche nel piano terra, sono divisi con pareti di legno, facilmente rimovibili, mentre il riscaldamento è con impianto a radiatori alimentati a metano, una fonte di combustibile efficiente e conveniente. Gli infissi e le finestre sono in vetro legno e alluminio, garantendo un'ottima isolamento termico e acustico. Porta blindata. Il palazzo dispone di portineria per garantire un servizio di sicurezza e assistenza ai residenti. L'esposizione su due lati regala una luminosità eccezionale a tutte le ore del giorno. La cucina, ubicata al piano terra dell'immobile è abitabile, con uscita sul giardino terrazzato e dotata di tutti gli elettrodomestici necessari, mentre il giardino a forma di lettera L offre uno spazio all'aperto ideale per momenti di relax e conviviali.
Il giardino privato, in cui si può uscire anche dalla sala pranzo e dalla sala TV, entrambe ubicate al piano terra, è perfetto per trascorrere piacevoli momenti all'aria aperta ed ha altresì anche un piccolo magazzino. Nel piano terra, oltre alla sala da pranzo, alla sala TV/ che può essere adibita ad una quarta camera e oltre alla cucina abitabile, si trova anche la camera di servitù con il proprio servizio e un ulteriore bagno. Il piano terra ha la sua uscita indipendente che conduce alla cantina a al box privato.
Un'opportunità unica per chi desidera vivere immerso nel silenzio in uno dei quartieri più prestigiosi di Roma, ricco di boutique, ristoranti e negozi per ogni necessita, in un'abitazione di lusso e dal design raffinato, a pochi passi da Villa Borghese e dal centro storico della città.
Il giardino privato, in cui si può uscire anche dalla sala pranzo e dalla sala TV, entrambe ubicate al piano terra, è perfetto per trascorrere piacevoli momenti all'aria aperta ed ha altresì anche un piccolo magazzino. Nel piano terra, oltre alla sala da pranzo, alla sala TV/ che può essere adibita ad una quarta camera e oltre alla cucina abitabile, si trova anche la camera di servitù con il proprio servizio e un ulteriore bagno. Il piano terra ha la sua uscita indipendente che conduce alla cantina a al box privato.
Un'opportunità unica per chi desidera vivere immerso nel silenzio in uno dei quartieri più prestigiosi di Roma, ricco di boutique, ristoranti e negozi per ogni necessita, in un'abitazione di lusso e dal design raffinato, a pochi passi da Villa Borghese e dal centro storico della città.

LEGGI TUTTO

CONDIVIDI SUI SOCIAL

DATI PRINCIPALI

Riferimento
634075
Contratto
Vendita
Tipologia
Appartamento
Superficie
275 mq
Locali
Più di 5
Camere da letto
4
Cucina
Abitabile
Bagni
3
Piano
Piano rialzato
Totale piani
5
Box/Posto auto
Singolo

CARATTERISTICHE

Ascensore

COSTI

Prezzo
€ 1.250.000,00
Spese condominiali
€ 180,00 / mese

EFFICIENZA ENERGETICA

Stato
Abitabile
Anno costruzione
1960
Riscaldamento
Centralizzato
Climatizzazione
Si
Classe energetica
F
IPE
175,00 kWh/m²a

A+

A

B

C

D

E

175,00 kWh/m²a | Classe energetica F

F

G

MAPPA

ANNUNCI SIMILI

VENDITA 20
€ 1.480.000
Appartamento in Vendita a Roma, Zona Parioli
  • Più di 5 locali
  • 296 mq
  • 3 bagni
VENDITA 20
€ 1.280.000
Appartamento in Vendita a Roma, Zona Parioli
  • Più di 5 locali
  • 265 mq
  • 2 bagni
VENDITA 20
€ 1.450.000
Appartamento in Vendita a Roma (Roma)
  • Più di 5 locali
  • 307 mq
  • 4 bagni
VENDITA 20
€ 1.470.000
Appartamento in Vendita a Roma (Roma)
  • Più di 5 locali
  • 257 mq
  • 3 bagni
VENDITA 20
€ 1.300.000
Appartamento in Vendita a Roma (Roma)
  • Più di 5 locali
  • 180 mq
  • 3 bagni