PALESTRINA: APPARTAMENTO OTTIMO STATO CON ASCENSORE E DOPPIO VENDITA

Via della Colombella 25 - Palestrina (Roma)
€ 229.000
  • Trilocale
  • 78 mq
  • 2 bagni

Appartamento in Vendita a Palestrina

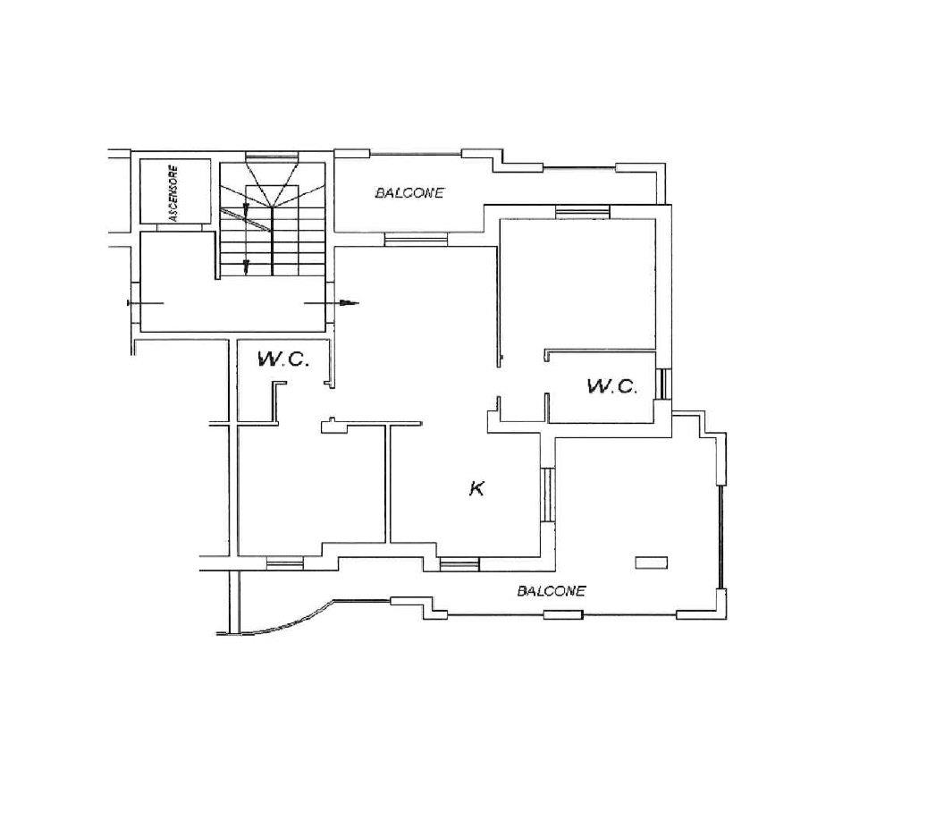
Mediazionecasa è lieta di proporre in vendita un grazioso appartamento situato nel cuore di Palestrina in via della Colombella. Questo immobile al terzo piano di una palazzina in ottimo stato, servita da ascensore, si estende su una superficie di 87 mq, offrendo una soluzione abitativa ideale per famiglie.
La disposizione interna è stata studiata per garantire comfort e funzionalità: si accede a un ampio ingresso che conduce a un luminoso salone perfetto per momenti di convivialità, cucina a vista separata dal salone, mentre la zona notte è composta da una camera matrimoniale con bagno ensuite finestrato, una seconda camera da letto e un ulteriore bagno anch'esso finestrato.
Uno dei punti di forza di questo appartamento è il terrazzo vivibile, che offre una vista mozzafiato sul Museo della Dea Primigenia, ideale per trascorrere piacevoli momenti all’aria aperta. Completano la proprietà un balcone di servizio e, al piano superiore, una soffitta di 30 mq, accessibile esternamente e di esclusiva proprietà, perfetta per essere utilizzata come studio o per ospitare amici e familiari.
L’immobile si presenta in ottime condizioni, con infissi nuovi a doppio vetro camera e taglio termico, e pavimenti curati, garantendo così un ambiente accogliente e pronto per essere abitato.
Situato nel centro di Palestrina, l’appartamento gode di un’ottima posizione, con tutti i servizi facilmente raggiungibili a piedi. Nonostante sia collocato in una zona centrale, la recente costruzione dello stabile assicura un elevato livello di comodità e qualità della vita per tutti i membri della famiglia.

LEGGI TUTTO

CONDIVIDI SUI SOCIAL

DATI PRINCIPALI

Riferimento
637241
Contratto
Vendita
Tipologia
Appartamento
Superficie
78 mq
Locali
3
Camere da letto
2
Cucina
Angolo cottura
Bagni
2
Piano
3 °
Totale piani
3
Box/Posto auto
Doppio

CARATTERISTICHE

Ascensore

COSTI

Prezzo
€ 229.000,00
Spese condominiali
€ 110,00 / mese

EFFICIENZA ENERGETICA

Stato
Ristrutturato
Anno costruzione
2009
Riscaldamento
Autonomo
Classe energetica
F
IPE
175,00 kWh/m²a

A+

A

B

C

D

E

175,00 kWh/m²a | Classe energetica F

F

G

MAPPA

ANNUNCI SIMILI

VENDITA 17
€ 279.000
Appartamento in Vendita a Palestrina (Roma)
  • Quadrilocale
  • 85 mq
  • 2 bagni
VENDITA 20
€ 249.000
Appartamento in Vendita a Palestrina (Roma)
  • Quadrilocale
  • 165 mq
  • 3 bagni