APPARTAMENTO CON BALCONI, BOX AUTO E POSTO AUTO VENDITA

Via dei Gerani - Palestrina (Roma)
€ 174.000
  • Quadrilocale
  • 110 mq
  • 2 bagni

Appartamento in Vendita a Palestrina

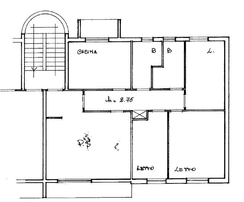
ThinkHome propone in vendita nel Comune di Palestrina e più precisamente in via dei gerani un appartamento di 110mq circa, con due balconi posto al terzo ed ultimo piano senza ascensore ed un posto auto coperto e box auto di 14mq circa.

L'appartamento internamente è così composto:
- ingresso,
- salone con uscita sul primo balcone di 5mq cca,
- cucina abitabile a vista con camino ed uscita sul secondo balcone di 3mq cca con vista panoramica sulla città di Palestrina,
- disimpegno,
- camera da letto matrimoniale,
- due camerette,
- un primo bagno finestrato con doccia,
- un secondo bagno finestrato con vasca
Completano internament el'immobile dei soppalchi ad uso ripostiglio.

L'immobile gode delle seguenti caratteristiche: infissi in pvc effetto legno doppio vetro taglio termico, tapparelle in pvc, pavimentazione in parquet in tutta la casa tranne nei bagni dove troviamo un gress porcellanato, aria condizionata caldo/freddo nella zona giorno, camino, porta blindata, caldaia per la produzione di acqua sanitaria e riscaldamento e tende da sole.
Completa la proprietà un posto auto coperto ed un box auto di 14mq ed all'interno della corte condominiale possibilità di parcheggio per gli ospiti.
Tutte le utenze dirette ed allacciate.
La zona è ottimale in quanto vicina a tutti i servizi di prima necessità che offre la zona.
Le spese condominiali sono di €60,00/mese

LEGGI TUTTO

CONDIVIDI SUI SOCIAL

DATI PRINCIPALI

Riferimento
635506
Contratto
Vendita
Tipologia
Appartamento
Superficie
110 mq
Locali
4
Camere da letto
3
Cucina
Abitabile
Bagni
2
Piano
3 °
Totale piani
3
Box/Posto auto
Singolo

CARATTERISTICHE

Ascensore

COSTI

Prezzo
€ 174.000,00
Spese condominiali
€ 60,00 / mese

EFFICIENZA ENERGETICA

Stato
Abitabile
Anno costruzione
1111
Riscaldamento
Autonomo
Climatizzazione
Si
Classe energetica
G
IPE
175,00 kWh/m²a

A+

A

B

C

D

E

F

175,00 kWh/m²a | Classe energetica G

G

MAPPA

ANNUNCI SIMILI

VENDITA 20
€ 249.000
Appartamento in Vendita a Palestrina (Roma)
  • Quadrilocale
  • 165 mq
  • 3 bagni
VENDITA 17
€ 279.000
Appartamento in Vendita a Palestrina (Roma)
  • Quadrilocale
  • 85 mq
  • 2 bagni
VENDITA 20
€ 229.000
Appartamento in Vendita a Palestrina (Roma)
  • Più di 5 locali
  • 180 mq
  • 1 bagno
VENDITA 20
€ 129.000
Appartamento in Vendita a Palestrina (Roma)
  • Quadrilocale
  • 104 mq
  • 1 bagno
VENDITA 15
€ 180.000
Appartamento in Vendita a Palestrina (Roma)
  • Più di 5 locali
  • 243 mq
  • 2 bagni
VENDITA 20
€ 69.000
Appartamento in Vendita a Palestrina (Roma)
  • Quadrilocale
  • 65 mq
  • 1 bagno