NUOVA COSTRUZIONE MONOLOCALE CON AMPIO GIARDINO VENDITA

Via di Monte del Gallo 22 - Roma (Roma)
€ 490.000
  • Monolocale
  • 37 mq
  • 1 bagno

Appartamento in Vendita a Roma

Nuova Costruzione in Via Monte del Gallo 24 - Via della Cava Aurelia 19.

Situata nella suggestiva zona di San Pietro, questa residenza si erge come un simbolo di stile e lusso, perfettamente integrato nel contesto artistico e storico che la circonda.

Molta cura è stata dedicata agli spazi interni, selezionando le migliori soluzioni compositive, e alla scelta dei materiali, con tecnologie all’avanguardia.

La palazzina si distingue per il suo progetto architettonico all'avanguardia, con fondamenta e strutture antisismiche.
Gli impianti, conformi alle normative energetiche in Classe A, includono un sistema di climatizzazione centralizzato a pavimento con climatizzazione e impianto a pannelli solari.
Materiali di alta qualità caratterizzano l'edificio, dalle murature, come il sistema di isolamento termico a cappotto, alle finiture interne.
Anche le parti condominiali adottano soluzioni all'avanguardia, come l'illuminazione a led.

Consegna immobili Maggio 2026

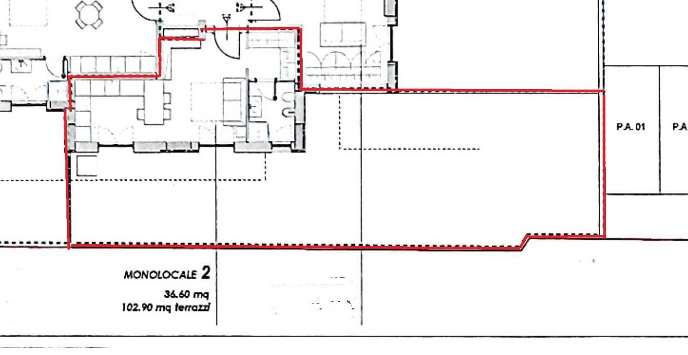
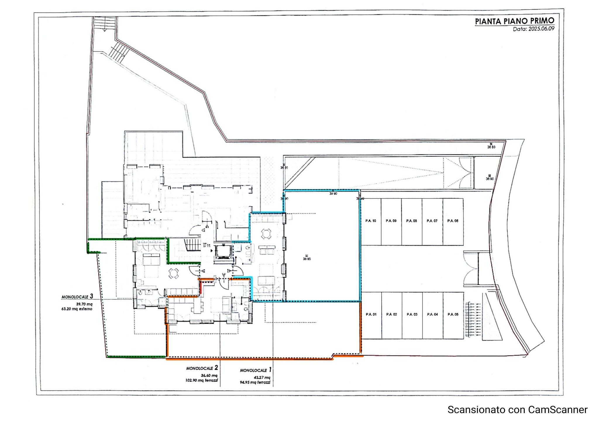
Nello specifico proponiamo un MONOLOCALE di circa 70 mq commerciali
Internamente di circa 40 mq e composto da: soggiorno con angolo cottura bagno, giardino in parte pavimentato di circa 103 mq

L'appartamento è posto al primo piano catastale e sarà consengnato in classe energetica A.

Possibilità di acquisto di box, posti auto e cantine a parte.
Per ulteriori informazioni ed appuntamenti potete contattarci ai numeri indicati e sul cellulare anche via WhatsApp per fissare un appuntamento in cantiere

Vendite in collaborazione con VITE IMMOBILIARE.

LEGGI TUTTO

CONDIVIDI SUI SOCIAL

DATI PRINCIPALI

Riferimento
636955
Contratto
Vendita
Tipologia
Appartamento
Superficie
37 mq
Locali
1
Camere da letto
1
Cucina
Angolo cottura
Bagni
1
Piano
1 °
Totale piani
7

CARATTERISTICHE

Ascensore

COSTI

Prezzo
€ 490.000,00
Spese condominiali
€ 1,00 / mese

EFFICIENZA ENERGETICA

Stato
Nuovo/In costruzione
Anno costruzione
2024
Riscaldamento
Centralizzato
Climatizzazione
Si
Classe energetica
A1
IPE
351,00 kWh/m²a

A4

A3

A2

351,00 kWh/m²a | Classe energetica A1

A1

B

C

D

E

F

G

MAPPA

ANNUNCI SIMILI

VENDITA 20
€ 490.000
Appartamento in Vendita a Roma (Roma)
  • Monolocale
  • 75 mq
  • 1 bagno
VENDITA 20
€ 470.000
Appartamento in Vendita a Roma (Roma)
  • Monolocale
  • 71 mq
  • 1 bagno
VENDITA 20
€ 435.000
Appartamento in Vendita a Roma (Roma)
  • Trilocale
  • 100 mq
  • 1 bagno
VENDITA 20
€ 200.000
Appartamento in Vendita a Roma (Roma)
  • Bilocale
  • 45 mq
  • 1 bagno
VENDITA 20
€ 650.000
Appartamento in Vendita a Roma (Roma)
  • Più di 5 locali
  • 160 mq
  • 2 bagni
VENDITA 20
€ 360.000
Appartamento in Vendita a Roma (Roma)
  • Bilocale
  • 60 mq
  • 1 bagno