€ 69.000
  • Monolocale
  • 25 mq

Appartamento in Vendita a Roma

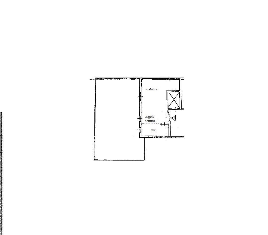
Alessandrino/Torre Maura, Via di Casa Calda, in palazzina misto cortina con ascensore, proponiamo anche uso investimento, monolocale composto da camera con angolo cottura, bagno e splendido terrazzo panoramico di circa 25mq.
L'immobile è completamente da ristrutturare e sito al piano 5^ con ascensore fino al 4^ piano.

CONDIVIDI SUI SOCIAL

DATI PRINCIPALI

Riferimento
632697
Contratto
Vendita
Tipologia
Appartamento
Superficie
25 mq
Locali
1
Camere da letto
1
Piano
5 °
Totale piani
5

CARATTERISTICHE

Ascensore

COSTI

Prezzo
€ 69.000,00

EFFICIENZA ENERGETICA

Stato
Da ristrutturare
Classe energetica
G
IPE
175,00 kWh/m²a

A+

A

B

C

D

E

F

175,00 kWh/m²a | Classe energetica G

G

MAPPA

ANNUNCI SIMILI