Appartamento con terrazzo e box, zona Alessandrino VENDITA

Via delle Viole 3 - Roma (Roma)
€ 295.000
  • Bilocale
  • 73 mq
  • 1 bagno

Appartamento in Vendita a Roma

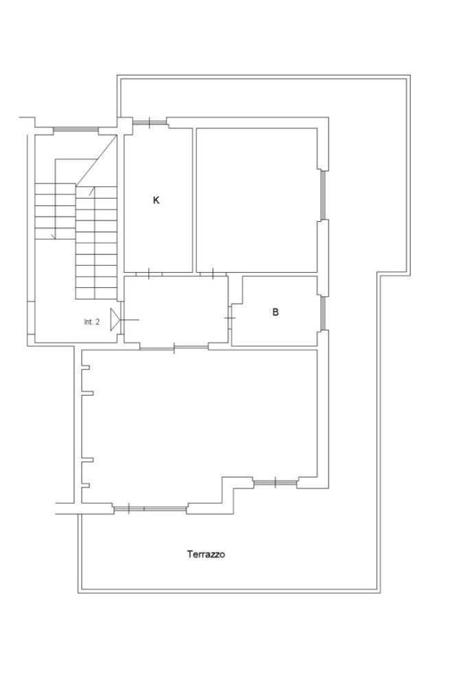
Roma – Alessandrino – via delle Viole - Zona Alessandrino, e precisamente in via delle Viole, in contesto tranquillo e ben servito da scuole, supermercati, farmacie, ospedale Casilino, uffici postali e attività commerciali, proponiamo la vendita di un rifinito appartamento posto al primo piano di una piccola palazzina in cortina di sole due elevazioni, senza ascensore.
La casa gode di una tripla esposizione che la rende luminosa tutto il giorno ed è così composta: ampio soggiorno, cucina abitabile, disimpegno, camera, bagno con doccia e finestra e ampio terrazzo perimetrale di circa 45 mq, che abbraccia tutto l'appartamento.
La proprietà è stata recentemente ristrutturata nel 2023 con confort ed eleganza, viene venduta parzialmente arredata ed è dotata di: porta blindata, impianto di climatizzazione, termoarredo di design, infissi in doppio vetro e PVC, zanzariere, grate, serrande elettriche, tende da sole e impianto d'allarme con telecamere esterne. Dotato di conformità impianti.
Completa la proprietà un comodo box di 25 mq dotato anch'esso di impianto d'allarme.
Grazie alla vicinanza della "Metro C" fermata Alessandrino, e alle principali linee autobus, rendono questo immobile ideale anche come uso investimento.
Tutte le informazioni contenute nel presente annuncio non costituiscono vincolo contrattuale. La vendita è curata dalla VALORE IMMOBILIARE L’agenzia VALORE IMMOBILIARE si trova nel quartiere Bufalotta-Talenti, nelle sedi di: - via della Bufalotta n.356 (angolo via Renato Fucini) - via Franco Sacchetti n.35 (nuova apertura). Siamo aperti dal lunedì al venerdì 09:30 alle 13:00 e dalle 15:30 alle 19:30. Il Sabato dalle 9:30 alle 12:30. Per avere maggiori informazioni su questo annuncio e per fissare un appuntamento puoi contattarci al numero: 0631071342. Hai trovato la casa che fa per te ma non puoi chiamarci in questo momento? Inviaci un messaggio WhatsApp o un SMS al numero 3272051472, indicando la via dell’appartamento, il prezzo o il riferimento dell’annuncio e ti risponderemo al più presto. In alternativa puoi inviarci una mail a info@valoreimmobiliare.it. Gestiremo più facilmente la tua richiesta. Se ti occorre vendere la tua casa per acquistarne un'altra, contattaci per una consulenza gratuita e senza impegno. Lavoriamo su tutta Roma, garantendoti tutta la cura e la competenza di cui hai bisogno per vendere al meglio il tuo immobile. Visita il sito www.valoreimmobiliare.it per scoprire chi siamo e quali servizi possiamo offrirti. Se vuoi rimanere sempre aggiornato su tutte le nostre nuove proposte in anteprima puoi iscriverti gratuitamente alla nostra newsletter sul sito internet o seguirci sui nostri canali social Facebook (Valore Immobiliare) e Instagram (valore_immobiliare).

LEGGI TUTTO

CONDIVIDI SUI SOCIAL

DATI PRINCIPALI

Riferimento
638263
Contratto
Vendita
Tipologia
Appartamento
Superficie
73 mq
Locali
2
Camere da letto
1
Cucina
Abitabile
Bagni
1
Piano
1 °
Totale piani
2
Box/Posto auto
Singolo

CARATTERISTICHE

Ascensore

COSTI

Prezzo
€ 295.000,00
Spese condominiali
€ 100,00 / mese

EFFICIENZA ENERGETICA

Stato
Abitabile
Anno costruzione
1967
Riscaldamento
Autonomo
Climatizzazione
Si
Classe energetica
G
IPE
175,00 kWh/m²a

A+

A

B

C

D

E

F

175,00 kWh/m²a | Classe energetica G

G

MAPPA

ANNUNCI SIMILI

VENDITA 20
€ 239.000
Appartamento in Vendita a Roma (Roma)
  • Trilocale
  • 75 mq
  • 1 bagno
VENDITA 20
€ 239.000
Appartamento in Vendita a Roma (Roma)
  • Trilocale
  • 75 mq
  • 1 bagno
VENDITA 20
€ 269.000
Appartamento in Vendita a Roma (Roma)
  • Trilocale
  • 82 mq
  • 1 bagno
VENDITA 8
€ 225.000
Appartamento in Vendita a Roma (Roma)
  • Trilocale
  • 103 mq
  • 1 bagno
VENDITA 20
€ 275.000
Appartamento in Vendita a Roma (Roma)
  • Trilocale
  • 80 mq
  • 2 bagni
VENDITA 11
€ 199.000
Appartamento in Vendita a Roma (Roma)
  • Trilocale
  • 98 mq
  • 1 bagno
VENDITA 20
€ 170.000
Appartamento in Vendita a Roma (Roma)
  • Bilocale
  • 60 mq
  • 1 bagno