€ 119.000
  • Monolocale
  • 45 mq
  • 1 bagno

Appartamento in Vendita a Roma

**Monolocale in Vendita - Un'Occasione da Non Perdere!**

Scopri questo affascinante monolocale situato al primo piano di una palazzina in tinta e cortina, in ottime condizioni.

Questo immobile, da ristrutturare, offre un grande potenziale per chi desidera personalizzarlo secondo il proprio gusto.

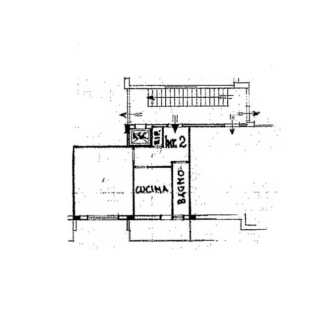
Con una superficie commerciale di 45 mq, l'appartamento è composto da un ingresso accogliente, un bagno con finestra, un pratico ripostiglio, una cucina funzionale e una camera da letto luminosa. Il balcone è perfetto per godere di momenti di relax all'aria aperta.

Dotato di ascensore e riscaldamento autonomo a gas naturale, questo monolocale è ideale per chi cerca una soluzione comoda e versatile.

Situato in una zona tranquilla, ma ben collegata, rappresenta un'ottima opportunità sia per giovani coppie che per investitori.

Non lasciarti sfuggire questa occasione! Contattaci per maggiori informazioni e per organizzare una visita.
Le presenti informazioni e planimetrie sono meramente informative e non costituiscono elementi contrattuali.

PM IMMOBILIARE
Via dei Colombi n. 34, Roma
0669270129
3311972514

LEGGI TUTTO

CONDIVIDI SUI SOCIAL

DATI PRINCIPALI

Riferimento
629924
Contratto
Vendita
Tipologia
Appartamento
Superficie
45 mq
Locali
1
Camere da letto
1
Cucina
Abitabile
Bagni
1
Piano
1 °
Totale piani
6

CARATTERISTICHE

Ascensore

COSTI

Prezzo
€ 119.000,00
Spese condominiali
€ 40,00 / mese

EFFICIENZA ENERGETICA

Stato
Da ristrutturare
Anno costruzione
1963
Riscaldamento
Autonomo
Classe energetica
F
IPE
351,00 kWh/m²a

A+

A

B

C

D

E

351,00 kWh/m²a | Classe energetica F

F

G

MAPPA

ANNUNCI SIMILI

VENDITA 20
€ 233.000
Appartamento in Vendita a Roma (Roma)
  • Trilocale
  • 86 mq
  • 1 bagno
VENDITA 20
€ 169.000
Appartamento in Vendita a Roma (Roma)
  • Trilocale
  • 90 mq
  • 1 bagno
VENDITA 10
€ 80.000
Appartamento in Vendita a Roma (Roma)
  • Bilocale
  • 52 mq
  • 1 bagno
VENDITA 15
€ 165.000
Appartamento in Vendita a Roma (Roma)
  • Trilocale
  • 97 mq
  • 1 bagno
VENDITA 20
€ 199.000
Appartamento in Vendita a Roma (Roma)
  • Trilocale
  • 98 mq
  • 1 bagno
VENDITA 5
Trattativa Riservata
Appartamento in Vendita a Roma (Roma)
  • Bilocale
  • 41 mq
  • 1 bagno
VENDITA 20
€ 239.000
Appartamento in Vendita a Roma (Roma)
  • Trilocale
  • 70 mq
  • 2 bagni
VENDITA 15
€ 145.000
Appartamento in Vendita a Roma (Roma)
  • Bilocale
  • 70 mq
  • 1 bagno