* Vendesi Trilocale ampio con giardino* VENDITA

Via di Casa Calda - Roma (Roma)
€ 199.000
  • Trilocale
  • 95 mq
  • 1 bagno

Appartamento in Vendita a Roma

Vendesi Trilocale ampio con giardino *IN TRATTATIVA*

TORRE MAURA – VIA DI CASA CALDA

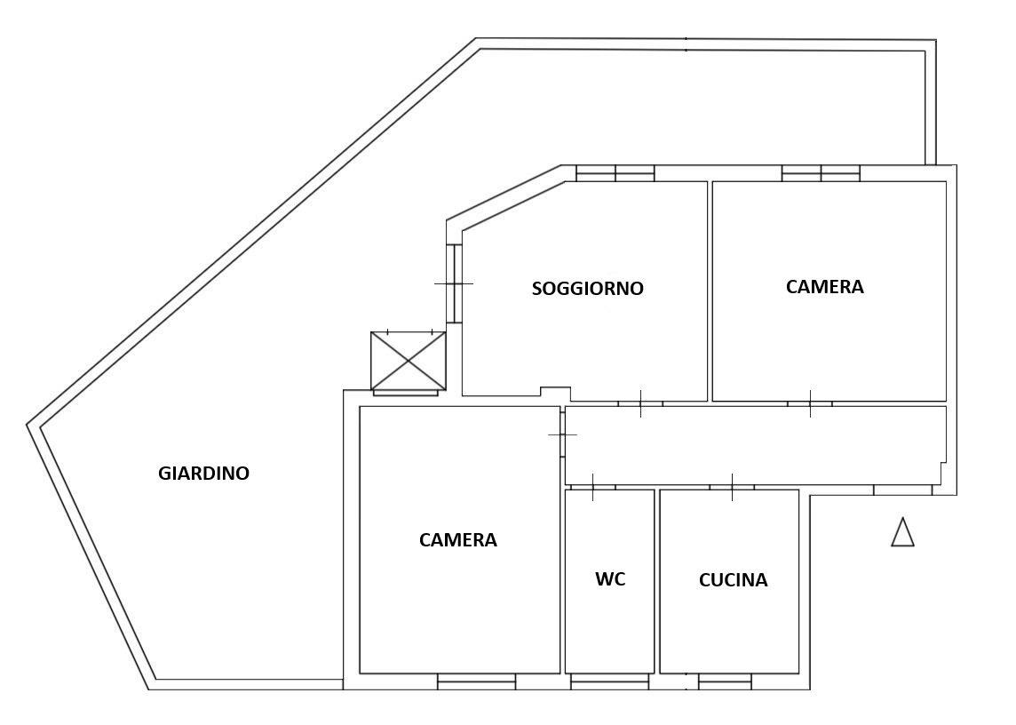
Nel cuore di Roma, in Via di Casa Calda, nasce l’occasione perfetta per chi cerca spazio, comfort e un’oasi privata in città.
In una zona ottimamente collegata da mezzi pubblici e Metro C e ricca di negozi e servizi, proponiamo un ampio trilocale di 95 mq, una tela bianca pronta a trasformarsi nella casa che hai sempre immaginato. L’ingresso si apre su un corridoio che conduce agli ambienti principali, un comodo soggiorno ideale per creare una zona living accogliente, una cucina semi-abitabile perfetta per chi ama personalizzare gli spazi e renderli funzionali, due camere da letto matrimoniali ideali per una famiglia, una coppia o per creare ambienti dedicati allo studio e al relax e un bagno finestrato con doccia pratico e facilmente rinnovabile.
Il vero gioiello della casa è il giardino angolare di circa 60 mq, un raro respiro verde dove poter organizzare cene all’aperto, creare un piccolo orto urbano o semplicemente rilassarsi dopo una giornata intensa. Completa la proprietà un comodo ripostiglio esterno.
L’immobile è completamente da ristrutturare, ma proprio per questo rappresenta una straordinaria opportunità: puoi modellare ogni ambiente secondo il tuo stile e le tue esigenze, creando un’abitazione moderna e funzionale. È subito libero e pronto a prendere vita attraverso il tuo progetto.
Soluzione ideale sia per famiglie, grazie agli ampi spazi interni ed esterni, sia come investimento per studenti e lavoratori, grazie alla posizione strategica e ai collegamenti eccellenti.

HAI BISOGNO DI UNA CONSULENZA PER VENDERE O LOCARE IL TUO IMMOBILE ?
RICHIEDI UNA VALUTAZIONE GRATUITA E SENZA IMPEGNO.
PER INFO O APPUNTAMENTI TEL. 340/5494213.

* Le informazioni riportate hanno finalità promozionale del portafoglio immobiliare a cui si riferiscono e non rappresentano in alcun modo offerta o impegno di natura contrattuale.

LEGGI TUTTO

CONDIVIDI SUI SOCIAL

DATI PRINCIPALI

Riferimento
627837
Contratto
Vendita
Tipologia
Appartamento
Superficie
95 mq
Locali
3
Camere da letto
2
Cucina
Abitabile
Bagni
1
Piano
Piano terra
Totale piani
5

CARATTERISTICHE

Ascensore

COSTI

Prezzo
€ 199.000,00
Spese condominiali
€ 40,00 / mese

EFFICIENZA ENERGETICA

Stato
Da ristrutturare
Anno costruzione
1975
Riscaldamento
Autonomo
Classe energetica
G
IPE
175,00 kWh/m²a

A+

A

B

C

D

E

F

175,00 kWh/m²a | Classe energetica G

G

MAPPA

ANNUNCI SIMILI

VENDITA 20
€ 199.000
Appartamento in Vendita a Roma (Roma)
  • Trilocale
  • 98 mq
  • 1 bagno
VENDITA 15
€ 165.000
Appartamento in Vendita a Roma (Roma)
  • Trilocale
  • 97 mq
  • 1 bagno
VENDITA 20
€ 233.000
Appartamento in Vendita a Roma (Roma)
  • Trilocale
  • 86 mq
  • 1 bagno
VENDITA 20
€ 169.000
Appartamento in Vendita a Roma (Roma)
  • Trilocale
  • 90 mq
  • 1 bagno
VENDITA 20
€ 239.000
Appartamento in Vendita a Roma (Roma)
  • Trilocale
  • 70 mq
  • 2 bagni
VENDITA 18
€ 139.000
Appartamento in Vendita a Roma (Roma)
  • Trilocale
  • 86 mq
  • 1 bagno
VENDITA 18
€ 239.000
Appartamento in Vendita a Roma (Roma)
  • Trilocale
  • 95 mq
  • 2 bagni
VENDITA 13
€ 245.000
Appartamento in Vendita a Roma (Roma)
  • Più di 5 locali
  • 81 mq
  • 2 bagni