Loft dall'eleganza contemporanea, in Via Margutta VENDITA

Via Margutta - Roma (Roma)
Trattativa Riservata
  • Bilocale
  • 90 mq
  • 2 bagni

Appartamento in Vendita a Roma

Questo affascinante loft, recentemente ristrutturato, situato all’interno di un elegante contesto condominiale con ampi spazi verdi e una rara atmosfera di quiete, si trova in via Margutta, una delle strade più caratteristiche e romantiche della Roma storica, a pochi passi da Villa Borghese e dall’Accademia di Francia. Pur trovandosi nel cuore del centro storico, tra vicoli vivaci, ristoranti e boutique alla moda, l’immobile offre un'atmosfera di sorprendente silenzio e tranquillità.

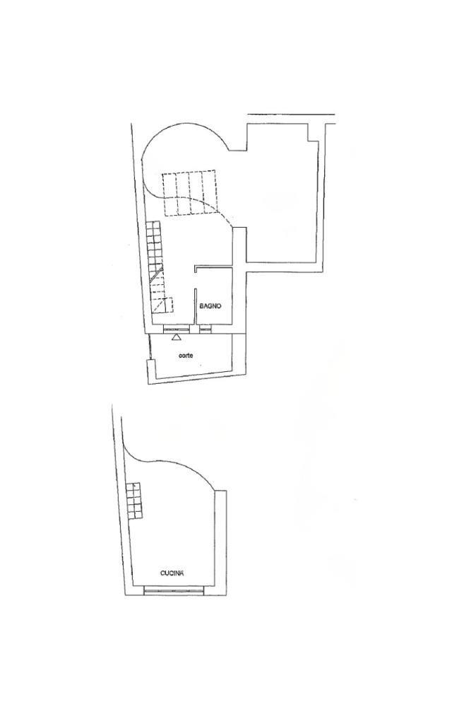
Il loft, luminosissimo e arioso, si sviluppa su due livelli. All piano terra, con soffitti alti oltre 4 metri, si apre un ampio spazio living con librerie su misura, un pratico cucinotto e un bagno.

Al piano superiore, collegato da una splendida scala in ferro battuto, si trova la camera da letto open space affacciata sul salone, con un grande bagno en-suite reso particolarmente luminoso da un importante lucernario e da un’ampia vetrata.




A completare la proprietà, un delizioso balcone privato, perfetto per collocare un tavolino con due sedie e godere della pace e della bellezza di via Margutta.

L’immobile è stato completamente ristrutturato nel 2025 con impianto elettrico a norma, pavimenti in marmo di Trani (Puglia), infissi con doppi vetri di ultima generazione e aria condizionata nuova.

Un tempo nascosta dietro le grandi piazze del Tridente, Via Margutta divenne nel Novecento il quartier generale di artisti, pittori, scultori e registi: da Fellini ad Anna Magnani, fino a personaggi internazionali innamorati del suo fascino discreto.

Oggi Via Margutta conserva intatta la sua anima bohémienne e raffinata: un susseguirsi di gallerie d’arte, atelier, cortili interni avvolti dal verde e palazzi storici che raccontano la Roma più autentica.

A due passi da Piazza del Popolo, Piazza di Spagna e Villa Borghese, rappresenta uno dei luoghi più ricercati e suggestivi del centro storico, dove il tempo sembra essersi fermato e ogni angolo è sinonimo di arte e bellezza.

LEGGI TUTTO

CONDIVIDI SUI SOCIAL

DATI PRINCIPALI

Riferimento
641898
Contratto
Vendita
Tipologia
Appartamento
Superficie
90 mq
Locali
2
Camere da letto
1
Cucina
Angolo cottura
Bagni
2
Piano
Piano rialzato
Totale piani
2

CARATTERISTICHE

Ascensore

COSTI

Prezzo
Trattativa Riservata
Spese condominiali
€ 50,00 / mese

EFFICIENZA ENERGETICA

Stato
Ristrutturato
Anno costruzione
1930
Riscaldamento
Autonomo
Climatizzazione
Si
Classe energetica
G
IPE
175,00 kWh/m²a

A+

A

B

C

D

E

F

175,00 kWh/m²a | Classe energetica G

G

MAPPA

ANNUNCI SIMILI

VENDITA 20
€ 1.800.000
Appartamento in Vendita a Roma (Roma)
  • Quadrilocale
  • 150 mq
  • 1 bagno
VENDITA 3
€ 2.220.000
Appartamento in Vendita a Roma (Roma)
  • Quadrilocale
  • 220 mq
  • 2 bagni
VENDITA 20
€ 1.690.000
Appartamento in Vendita a Roma (Roma)
  • Più di 5 locali
  • 174 mq
  • 2 bagni
VENDITA 20
€ 3.000.000
Appartamento in Vendita a Roma (Roma)
  • Più di 5 locali
  • 200 mq
  • 2 bagni