Laurentina, Appartamento in vendita VENDITA

Via Laurentina 193 - Roma (Roma)
€ 489.000
  • Quadrilocale
  • 155 mq
  • 2 bagni

Appartamento in Vendita a Roma

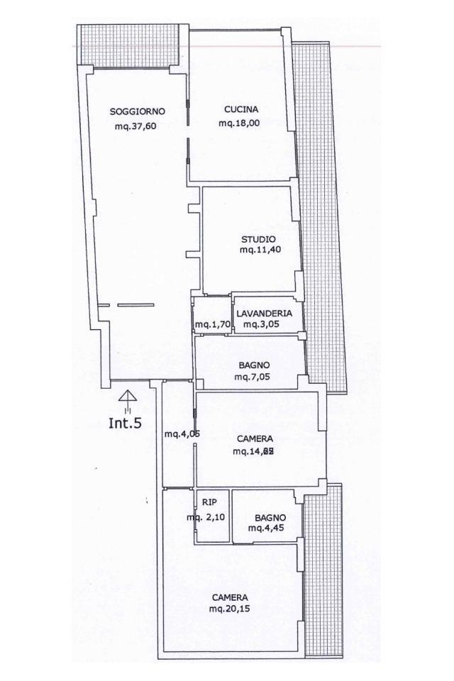
Questo ampio e confortevole appartamento ristrutturato, situato tra Montagnola e Laurentina a Roma. Inserito in un palazzo signorile dotato di doppio ascensore e video citofono, il suo fascino è accentuato dalla vicinanza a ogni genere di servizio e dalla comodità della fermata della metro B e del trenino Roma-Lido. Una volta varcata la soglia, l'ampio salone accoglie con una luce radiante, creando uno spazio conviviale e luminoso. La cucina abitabile aggiunge un tocco di praticità e stile, invitando a momenti conviviali. Le tre camere da letto, rifinite con cura, testimoniano l'attenzione ai dettagli. Una di esse, particolarmente spaziosa, offre il lusso di una cabina armadio e di un bagno padronale con doppio lavabo, regalando un rifugio di tranquillità e privacy. Il secondo servizio dotato di boccia e vasca, e la lavanderia contribuiscono a rendere questo appartamento non solo affascinante ma anche funzionale, soddisfacendo le esigenze quotidiane con stile. Il terrazzo vivibile e i balconi invitano a godere di spazi aperti e fascinosi tramonti. L'attenzione alla sicurezza è garantita da zanzariere, inferriate, condizionatori in ogni camera ed un impianto di allarme, per una maggiore condizione di tranquillità e benessere. La proprietà comprende anche un posto auto coperto ed una comoda cantina, offrendo soluzioni pratiche per il parcheggio e lo stoccaggio. In sintesi, questo appartamento è un rifugio di stile e comfort, dove la bellezza degli spazi si unisce alla funzionalità, creando un luogo in cui sentirsi veramente a casa
Per maggiori informazioni contattaci allo 0690200070 / 3517895656 (anche whatsapp)
Tutti i dati sopra indicati e relativi all'immobile non costituiscono elemento contrattuale.

LEGGI TUTTO

CONDIVIDI SUI SOCIAL

DATI PRINCIPALI

Riferimento
642336
Contratto
Vendita
Tipologia
Appartamento
Superficie
155 mq
Locali
4
Camere da letto
3
Cucina
Abitabile
Bagni
2
Piano
1 °
Totale piani
8
Box/Posto auto
Singolo

CARATTERISTICHE

Ascensore

COSTI

Prezzo
€ 489.000,00
Spese condominiali
€ 134,00 / mese

EFFICIENZA ENERGETICA

Stato
Ristrutturato
Anno costruzione
1964
Riscaldamento
Centralizzato
Climatizzazione
Si
Classe energetica
G
IPE
351,00 kWh/m²a

A+

A

B

C

D

E

F

351,00 kWh/m²a | Classe energetica G

G

MAPPA

ANNUNCI SIMILI

VENDITA 20
€ 530.000
Appartamento in Vendita a Roma (Roma)
  • Quadrilocale
  • 128 mq
  • 2 bagni
VENDITA 20
€ 1.000.000
Appartamento in Vendita a Roma (Roma)
  • Più di 5 locali
  • 220 mq
  • 2 bagni
VENDITA 20
€ 510.000
Appartamento in Vendita a Roma (Roma)
  • Quadrilocale
  • 125 mq
  • 2 bagni
VENDITA 12
€ 670.000
Appartamento in Vendita a Roma (Roma)
  • Più di 5 locali
  • 215 mq
  • 3 bagni
VENDITA 20
€ 495.000
Appartamento in Vendita a Roma (Roma)
  • Quadrilocale
  • 130 mq
  • 2 bagni
VENDITA 20
€ 489.000
Appartamento in Vendita a Roma (Roma)
  • Quadrilocale
  • 131 mq
  • 2 bagni