Gregna Sant Andrea - 3 locali 265000 T302 VENDITA

Via Pietro Crostarosa, 26 - Roma (Roma)
€ 265.000
  • Trilocale
  • 82 mq
  • 1 bagno

Appartamento in Vendita a Roma

ULTIME DISPONIBILITÀ: Trilocale Nuovo con Giardino
Gregna Sant'Andrea -- Consegna Marzo 2026
Stai cercando una casa nuova, moderna e che ti faccia risparmiare sulle bollette? Sono rimaste le ultime disponibilità
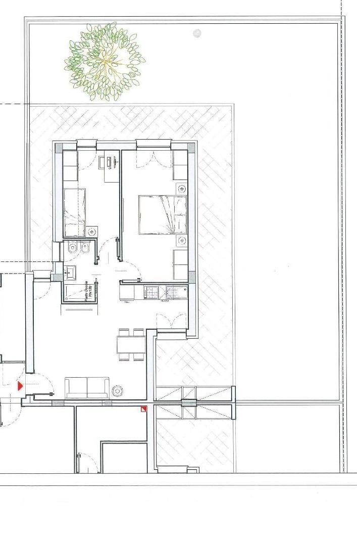
Com'è fatta la casa (Piano Terra)
L'appartamento è un trilocale spazioso e molto luminoso:
Soggiorno: Un bellissimo ambiente con l'angolo per la cucina.
Camere: Una camera matrimoniale e una cameretta per i figli o per lo studio.
Bagno: Moderno e funzionale.
Il Giardino: Il vero punto di forza! Un ampio Giardino meraviglioso, in parte pavimentato e in parte a verde, perfetto per godersi momenti di convivialità, cene e pranzi con amici, far giocare i bambini o semplicemente rilassarsi.
Tecnologia Semplice (Per risparmiare davvero)
Qui non dovrai preoccuparti del caro bollette, perché la casa è super efficiente:
Riscaldamento a pavimento: Niente termosifoni sui muri, il calore arriva dal basso ed è molto più confortevole.
Pannelli con Batteria d'accumulo: Hai i tuoi pannelli per produrre corrente e una batteria che la accumula per quando ti serve la sera.
Tapparelle elettriche: Si alzano e abbassano con un tasto.
Infissi di qualità: Tengono fuori il rumore e mantengono il caldo d'inverno e il fresco d'estate.
Posizione e Comodità
Ti muovi velocemente ovunque: Vicinissimo al Raccordo: Uscita Appia/Tuscolana a due passi.
Metro A Anagnina: Collegata benissimo per chi usa i mezzi.
Parcheggio Sicuro: Posto auto riservato.
Affrettati: Essendo le ultime rimaste, queste case andranno via velocemente.
Contattaci subito per un appuntamento!
La Antonelli Immobiliare nasce nel 1998 dall'idea vincente di uno dei componenti fondamentali della famiglia Antonelli. L'idea è stata portata avanti con il raggiungimento di non poche soddisfazioni. Il nostro lavoro si fonda sulla fiducia ed il rapporto diretto con i clienti offrendo loro un ampio ventaglio di proposte immobiliari e servizi di ogni tipo: valutazioni gratuite, consulenza tecnica, legale e tanto altro. La nostra è stata sempre una scelta volta sulla qualità del lavoro e non sulla quantità. Inizialmente specializzata nel settore commerciale con una vasta offerta di immobili ormai da diversi anni si sta imponendo di raggiungere le stesse soddisfazioni nel campo residenziale dove aumentano di giorno in giorno le offerte di vendita e di affitto. Abituati da sempre a metterci la faccia€ 265.000 Antonelli Immobiliare 06.7231167 - 338.4291704 antonellimmobiliare@gmail.com www.antonelli-immobiliare.it Classe Energetica A4

LEGGI TUTTO

CONDIVIDI SUI SOCIAL

DATI PRINCIPALI

Riferimento
641566
Contratto
Vendita
Tipologia
Appartamento
Superficie
82 mq
Locali
3
Camere da letto
2
Cucina
Angolo cottura
Bagni
1
Piano
Piano terra
Totale piani
3
Box/Posto auto
Singolo

CARATTERISTICHE

Ascensore

COSTI

Prezzo
€ 265.000,00
Spese condominiali
€ 65,00 / mese

EFFICIENZA ENERGETICA

Stato
Nuovo/In costruzione
Anno costruzione
2025
Riscaldamento
Autonomo
Climatizzazione
Si
Classe energetica
A4
IPE
67,10 kWh/m²a
67,10 kWh/m²a | Classe energetica A4

A4

A3

A2

A1

B

C

D

E

F

G

MAPPA

ANNUNCI SIMILI

VENDITA 20
€ 315.000
Appartamento in Vendita a Roma (Roma)
  • Quadrilocale
  • 112 mq
  • 2 bagni
VENDITA 20
€ 480.000
Appartamento in Vendita a Roma (Roma)
  • Più di 5 locali
  • 180 mq
  • 4 bagni