GRAZIOSO BILOCALE - VIA VILLALBA - FINOCCHIO CENTRALE VENDITA

Via Villalba - Roma, Zona Finocchio
€ 100.000
  • Bilocale
  • 46 mq
  • 1 bagno

Appartamento in Vendita a Roma

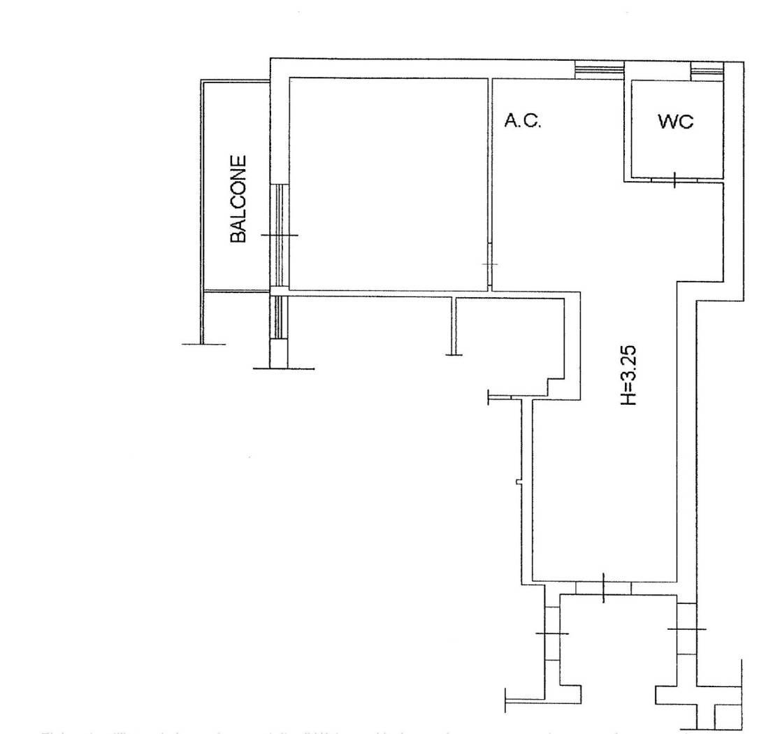
APPARTAMENTO COMPOSTO DA INGRESSO, CUCINA, CAMERA, BAGNO E BALCONE - POSSIBILITA' DI POSTO AUTO - OTTIMO USO INVESTIMENTO

Proponiamo in vendita un grazioso bilocale di circa 46 mq al primo piano di un piccolo stabile in cortina, zona centralissima di Finocchio/Fontana Candida. L'appartamento è composto da un ampio ingresso, cucina abitabile, camera matrimoniale, bagno e balcone. L'appartamento si presenta in buone condizioni: Porta Blindata con chiavistello europeo; Impianto TV centralizzato; Infissi esterni Vetro/Pvc; Impianto riscaldamento autonomo con radiatori alimentato a metano; Impianto aria condizionata. L'appartamento è posizionato nelle vicinanze di tutti i servizi in zona centrale di Finocchio, dista solo 100 m da via Casilina e circa 600 m dalla metro C fermata Finocchio. Posizionato a 5 km dal casello autostradale della RM/NA entrata Monteporzio Catone, e a 8 km dal GRA. Dista circa 6 km dalla zona commerciale ed Universitaria di Tor Vergata, e circa 7 km dal Centro Commerciale di Roma Est.

PREZZO DI VENDITA € 100.000,00
SPESE CONDOMINIALI CIRCA € 90,00 BIMESTRALI
OTTIMO USO INVESTIMENTO
POSSIBILITA' DI POSTO AUTO € 10.000,00

Se interessati saremo molto lieti di ricevervi presso la nostra agenzia per darvi maggiori informazioni sull'immobile o trovare altre soluzioni adatte alle vostre esigenze. STILE CASA SERVIZI IMMOBILIARI - Via Bolognetta 1/L (Zona Finocchio) – 00132 Roma - Tel. 06/2071107 - Cell. 3929134200 - email: stilecasabolognetta@gmail.com - https://www.facebook.com/stilecasafinocchio

LEGGI TUTTO

CONDIVIDI SUI SOCIAL

DATI PRINCIPALI

Riferimento
644002
Contratto
Vendita
Tipologia
Appartamento
Superficie
46 mq
Locali
2
Camere da letto
1
Cucina
Abitabile
Bagni
1
Piano
1 °
Totale piani
4

CARATTERISTICHE

Ascensore

COSTI

Prezzo
€ 100.000,00
Spese condominiali
€ 45,00 / mese

EFFICIENZA ENERGETICA

Stato
Abitabile
Anno costruzione
1985
Riscaldamento
Autonomo
Climatizzazione
Si
Classe energetica
G
IPE
175,00 kWh/m²a

A+

A

B

C

D

E

F

175,00 kWh/m²a | Classe energetica G

G

MAPPA

ANNUNCI SIMILI

VENDITA 3
€ 64.500
Appartamento in Vendita a Roma, Zona Finocchio
  • Bilocale
  • 81 mq
VENDITA 19
€ 180.000
Appartamento in Vendita a Roma, Zona Finocchio
  • Trilocale
  • 110 mq
  • 1 bagno