EUROSKY APPARTAMENTO AFFITTATO OTTIMO RENDIMENTO VENDITA

Viale Giorgio Ribotta, 21 - Roma, Zona Torrino
€ 430.000
  • Bilocale
  • 80 mq
  • 1 bagno

Appartamento in Vendita a Roma

Rif. V23/25 - ESCLUSIVO APPARTAMENTO AFITTATO - OTTIMO RENDIMENTO.
Eur Torrino, nell'esclusivo e moderno grattacielo denominato EuroSky Tower, che accoglie i suoi visitatori e residenti con un'ampia e prestigiosa hall con reception e sistemi di sicurezza 24/7, proponiamo la vendita di un elegante e panoramico appartamento CON POSTO AUTO COPERTO E CANTINA di proprietà.
Le facilities offerte dalla Torre rendono unica l'esperienza ai suoi residenti. L’edificio ha una riconosciuta importanza nel panorama dell’architettura nazionale e l’opera di architettura è stata più volte illustrata nelle riviste specializzate di livello nazionale e internazionale,
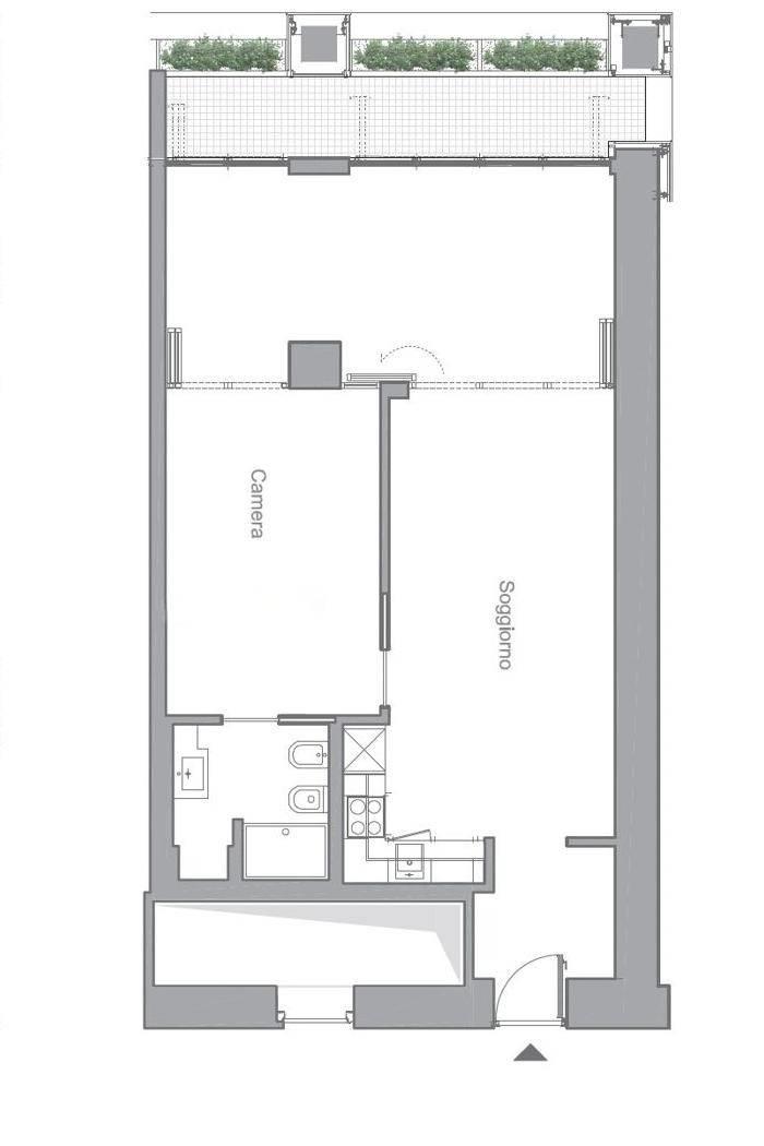
L’appartamento, caratterizzato dalla solare esposizione e dal panoramico 18° piano, offre una comoda metratura interna ed è composto da ingresso, salone con cucina a vista, camera da letto matrimoniale, servizio con doccia idromassaggio piacevolmente illuminata, ampia serra climatica con zona pranzo e area relax, terrazzo. Completano la proprietà un prezioso ed indispensabile posto auto coperto ed una comoda cantina.
I moderni appartamenti sono stati progettati per offrire spazi comodi e funzionali, con infissi a tutta altezza verso i terrazzi esterni che garantiscono luminosità e completa flessibilità di uso degli ambienti interni delle abitazioni. Sono serviti da sistema di domotica integrato, personalizzabile, che permette il controllo totale di tutte le funzioni dell'unità abitativa da un'unica interfaccia; comfort e qualità dell'aria nell'abitazione sono garantiti dagli impianti di riscaldamento e di raffreddamento a pavimento, dal sistema aggiuntivo di climatizzazione con l'installazione di una efficiente unità che raggiunge tutti gli ambienti della casa; inoltre, sono presenti il sistema di ventilazione assistita per la purificazione dell'aria e gli impianti di microfiltrazione dell'acqua.
All'interno del grattacielo, ampi spazi comuni e servizi destinati a divenire un esclusivo punto di ritrovo per i residenti di Eurosky Tower e i loro ospiti. Facilities condominiali per i seguenti servizi: sala proiezioni, un cinema esclusivo con 12 poltrone, area lounge attrezzata con piccolo bar e comode sedute sul lungo fronte vetrato con vista panoramica, ottimo spazio per feste private, roof garden con spettacolare vista sulla Capitale, inoltre area SPA/Fitness, la più alta d'Italia, con facciate completamente vetrate dove è possibile godere di meravigliosi panorami e fare fitness con macchinari Technogym e rilassarsi nello spazio SPA, con sauna, bagno turco e docce emozionali, la nuovissima vasca Jacuzzi per 6 persone, un tempio del benessere innovativo ed elegante.
L'edificio è dotato di reception 24/7, videosorveglianza, multi ascensori, pannelli fotovoltaici, raccolta dell'acqua piovana e raccolta pneumatica dei rifiuti al piano, locale lavanderia con macchinari Miele di tipo industriale, con asciugatrici e lavatrici già predosate con i corretti detersivi.
Ottima opportunità di investimento, contratto di locazione uso foresteria intestato ad importantissima e nota società.
Prezzo, comprensivo di posto auto coperto e cantina, Euro 430.000,00 CE A Ipe 72,24 kWh/m2 anno.
Per maggiori informazioni e prenotazione appuntamenti contattare il numero 065293139, un nostro consulente sarà a Vostra disposizione.

LEGGI TUTTO

CONDIVIDI SUI SOCIAL

DATI PRINCIPALI

Riferimento
642011
Contratto
Vendita
Tipologia
Appartamento
Superficie
80 mq
Locali
2
Camere da letto
1
Cucina
A vista
Bagni
1
Piano
Più di 7 piani
Totale piani
28
Box/Posto auto
Singolo

CARATTERISTICHE

Ascensore

COSTI

Prezzo
€ 430.000,00
Spese condominiali
€ 450,00 / mese

EFFICIENZA ENERGETICA

Stato
Ristrutturato
Anno costruzione
2014
Riscaldamento
Centralizzato
Classe energetica
A1
IPE
351,00 kWh/m²a

A4

A3

A2

351,00 kWh/m²a | Classe energetica A1

A1

B

C

D

E

F

G

MAPPA

ANNUNCI SIMILI