PANORAMICO ANGOLARE CON CANTINA E BOX AUTO VENDITA

Viale Giorgio Ribotta, 21 - Roma, Zona Torrino
€ 770.000
  • Trilocale
  • 158 mq
  • 2 bagni

Appartamento in Vendita a Roma

Rif. V55/25 - Eur Torrino, quartiere dalla storia architettonica razionalista e geometrica nel quale l'edificio residenziale più alto della Capitale si fonde in maniera armonica, nel nuovo polo commerciale adiacente Euroma2, è sorto recentemente l'esclusivo e moderno grattacielo denominato EuroSky Tower che accoglie i suoi visitatori e residenti con un'ampia e prestigiosa hall con portineria e sistemi di sicurezza 24/7.
Le facilities offerte dalla Torre rendono unica l'esperienza ai suoi residenti.
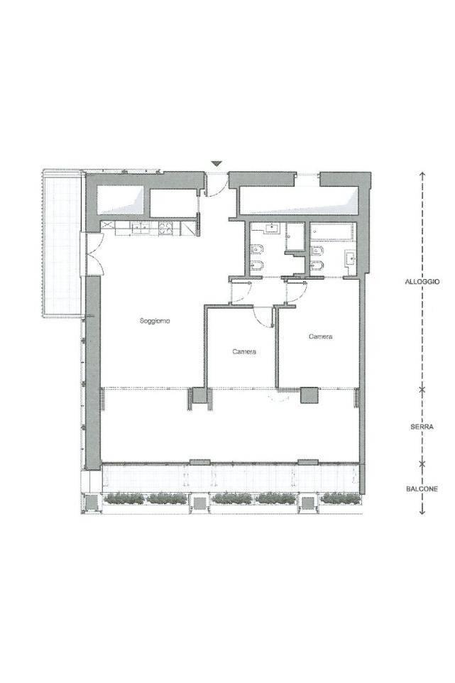
In questo elitario contesto proponiamo la vendita di uno spettacolare, elegante e confortevole appartamento, caratterizzato dalla posizione angolare al 17° piano della Torre e dalla comoda metratura interna data dalla composizione sviluppata su 2,5 moduli.
L’unità immobiliare, con panoramica e solare esposizione ad est e a sud con spettacolare vista sulla Capitale, è composta da ingresso con armadi a muro realizzati su misura, ampio salone con cucina a vista con isola e affaccio panoramico dal terrazzo, zona pranzo nella serra bioclimatica con balconata, suite matrimoniale con bagno privato con vasca e riservata area studio con cabina armadio e accesso al terrazzo, camera da letto con area armadi e studio/giochi, altro servizio con doccia idromassaggio, ripostiglio con area lavanderia.
Completano la proposta un indispensabile box auto in garage con videosorveglianza ed una spaziosa cantina. Possibilità di acquisto separato di altro box auto.
I moderni appartamenti sono stati progettati per offrire spazi comodi e funzionali, con infissi a tutta altezza verso i terrazzi esterni che garantiscono luminosità e completa flessibilità di uso degli ambienti interni delle abitazioni. Sono serviti da sistema di domotica integrato, personalizzabile, che permette il controllo totale di tutte le funzioni dell'unità abitativa da un'unica interfaccia; comfort e qualità dell'aria nell'abitazione sono garantiti dagli impianti di riscaldamento e di raffreddamento a pavimento, dalla ventilazione assistita per la purificazione dell'aria e dagli impianti di microfiltrazione dell'acqua.
All'interno del grattacielo, ampi spazi comuni e servizi destinati a divenire un esclusivo punto di ritrovo per i residenti di Eurosky Tower ed i loro ospiti. Facilities condominiali per i seguenti servizi: la sala proiezioni, un cinema esclusivo con 12 poltrone, l'area lounge con piccolo bar, anche con servizio al piano, attrezzata con comode sedute ed un lungo fronte vetrato con vista panoramica, ottimo spazio per feste private, il roof top con spettacolare vista su Roma servito, nelle belle giornate, da un piccolo bar, inoltre l'area SPA/Fitness, la più alta d'Italia, con una facciata completamente vetrata dove è possibile godere di un meraviglioso panorama e fare fitness con macchinari Technogym e rilassarsi nello spazio SPA, con sauna, bagno turco e docce emozionali, la nuovissima vasca Jacuzzi per 6 persone, un tempio del benessere innovativo ed elegante.
L'edificio è dotato di reception 24/7, videosorveglianza, multi ascensori, pannelli fotovoltaici, raccolta dell'acqua piovana e raccolta pneumatica dei rifiuti al piano, locale lavanderia con macchinari Miele di tipo industriale con detersivi predosati.
Prezzo, comprensivo di 1 box auto e 1 cantina, Euro 770.000,00 CE A Ipe 19,326 kWh/m2 anno.
Per maggiori informazioni e prenotazione visite contattare il numero 065293139, un nostro consulente sarà a Vostra disposizione.

LEGGI TUTTO

CONDIVIDI SUI SOCIAL

DATI PRINCIPALI

Riferimento
642004
Contratto
Vendita
Tipologia
Appartamento
Superficie
158 mq
Locali
3
Camere da letto
2
Cucina
A vista
Bagni
2
Piano
7
Totale piani
28
Box/Posto auto
Singolo

CARATTERISTICHE

Ascensore

COSTI

Prezzo
€ 770.000,00
Spese condominiali
€ 650,00 / mese

EFFICIENZA ENERGETICA

Stato
Ristrutturato
Anno costruzione
2014
Riscaldamento
Centralizzato
Climatizzazione
Si
Classe energetica
A1
IPE
19,32 kWh/m²a

A4

A3

A2

19,32 kWh/m²a | Classe energetica A1

A1

B

C

D

E

F

G

MAPPA

ANNUNCI SIMILI

VENDITA 20
€ 598.000
Appartamento in Vendita a Roma, Zona Torrino
  • Quadrilocale
  • 137 mq
  • 2 bagni
VENDITA 15
€ 680.000
Appartamento in Vendita a Roma, Zona Torrino
  • Trilocale
  • 130 mq
  • 2 bagni
VENDITA 20
€ 385.000
Appartamento in Vendita a Roma, Zona Torrino
  • Trilocale
  • 79 mq
  • 1 bagno
VENDITA 20
€ 398.000
Appartamento in Vendita a Roma, Zona Torrino
  • Trilocale
  • 104 mq
  • 2 bagni
VENDITA 20
€ 415.000
Appartamento in Vendita a Roma, Zona Torrino
  • Trilocale
  • 126 mq
  • 2 bagni
VENDITA 20
€ 1.150.000
Appartamento in Vendita a Roma, Zona Eur
  • Più di 5 locali
  • 200 mq
  • 4 bagni
VENDITA 20
€ 395.000
Appartamento in Vendita a Roma, Zona Torrino
  • Più di 5 locali
  • 140 mq
  • 2 bagni