COLLINA FLEMING -EDIFICIO RISTRUTTURATO CLASSE A2 + BOX AUTO VENDITA

Via Monterosi 66 - Roma, Zona Fleming
€ 470.000
  • Trilocale
  • 90 mq
  • 1 bagno

Appartamento in Vendita a Roma

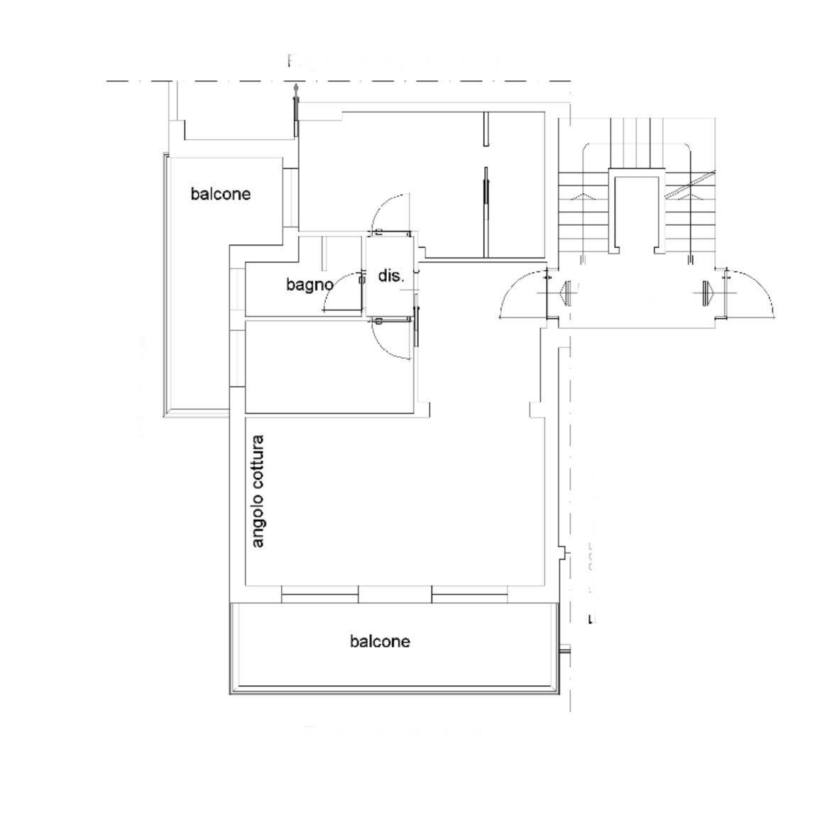
Collina Fleming e più precisamente in Via Monterosi 66, - la FRIMM Studio Libero Srl propone in vendita un TRILOCALE con doppia esposizione di 90 mq commerciali in ottimo stato , posto al primo piano di una palazzina completamente ristrutturata grazie al SUPERBONUS 110% e al SISMABONUS .
L’immobile è composto da grande ingresso, soggiorno a vista con cucina all’americana e doppia uscita su un’ampia balconata di circa 15 mq calpestabili . Dal disimpegno si accede al bagno finestrato con box doccia e allaccio per la lavatrice e alle due camere da letto, una matrimoniale con comoda cabina armadio ed una camera singola entrambe con uscita su un balcone abitabile di 12 mq calpestabili.
Completano la proprietà:
-una cantina posta al piano seminterrato di 6 Mq calpestabili con la possibilità di utilizzo dello spazio vista l’altezza dei soffitti di circa 4,65 M.
-un ampio BOX AUTO di 18 mq calpestabili con soffitti alti sempre 4,65 mq.

Grazie agli interventi di riqualificazione, l’appartamento gode di numerosi vantaggi che si traducono in un comfort abitativo superiore e un notevole risparmio sulle bollette:
- Isolamento Termico a Cappotto
- Nuovi infissi ad alto rendimento.
- Impianto di riscaldamento autonomo con caldaia a condensazione a metano.
- Interventi di miglioramento sismico.
- Classe energetica migliorata: passaggio alla classe energetica A2.

Le spese condominiali ammontano a circa 95 € mensili.

Prezzo richiesto € 470.000. Classe Energetica "A2", Indice di Prestazione Energetica 28.0647 KWh/m2 anno. Per informazioni o per richiedere una visita, potete contattarci ai numeri: Pierpaolo Caponeri 348 0187747 / 379 1219012 / 06 57289195

LEGGI TUTTO

CONDIVIDI SUI SOCIAL

DATI PRINCIPALI

Riferimento
627376
Contratto
Vendita
Tipologia
Appartamento
Superficie
90 mq
Locali
3
Camere da letto
2
Cucina
Angolo cottura
Bagni
1
Piano
1 °
Totale piani
4
Box/Posto auto
Singolo

CARATTERISTICHE

Ascensore

COSTI

Prezzo
€ 470.000,00
Spese condominiali
€ 95,00 / mese

EFFICIENZA ENERGETICA

Stato
Ristrutturato
Anno costruzione
1965
Riscaldamento
Autonomo
Classe energetica
A2
IPE
28,06 kWh/m²a

A4

A3

28,06 kWh/m²a | Classe energetica A2

A2

A1

B

C

D

E

F

G

MAPPA

ANNUNCI SIMILI

VENDITA 19
€ 500.000
Appartamento in Vendita a Roma, Zona Fleming
  • Quadrilocale
  • 127 mq
  • 2 bagni
VENDITA 20
€ 495.000
Appartamento in Vendita a Roma, Zona Fleming
  • Più di 5 locali
  • 150 mq
  • 2 bagni
VENDITA 19
€ 730.000
Appartamento in Vendita a Roma, Zona Fleming
  • Più di 5 locali
  • 188 mq
  • 2 bagni
VENDITA
€ 425.000
Appartamento in Vendita a Roma, Zona Fleming
  • Più di 5 locali
  • 146 mq
  • 2 bagni