Centro storico tridente VIA DELLA CROCE VENDITA

Via della Croce 71 - Roma (Roma)
€ 1.880.000
  • Più di 5 locali
  • 215 mq
  • 2 bagni

Appartamento in Vendita a Roma

Centro storico tridente VIA DELLA CROCE
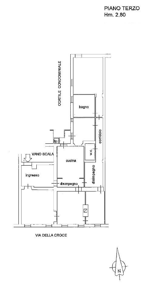
in splendido palazzo seicentesco, luminoso 3 piano con ascensore al piano mq 215 commerciali, 11 finestre.
Attualmente composto da grande ingresso con armadi a muro, salone, sala da pranzo, studio, ampia cucina abitabile con balconcino, disimpegno, due grandi camere da letto (una puo' essere divisa in due), 2 bagni (uno molto grande potrebbe essere una camera).
Splendidi pavimenti in parquet. Riscaldamento e raffreddamento con sistema fancoil.
Caldaia per acqua calda.
Non c'è servizio di portineria.
Condominio: 190euro/mese

Palazzo dei Telamoni si chiama così per la presenza di questo tipo di sculture che affiancano il bel portone di legno, sopra all'architrave poggia una finestra con ampie volute. Questi telamoni sono opera di Pietro Bernini, padre di Gian Lorenzo, e rappresentano Ercole ricoperto dalla pelle del leone Nemeo da lui ucciso in una delle sue mitiche fatiche. Il palazzo fu costruito nel Seicento come ospizio e poi trasformato in ospedale. Si sviluppa su tre piani con nove finestre ciascuno, architravate al primo, decorate con stucchi al secondo, incorniciate al terzo. A coronamento un cornicione a dentelli, sopra il quale si trova una sopraelevazione ottocentesca con ampio terrazzo.

LEGGI TUTTO

CONDIVIDI SUI SOCIAL

DATI PRINCIPALI

Riferimento
631550
Contratto
Vendita
Tipologia
Appartamento
Superficie
215 mq
Locali
Più di 5
Camere da letto
3
Cucina
Abitabile
Bagni
2
Piano
3 °
Totale piani
4

CARATTERISTICHE

Ascensore

COSTI

Prezzo
€ 1.880.000,00
Spese condominiali
€ 190,00 / mese

EFFICIENZA ENERGETICA

Stato
Abitabile
Anno costruzione
1600
Riscaldamento
Autonomo
Climatizzazione
Si
Classe energetica
G
IPE
175,00 kWh/m²a

A+

A

B

C

D

E

F

175,00 kWh/m²a | Classe energetica G

G

MAPPA

ANNUNCI SIMILI

VENDITA 20
€ 1.749.000
Appartamento in Vendita a Roma (Roma)
  • Più di 5 locali
  • 180 mq
  • 3 bagni
VENDITA
Trattativa Riservata
Appartamento in Vendita a Roma (Roma)
  • Più di 5 locali
  • 400 mq
  • 3 bagni
VENDITA 11
€ 2.900.000
Appartamento in Vendita a Roma (Roma)
  • Più di 5 locali
  • 310 mq
  • 3 bagni
VENDITA 7
€ 3.000.000
Appartamento in Vendita a Roma (Roma)
  • Più di 5 locali
  • 270 mq
  • 4 bagni
VENDITA 6
Trattativa Riservata
Appartamento in Vendita a Roma (Roma)
  • Più di 5 locali
  • 240 mq
  • 4 bagni
VENDITA 20
€ 2.150.000
Appartamento in Vendita a Roma (Roma)
  • Più di 5 locali
  • 235 mq
  • 4 bagni
VENDITA 20
€ 1.500.000
Appartamento in Vendita a Roma (Roma)
  • Più di 5 locali
  • 181 mq
  • 3 bagni
VENDITA 20
€ 1.690.000
Appartamento in Vendita a Roma (Roma)
  • Più di 5 locali
  • 174 mq
  • 2 bagni